Bildegalleri

Velkommen til Bøkkerveien 16A - Presentert av Michelle Lehn Jensen ved Nordvik Bolig!
Solgt
LØREN | IDYLLISKE KRYDDERHAGEN
Lys og lekker 3-R endeleil. med mye lys | Solrik balkong | Fantastisk felles takterrasse | IN-ordning! Parkering*
Prisantydning4 150 000 kr
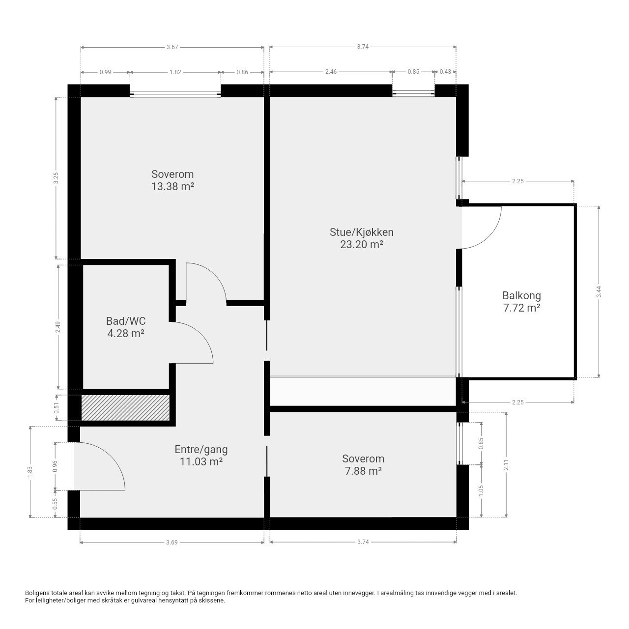
Nøkkelinfo
- Boligtype
- Leilighet
- Eieform
- Andel
- Soverom
- 2
- Internt bruksareal
- 64 m² (BRA-i)
- Bruksareal
- 72 m²
- Eksternt bruksareal
- 8 m² (BRA-e)
- Balkong/Terrasse
- 8 m² (TBA)
- Etasje
- 3
- Byggeår
- 2018
- Energimerking
- C - Mørkegrønn
- Rom
- 3
- Tomteareal
- 2 529 m² (eiet)
Fasiliteter
Takterrasse
Balkong/Terrasse
Bredbåndstilknytning
Heis
Kjæledyr tillatt
Offentlig vann/kloakk
Parkett
Rolig
Sentralt
Utsikt
Turterreng
Balansert ventilasjon
Om boligen
Michelle Lehn Jensen ved Nordvik Løren har gleden av å presentere en rålekker og gjennomført 3-roms leilighet med vestvendt balkong og gode lys/solforhold. Boligen har en god intern beliggenhet med god avstand til naboer og fin/fri utsikt. Krydderhagen er kjent for sin stilfulle arkitektur og idylliske, grønne uteområder! Hjørneleiligheten har en romslig planløsning med naturlige soner for innredning.
Kort fortalt:
- Rålekker og fin 3-roms
- Solrik balkong mot vest
- Fin/fri utsikt
- Masse lys og lite/ingen innsyn
- God standard
- Stor balkong på 7,5 kvm
- En av Lørens fineste, felles takterrasser
- Skjermet bakgård og sykkelparkering i kjeller
- A-konto varme og varmtvann (lave strømutgifter)
- Kjellerbod på ca. 8 kvm
- Kort vei til service- og kollektivtilbud
Kort fortalt:
- Rålekker og fin 3-roms
- Solrik balkong mot vest
- Fin/fri utsikt
- Masse lys og lite/ingen innsyn
- God standard
- Stor balkong på 7,5 kvm
- En av Lørens fineste, felles takterrasser
- Skjermet bakgård og sykkelparkering i kjeller
- A-konto varme og varmtvann (lave strømutgifter)
- Kjellerbod på ca. 8 kvm
- Kort vei til service- og kollektivtilbud
NB: Knappen for å vise hele beskrivelsen har kun en visuell effekt.
NB: Knappen for å vise hele beskrivelsen har kun en visuell effekt.
Salgsoppgaven beskriver vesentlig og lovpålagt informasjon om eiendommen
Se komplett salgsoppgaveNyttige lenker
Nærområdet
Nordvik Løren
Annonseinformasjon
| FINN-kode | 391487273 |
|---|---|
| Sist endret | 25. juni 2025 15:30 |
| Referanse | 21-0020/25 |
Annonsene kan være mangelfulle i forhold til lovpålagt opplysningsplikt. Før bindende avtale inngås oppfordres interessenter til å innhente komplett informasjon fra meglerforetaket, selger eller utleier.














































