Bildegalleri

Velkommen til Karolinerveien 10A - Presentert av EIE eiendomsmegling v/Geir Einar Moen!
Flott hjørneleilighet beliggende i øverste etasje | Privat takterrasse på hele 30 kvm | Nært Bymarka og metrobuss
Nøkkelinfo
- Boligtype
- Leilighet
- Eieform
- Andel
- Internt bruksareal
- 25 m² (BRA-i)
- Bruksareal
- 31 m²
- Eksternt bruksareal
- 6 m² (BRA-e)
- Balkong/Terrasse
- 30 m² (TBA)
- Etasje
- 4
- Byggeår
- 1967
- Energimerking
- G - Rød
- Rom
- 1
- Tomt
- Eiet
Fasiliteter
Om boligen
Velkommen til Karolinerveien 10A - Presentert av EIE Eiendomsmegling v/Geir Einar Moen
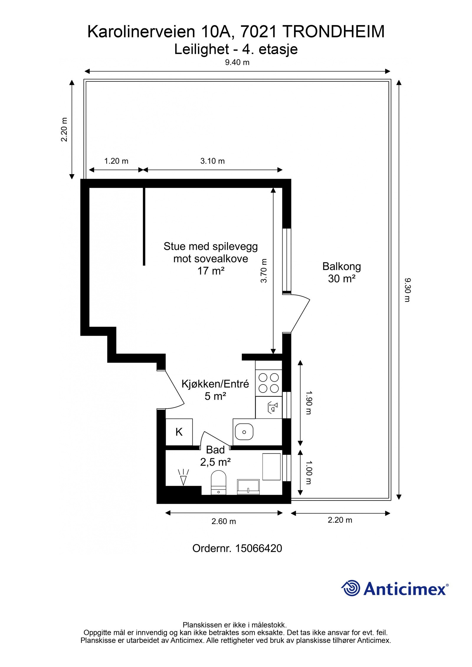
En utrolig fin hjørneleilighet beliggende i 4. toppetasjen. Her får man en praktisk løsning med stue og sovealkove, kjøkken og privat takterrasse på hele 30 kvm. Leiligheten er perfekt til studenter som ønsker nærhet til "alt". Boligen har en fantastisk beliggenhet med nærhet til både Trondheim sentrum og naturgrønne omgivelser. De hyppige bussavgangene gjør det enkelt å komme seg fra A til Å, om det skulle være til Værnes flyplass eller sørover. I tillegg har man dagligvarebutikker som Rema og Bunnpris like ved.
Høydepunkter:
- Stue m/ sovealkove på 17 kvm
- Masse naturlig lysinnslipp
- Stor takterrasse m/ utrolige solforhold og utsikt
- Hjørnebeliggenhet
- 2 boder i kjeller
- Mulighet for parkering
Velkommen til visning!
Salgsoppgaven beskriver vesentlig og lovpålagt informasjon om eiendommen
Se komplett salgsoppgaveNærområdet
EIE eiendomsmegling Trondheim sentrum
Annonseinformasjon
| FINN-kode | 391483639 |
|---|---|
| Sist endret | 01. mars 2025 11:44 |
| Referanse | 133250015 |
Annonsene kan være mangelfulle i forhold til lovpålagt opplysningsplikt. Før bindende avtale inngås oppfordres interessenter til å innhente komplett informasjon fra meglerforetaket, selger eller utleier.





















