Bildegalleri

Velkommen til Sundgata 25
Hønefoss
Stor 2 mannsbolig med attraktiv beliggenhet - gode leieinntekter - vesentlig oppgradert i 2011.
Prisantydning9 200 000 kr
Nøkkelinfo
- Boligtype
- Tomannsbolig
- Eieform
- Eier (Selveier)
- Soverom
- 10
- Internt bruksareal
- 442 m² (BRA-i)
- Bruksareal
- 482 m²
- Eksternt bruksareal
- 40 m² (BRA-e)
- Balkong/Terrasse
- 15 m² (TBA)
- Etasje
- 4
- Byggeår
- 1917
- Energimerking
- G - Rød
- Rom
- 12
- Tomteareal
- 653 m² (eiet)
Fasiliteter
Balkong/Terrasse
Barnevennlig
Garasje/P-plass
Hage
Rolig
Sentralt
Turterreng
Om boligen
Velkommen til Sundgata 25
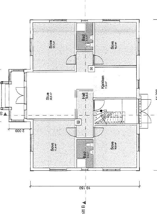
Dette er en stor og hel tomannsbolig over fire plan med en sentral og attraktiv beliggenhet. Eiendommen har en tomt på 652 m².
Boligen går over fire plan med mange bruksmuligheter. Boligen ligger i et område med gangavstand til barnehager, skoler, offentlig kommunikasjon samt butikker. Det er hyggelige turområder langs Storelva og kort vei til både parker og idrettsbaner.
Kort fortalt:
- Hel tomannsbolig over fire plan.
- Boligen har 10 soverom, 5 bad og 3 kjøkken
- Boligen ble renovert innvendig i 2011 og nye bad ble etablert.
- Utvendig fasade renovert i 2011, Nytt el-anlegg og røropplegg i 2011.
- Mulighet for å overta leiekontrakter.
- Garasje.
- Gangavstand til alle fasiliteter i sentrum
Velkommen til en hyggelig visning - Husk påmelding
Dette er en stor og hel tomannsbolig over fire plan med en sentral og attraktiv beliggenhet. Eiendommen har en tomt på 652 m².
Boligen går over fire plan med mange bruksmuligheter. Boligen ligger i et område med gangavstand til barnehager, skoler, offentlig kommunikasjon samt butikker. Det er hyggelige turområder langs Storelva og kort vei til både parker og idrettsbaner.
Kort fortalt:
- Hel tomannsbolig over fire plan.
- Boligen har 10 soverom, 5 bad og 3 kjøkken
- Boligen ble renovert innvendig i 2011 og nye bad ble etablert.
- Utvendig fasade renovert i 2011, Nytt el-anlegg og røropplegg i 2011.
- Mulighet for å overta leiekontrakter.
- Garasje.
- Gangavstand til alle fasiliteter i sentrum
Velkommen til en hyggelig visning - Husk påmelding
NB: Knappen for å vise hele beskrivelsen har kun en visuell effekt.
NB: Knappen for å vise hele beskrivelsen har kun en visuell effekt.
Salgsoppgaven beskriver vesentlig og lovpålagt informasjon om eiendommen
Se komplett salgsoppgaveNærområdet
Aktiv Frogner
Annonseinformasjon
| FINN-kode | 391256268 |
|---|---|
| Sist endret | 08. jan. 2026 17:38 |
| Referanse | 1007250007 |
Annonsene kan være mangelfulle i forhold til lovpålagt opplysningsplikt. Før bindende avtale inngås oppfordres interessenter til å innhente komplett informasjon fra meglerforetaket, selger eller utleier.








































