Bildegalleri

Ali Hashmi ved din lokale eiendomsmegler EIE Stovner har gleden av å presentere Ragnhild schibbyes vei 8.
Solgt
VESTLI
Romslig 4-roms med garasjeplass | Varmtvann a-konto inkludert i FK | 2 balkonger | Nær marka
Prisantydning3 750 000 kr
Nøkkelinfo
- Boligtype
- Leilighet
- Eieform
- Andel
- Soverom
- 3
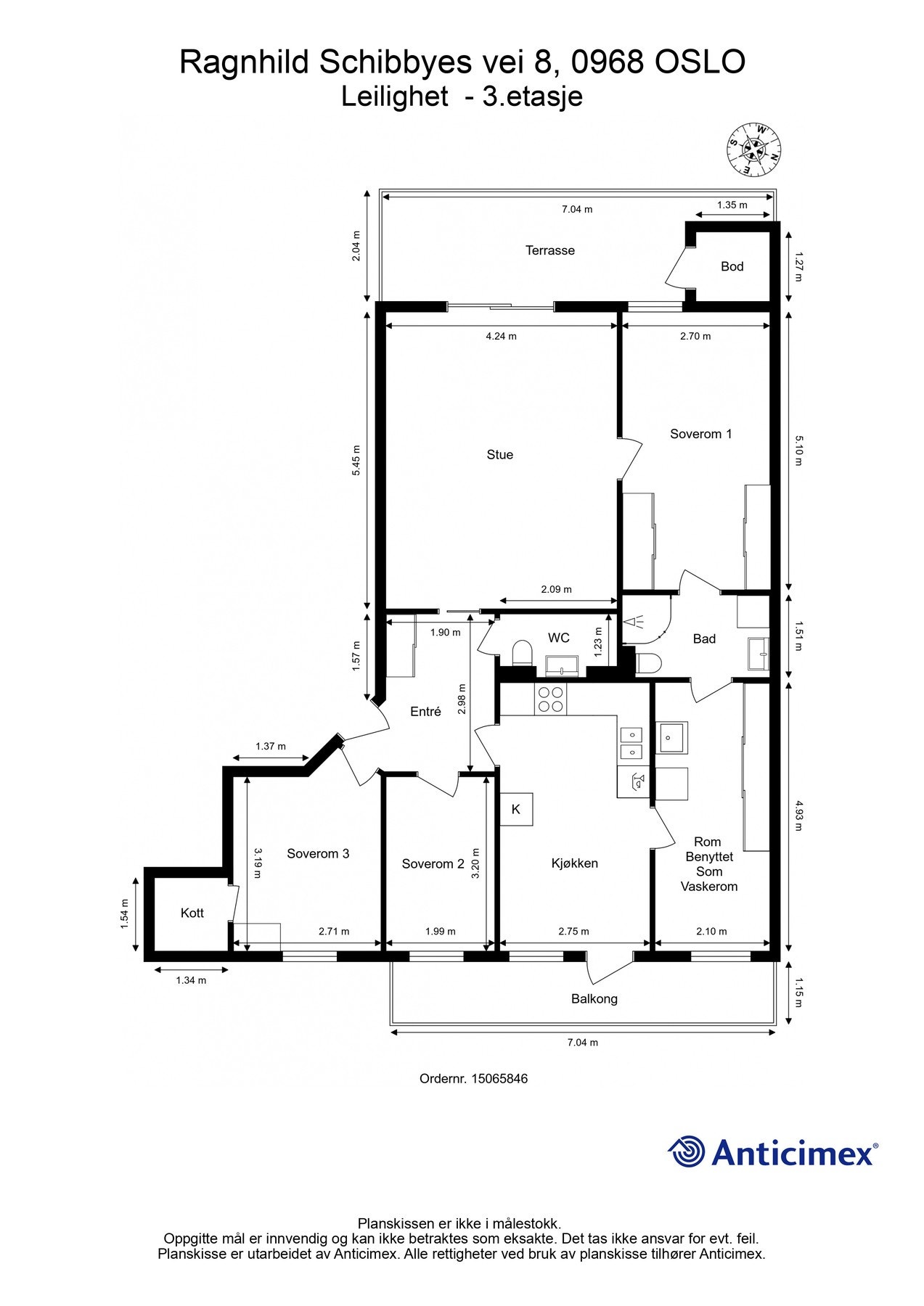
- Internt bruksareal
- 96 m² (BRA-i)
- Bruksareal
- 98 m²
- Eksternt bruksareal
- 2 m² (BRA-e)
- Balkong/Terrasse
- 20 m² (TBA)
- Etasje
- 3
- Byggeår
- 1976
- Energimerking
- C - Rød
- Rom
- 4
- Tomteareal
- 27 205 m²
Fasiliteter
Barnevennlig
Balkong/Terrasse
Garasje/P-plass
Kabel-TV
Offentlig vann/kloakk
Turterreng
Utsikt
Vaktmester-/vektertjeneste
Sentralt
Bredbåndstilknytning
Rolig
Lademulighet
Om boligen
Ali Hashmi ved din lokale eiendomsmegler EIE Stovner har gleden av å presentere Ragnhild schibbyes vei 8.
Dette er en romslig 4-roms andelsleilighet med to romslige balkonger. Boligen har en flott beliggenhet på Vestli, øverst i Groruddalen med nærhet til Vestlitorget.
Leiligheten ligger mot markagrensen. Marka med sine mange muligheter med skogsveier og lysløyper åpner for gode turmuligheter hele året.
Kvaliterer:
- Romslig 4-roms andelsleilighetet
- 3 gode soverom
- Romslig stue
- Stor separat kjøkken
- Balkong på 12 kvm med utgang fra stue
- Balkong på 8 kvm med utgang fra kjøkken
- Bad og separat toalettrom (opprinnelig 2 bad)
- Vaskerom
- Ingen TG-3!
- Noe moderniseringsbehov
- Varmtvann a-konto inkl.
- Garasjeplass
- Minutters gange til Vestlitorget med T-banestasjon
Dette er en romslig 4-roms andelsleilighet med to romslige balkonger. Boligen har en flott beliggenhet på Vestli, øverst i Groruddalen med nærhet til Vestlitorget.
Leiligheten ligger mot markagrensen. Marka med sine mange muligheter med skogsveier og lysløyper åpner for gode turmuligheter hele året.
Kvaliterer:
- Romslig 4-roms andelsleilighetet
- 3 gode soverom
- Romslig stue
- Stor separat kjøkken
- Balkong på 12 kvm med utgang fra stue
- Balkong på 8 kvm med utgang fra kjøkken
- Bad og separat toalettrom (opprinnelig 2 bad)
- Vaskerom
- Ingen TG-3!
- Noe moderniseringsbehov
- Varmtvann a-konto inkl.
- Garasjeplass
- Minutters gange til Vestlitorget med T-banestasjon
NB: Knappen for å vise hele beskrivelsen har kun en visuell effekt.
NB: Knappen for å vise hele beskrivelsen har kun en visuell effekt.
Salgsoppgaven beskriver vesentlig og lovpålagt informasjon om eiendommen
Se komplett salgsoppgaveNærområdet
EIE eiendomsmegling Stovner
Annonseinformasjon
| FINN-kode | 390345250 |
|---|---|
| Sist endret | 03. feb. 2025 11:59 |
| Referanse | 75250008 |
Annonsene kan være mangelfulle i forhold til lovpålagt opplysningsplikt. Før bindende avtale inngås oppfordres interessenter til å innhente komplett informasjon fra meglerforetaket, selger eller utleier.
































