Bildegalleri

Velkommen til en moderne og romslig 4-roms rekkehusleilighet med praktisk planløsning fordelt over to plan.
Lekker og romslig 4-roms over to plan med optimale sol- og utsiktsforhold. To balkonger. Garasje. Oppvarming og vv inkl.
Nøkkelinfo
- Boligtype
- Leilighet
- Eieform
- Andel
- Soverom
- 3
- Internt bruksareal
- 110 m² (BRA-i)
- Bruksareal
- 110 m²
- Balkong/Terrasse
- 10 m² (TBA)
- Etasje
- 2
- Byggeår
- 1972
- Energimerking
- F - Mørkegrønn
- Tomt
- Eiet
- Boligselgerforsikring
- Ja
Fasiliteter
Om boligen
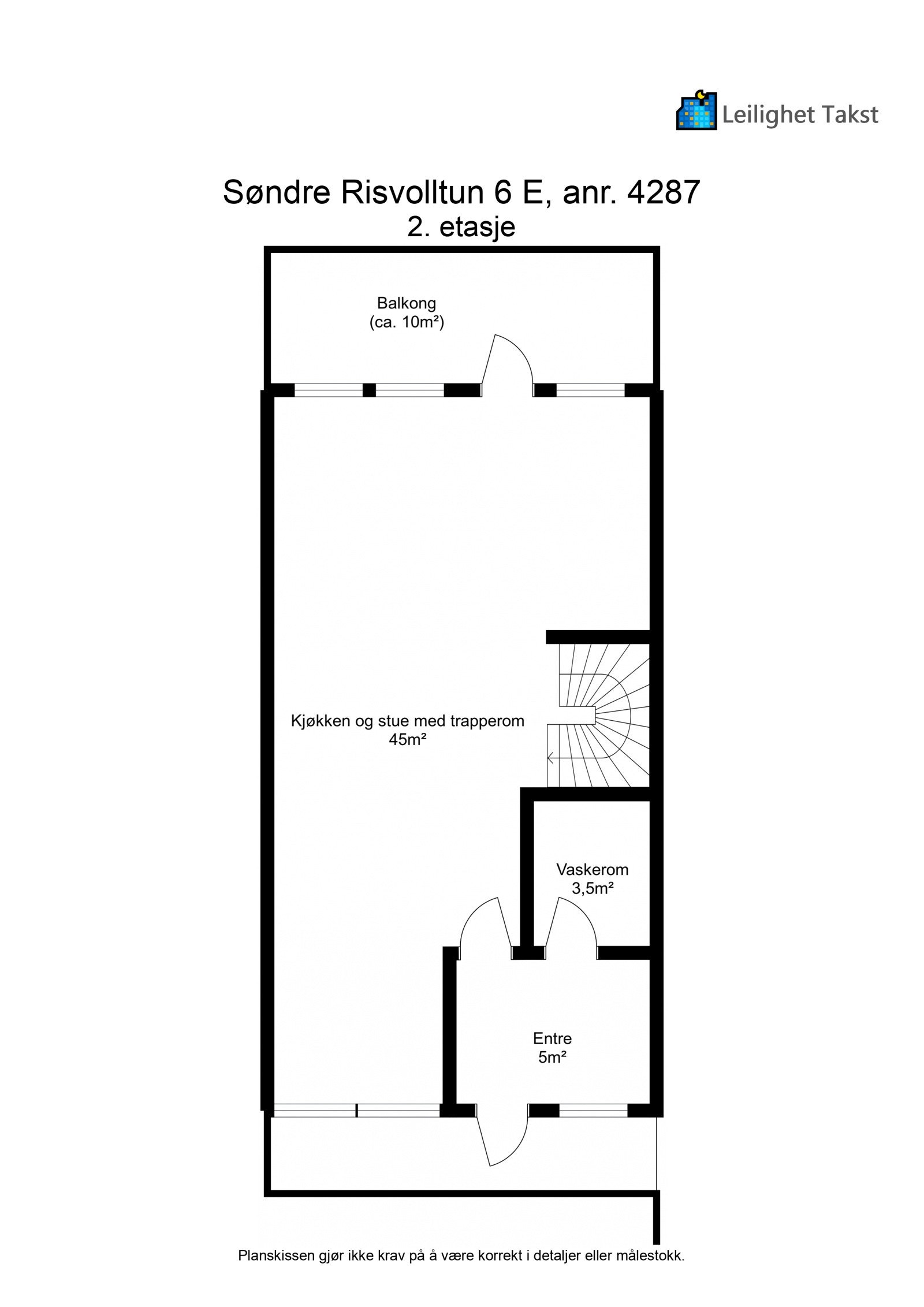
Moderne og romslig 4-roms med praktisk planløsning fordelt over to plan. Boligen ligger i et barnevennlig område og nyter godt av en solrik og rolig beliggenhet, godt skjermet for trafikk og innsyn. Her bor man med kort avstand til bl.a. skole, barnehage, lekeplass, butikksenter, bussholdeplass og Estenstadmarka med helårs turterreng.
- Praktisk planløsning med stue og kjøkken i samme etasje.
- Tre store soverom, kontor, garderobe og bad i 2.etasje.
- Balkong på begge sider av boligen med sol hele dagen.
- Flott utsikt fra toppetasje mot fjorden og solnedgangen.
- Nyoppusset kjøkken fra 2021 med integrerte hvitevarer.
- Oppvarming, varmtvann, kabel-tv og internett inkludert.
- Fast p-plass i oppvarmet garasjeanlegg følger boligen.
- God lagringsplass med bod i kjeller, en ved p-plass samt sykkelbod på bakkeplan.
Salgsoppgaven beskriver vesentlig og lovpålagt informasjon om eiendommen
Se komplett salgsoppgaveNyttige lenker
Nærområdet

PrivatMegleren Trondheim
Prisstatistikk
Søndre Risvolltun 6E
på annonsen
prisantydning per kvadratmeter
Prisfordeling
Pris per m² ligger 23 274 kr under snittet for leiligheter i Trondheim Øst.
Grafen viser antall leiligheter solgt i Trondheim Øst siste året fordelt på pris per m² - totalt 2 549 leiligheter
Antall boliger
Kvadratmeterpris tilsvarer prisantydning pluss fellesgjeld per kvadratmeter (p-rom eller BRA-i). Prisene i grafen er avrundet til nærmeste 1000 kr.
Annonseinformasjon
| FINN-kode | 390341767 |
|---|---|
| Sist endret | 07. mars 2025 13:44 |
| Referanse | 114240302 |
Annonsene kan være mangelfulle i forhold til lovpålagt opplysningsplikt. Før bindende avtale inngås oppfordres interessenter til å innhente komplett informasjon fra meglerforetaket, selger eller utleier.
































