Bildegalleri

Velkommen til Nerviksdalen 9! Foto v/ Haukdal, Interiørfoto
Orkanger: Hel tomannsbolig med flott beliggenhet på Nerøra. Gode leieinntekter (10 500,- pr mnd). Romslig enkelgarasje.
Prisantydning4 750 000 kr
Nøkkelinfo
- Boligtype
- Tomannsbolig
- Eieform
- Eier (Selveier)
- Soverom
- 4
- Internt bruksareal
- 220 m² (BRA-i)
- Bruksareal
- 220 m²
- Balkong/Terrasse
- 17 m² (TBA)
- Etasje
- 3
- Byggeår
- 1978
- Energimerking
- G - Gul
- Tomteareal
- 353 m² (eiet)
Visning
Ved annonsert visning er det viktig at du melder deg på visningen ved å bruke visningspåmeldingsknappen eller kontakter megler. Annonserte visninger hvor det ikke er noen påmeldte innen kl. 16:00 dagen før oppsatt visning vil ikke bli avholdt.
For visninger utover dette, ta direkte kontakt med megler.
VisningspåmeldingOm boligen
Som en perle på nedre del av Orkanger finner man Nerøra. Her er eldre og sjarmerende trehusbebyggelse. Noen hundre meters gange til både Orkanger barnehage og Rianmyra barnehage. Få minutters gange fra eiendommen finner man sentrumsgata.
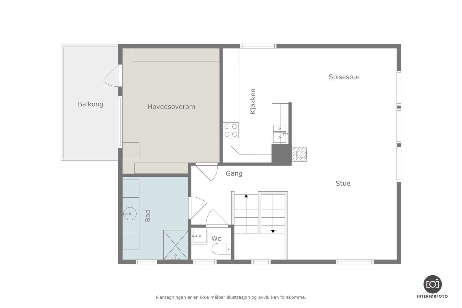
Boligen er en hel tomannsbolig. God planløsning hvor man selv kan bebo den største delen og leie ut en del av boligen. Pt. utleid for kr 10 500,- pr. mnd.
Inneholder:
Hoveddel:
1. etg: Yttergang, gang og soverom.
2. etg: Stue, kjøkken, soverom, bad og wc.
Kjeller: Gang, vaskerom, 2 soverom, stue og bod.
Utleiedel, 1.etg:
Egen inngang, gang, bad, stue, kjøkken og soverom.
Romslig enkelgarasje.
Boligen er oppgradert, bl.a. innredet gang, 2 soverom og stue i kjeller i 2023/24, pusset opp kjk 1. etg. ca. 2012, kjk 2. etg. ca. 2007, taktekke ca 2007.
Boligen er en hel tomannsbolig. God planløsning hvor man selv kan bebo den største delen og leie ut en del av boligen. Pt. utleid for kr 10 500,- pr. mnd.
Inneholder:
Hoveddel:
1. etg: Yttergang, gang og soverom.
2. etg: Stue, kjøkken, soverom, bad og wc.
Kjeller: Gang, vaskerom, 2 soverom, stue og bod.
Utleiedel, 1.etg:
Egen inngang, gang, bad, stue, kjøkken og soverom.
Romslig enkelgarasje.
Boligen er oppgradert, bl.a. innredet gang, 2 soverom og stue i kjeller i 2023/24, pusset opp kjk 1. etg. ca. 2012, kjk 2. etg. ca. 2007, taktekke ca 2007.
NB: Knappen for å vise hele beskrivelsen har kun en visuell effekt.
NB: Knappen for å vise hele beskrivelsen har kun en visuell effekt.
Salgsoppgaven beskriver vesentlig og lovpålagt informasjon om eiendommen
Se komplett salgsoppgaveNærområdet
Aktiv Orkla
Annonseinformasjon
| FINN-kode | 389898771 |
|---|---|
| Sist endret | 11. des. 2025 11:28 |
| Referanse | 1702240270 |
Annonsene kan være mangelfulle i forhold til lovpålagt opplysningsplikt. Før bindende avtale inngås oppfordres interessenter til å innhente komplett informasjon fra meglerforetaket, selger eller utleier.

































