Bildegalleri

Den staselige stuen smykkes av stukkatur og rosett i himlingen, og har god plass til både tv-lounge og spisebord.
Tiltalende 3-roms toppleilighet i ærverdig bygg. Moderne kjøkken fra 2021, ildsted og utsikt. Trafikkstille og sentralt
Nøkkelinfo
- Boligtype
- Leilighet
- Eieform
- Andel
- Soverom
- 2
- Internt bruksareal
- 63 m² (BRA-i)
- Bruksareal
- 79 m²
- Eksternt bruksareal
- 16 m² (BRA-e)
- Etasje
- 3
- Byggeår
- 1929
- Energimerking
- G - Rød
- Tomteareal
- 3 337 m²
- Boligselgerforsikring
- Ja
Fasiliteter
Om boligen
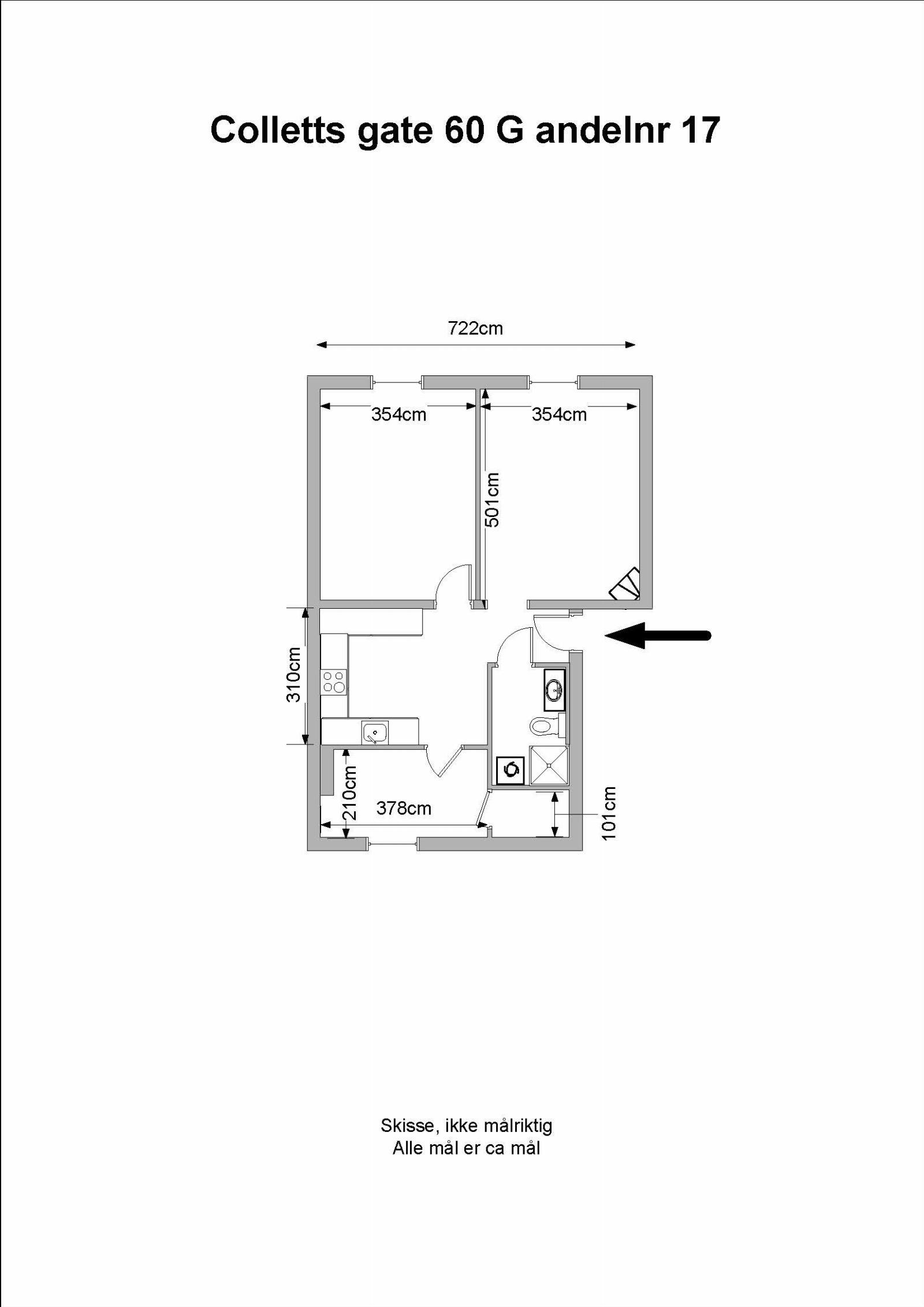
Colletts gate 60 G er en tiltalende 3-roms andelsleilighet i toppetasjen. Bygården er en del av Ilakomplekset, plassert på et høydedrag med solrik bakgård mot nordvest. Plasseringen gjør leiligheten helt skjermet for trafikkstøy, samtidig som det er gangavstand til alt man trenger. Fra stuen og hovedsoverommet er utsikten vidstrakt mot byen i sydøst.
Stuen og soverommene smykkes av bred stukkatur og har store vinduer fra 2006. I hovedsoverommet skaper en murt peis ekstra hygge. Kjøkkenet ligger åpent mot entreen og har en stilren innredning fra 2021 med delvis integrerte hvitevarer. Entré/kjøkken og det minste soverommet har nyere enstavs parkettgulv, mens stue og hovedsoverom har slipte furugulv. Badet ble pusset opp i 2010, det er bod i det minste soverommet, boder på loft og i kjeller.
Salgsoppgaven beskriver vesentlig og lovpålagt informasjon om eiendommen
Se komplett salgsoppgaveNyttige lenker
Nærområdet

PrivatMegleren Scenario
Annonseinformasjon
| FINN-kode | 389888475 |
|---|---|
| Sist endret | 31. jan. 2025 12:04 |
| Referanse | 117240121 |
Annonsene kan være mangelfulle i forhold til lovpålagt opplysningsplikt. Før bindende avtale inngås oppfordres interessenter til å innhente komplett informasjon fra meglerforetaket, selger eller utleier.






























