Bildegalleri

Velkommen til Høysandtoppen 15. En unik mulighet å skaffe deg en ny og innflytningsklar enebolig i vakre omgivelser ved sjøen!
Moderne enebolig v/ sjøen | Klargjort for livsløpstandard | 1 t. til Oslo | Innflyttingsklart | Nytt & moderne hus!
Nøkkelinfo
- Boligtype
- Enebolig
- Eieform
- Eier (Selveier)
- Soverom
- 3
- Internt bruksareal
- 140 m² (BRA-i)
- Bruksareal
- 140 m²
- Balkong/Terrasse
- 36 m² (TBA)
- Byggeår
- 2023
- Energimerking
- B - Rød
- Tomteareal
- 755 m² (eiet)
Fasiliteter
Visning
Om boligen
Velkommen til Høysandtoppen 15. Høysand er et sjarmerende. lite tettsted - kjent for sin miks av koselige hus & hytter. Her svinger stiene seg på kryss og tvers og barna kan løpe rundt i dette fredelig kystparadiset. Moderne enebolig med sjøutsikt, der dere kan nyte en avslappende livsstil på et nyetablert " tun ". Bør sees!
&HØYDEPUNKTER:
- Et spennende hjem i idylliske omgivelser!
- Nybygd bolig fra 2023 - elegant utformet m/ store vindusflater som gir fantastisk utsikt mot sjøen
- Nybyggaranti
- Eiendommen ligger bare noen få min. gangavstand fra badestrender & marinaen
- Moderne fasiliteter som bl.a.energihus & smartteknologi
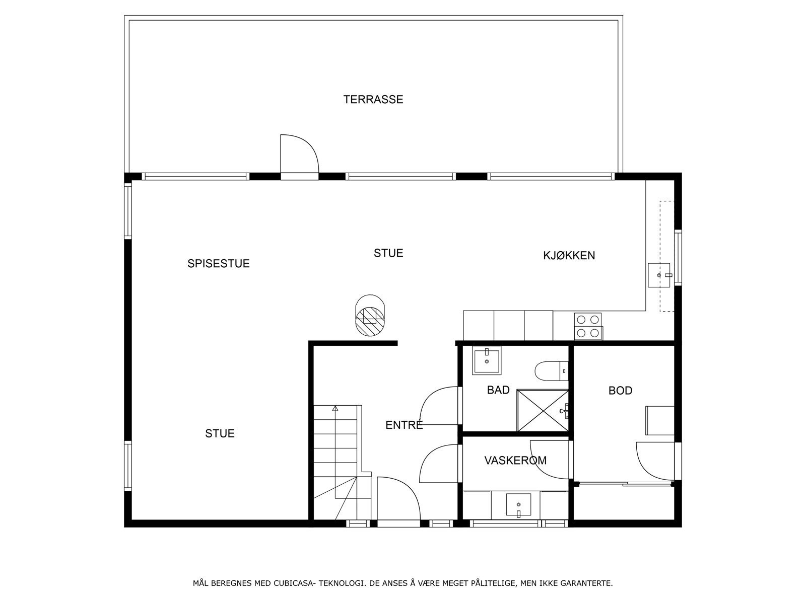
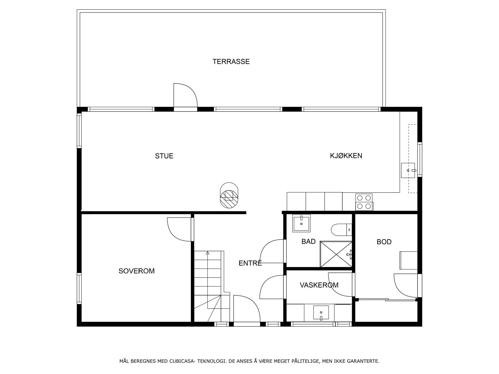
- 3 (5) soverom
- Terrasse m/ pergola
- Oppgradert kjøkken fra Drømmekjøkken
- 2 bad
- Separat vaskerom & bod med dør ut
- Opparbeidet hage m/ ny hekk
- Kort vei til E6
Velkommen til visning!
Salgsoppgaven beskriver vesentlig og lovpålagt informasjon om eiendommen
Se komplett salgsoppgaveNyttige lenker
Nærområdet
Holmskau & Partners
Annonseinformasjon
| FINN-kode | 389676270 |
|---|---|
| Sist endret | 07. feb. 2026 03:19 |
| Referanse | 194240061 |
Annonsene kan være mangelfulle i forhold til lovpålagt opplysningsplikt. Før bindende avtale inngås oppfordres interessenter til å innhente komplett informasjon fra meglerforetaket, selger eller utleier.






























































