Bildegalleri

Lindemans gate 5 B presentert av Aronsen i Privatmegleren Allè
Solgt
Ved Frognerparken
Attraktiv 3- roms selveierleilighet- Balkong- Heis- Mulighet for kjøp av garasjeplass- Fint utsyn- Populær beliggenhet!
Prisantydning8 300 000 kr
Nøkkelinfo
- Boligtype
- Leilighet
- Eieform
- Selveier
- Soverom
- 2
- Internt bruksareal
- 74 m² (BRA-i)
- Bruksareal
- 80 m²
- Eksternt bruksareal
- 6 m² (BRA-e)
- Balkong/Terrasse
- 7 m² (TBA)
- Etasje
- 4
- Byggeår
- 1995
- Energimerking
- D - Rød
- Rom
- 3
- Tomteareal
- 4 844 m² (eiet)
- Boligselgerforsikring
- Ja
Fasiliteter
Balkong/Terrasse
Heis
Rolig
Kabel-TV
Sentralt
Garasje/P-plass
Offentlig vann/kloakk
Bredbåndstilknytning
Om boligen
Velkommen til Lindemans gate, et steinkast fra Frognerparken.
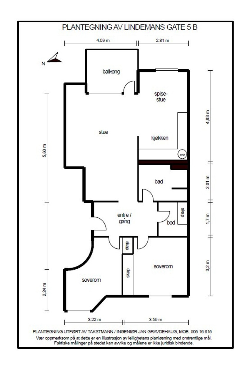
Leiligheten inneholder entre, innvendig bod, stue med utgang til balkong, hyggelig kjøkken med spiseplass, bad med opplegg for vaskemaskin, samt 2 soverom.
Kort fortalt:
- Attraktiv 3- roms leilighet med Frognerparken som nærmeste nabo
- Balkong med fint utsyn
- Heis
- Store vindusflater- god atmosfære
- Meget god og arealeffektiv planløsning
- Bod i kjeller
- *Mulighet for kjøp av selgers garasjeplass i Lindemans gate 3 med direkte heisadkomst. I tillegg disponerer sameiet 6 plasser til beboere/gjester innenfor lukket bom etter nærmere regler
- Idyllisk, rolig og tilbaketrukket beliggenhet, skjermet for gjennomgangstrafikk
- Populær og sentral beliggenhet. Kort vei til off. kommunikasjon og alle mulige servicetilbud
Her vil du trives. Velkommen til visning!
NB: Knappen for å vise hele beskrivelsen har kun en visuell effekt.
NB: Knappen for å vise hele beskrivelsen har kun en visuell effekt.
Salgsoppgaven beskriver vesentlig og lovpålagt informasjon om eiendommen
Se komplett salgsoppgaveNyttige lenker
Nærområdet

PrivatMegleren Allé
Kun det beste på dine vegne
Annonseinformasjon
| FINN-kode | 389671730 |
|---|---|
| Sist endret | 31. jan. 2025 14:19 |
| Referanse | 186250006 |
Annonsene kan være mangelfulle i forhold til lovpålagt opplysningsplikt. Før bindende avtale inngås oppfordres interessenter til å innhente komplett informasjon fra meglerforetaket, selger eller utleier.








































