Bildegalleri

EIE eiendomsmegling ved Alexander Reitan har gleden av å presentere Kyavegen 12!
Delikat og praktisk 2-roms leilighet | Parkering | IN-ordning | Gode kollektivtilbud | Perfekt førstegangskjøp!
Nøkkelinfo
- Boligtype
- Leilighet
- Eieform
- Andel
- Soverom
- 1
- Internt bruksareal
- 38 m² (BRA-i)
- Bruksareal
- 48 m²
- Eksternt bruksareal
- 10 m² (BRA-e)
- Etasje
- 2
- Byggeår
- 1940
- Energimerking
- G - Mørkegrønn
- Tomteareal
- 3 669 m² (eiet)
Fasiliteter
Om boligen
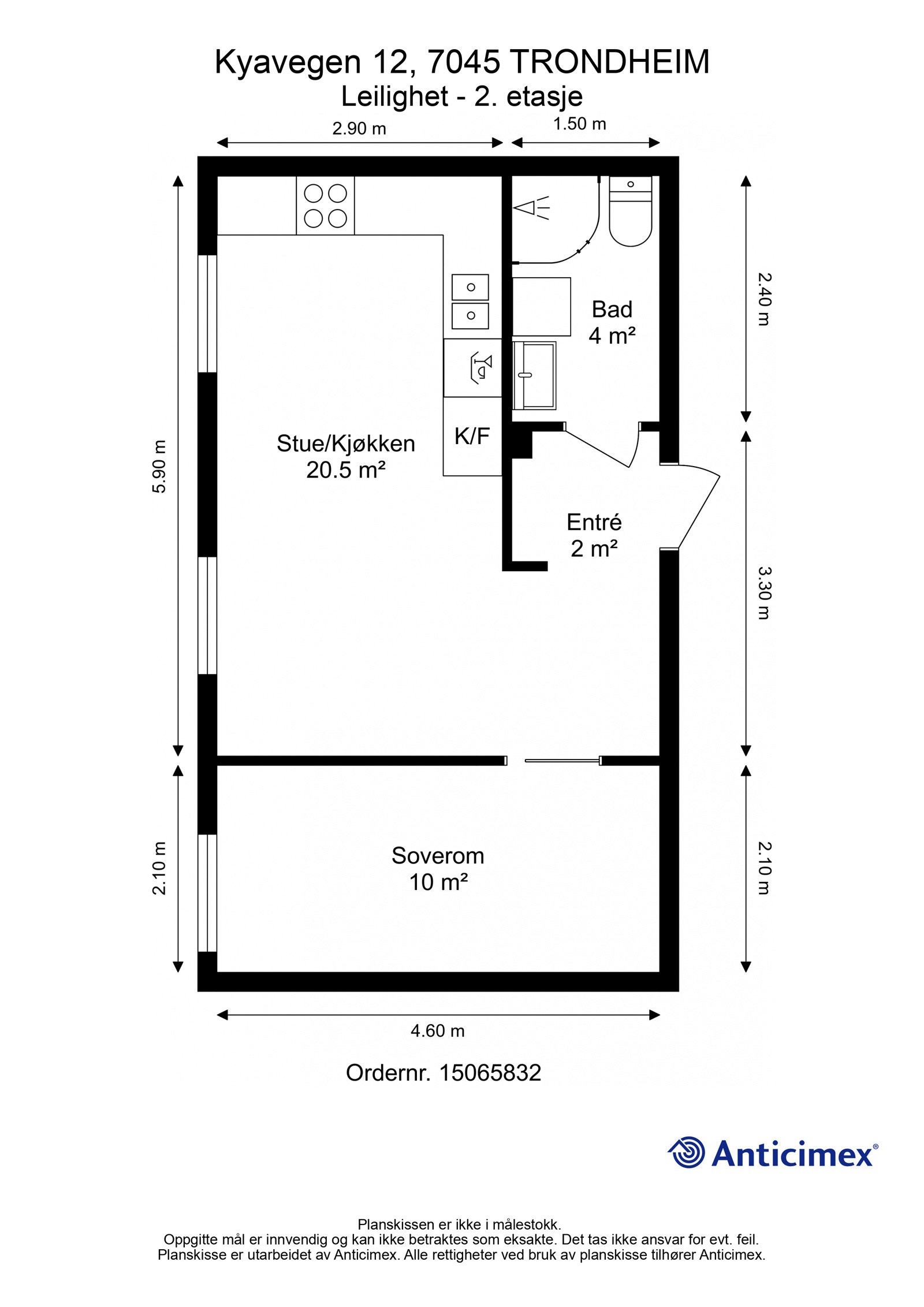
EIE eiendomsmegling ved Alexander Reitan har gleden av å presentere Kyavegen 12. En delikat og praktisk 2-roms leilighet på populære Persaunet. Perfekt leilighet om du ønsker å komme deg inn på boligmarkedet! Attraktivt og sentrumsnært beliggende med åpne og solrike fellesområder/plen. Gangavstand til både buss, dagligvarebutikker, Plantasjen, Valentinlystsenteret m.m.
Boligen består av entré, flislagt bad, stort soverom og en praktisk åpen stue-/kjøkkenløsning.
Merk deg dette:
- Disponerer parkeringsplass.
- Oppvarmes med fjernvarme.
- IN-ordning gjør det mulig med raskere nedbetaling av fellesgjeld.
- Boligen er godt vedlikeholdt, 88% TG1.
- Store, fine grøntareal med benker til felles benyttelse for beboerne.
Velkommen til hyggelig visning!
Salgsoppgaven beskriver vesentlig og lovpålagt informasjon om eiendommen
Se komplett salgsoppgaveNærområdet
EIE eiendomsmegling Trondheim sentrum
Karen Ulvan Ratdal
Trainee
Annonseinformasjon
| FINN-kode | 389378107 |
|---|---|
| Sist endret | 23. feb. 2025 14:54 |
| Referanse | 133250002 |
Annonsene kan være mangelfulle i forhold til lovpålagt opplysningsplikt. Før bindende avtale inngås oppfordres interessenter til å innhente komplett informasjon fra meglerforetaket, selger eller utleier.





















