Bildegalleri

Houssam Ben Zrelli ved EIE eiendomsmegling har gleden av å presentere denne innbydende og moderne 3-roms leiligheten!
Solgt
Kalbakken
Moderne 3-R pusset opp i 2022 | Bad 2007 | Innglasset balkong | Fyring/TV/internett inkl. | Stille og rolig nabolag!
Prisantydning4 100 000 kr
Nøkkelinfo
- Boligtype
- Leilighet
- Eieform
- Andel
- Soverom
- 2
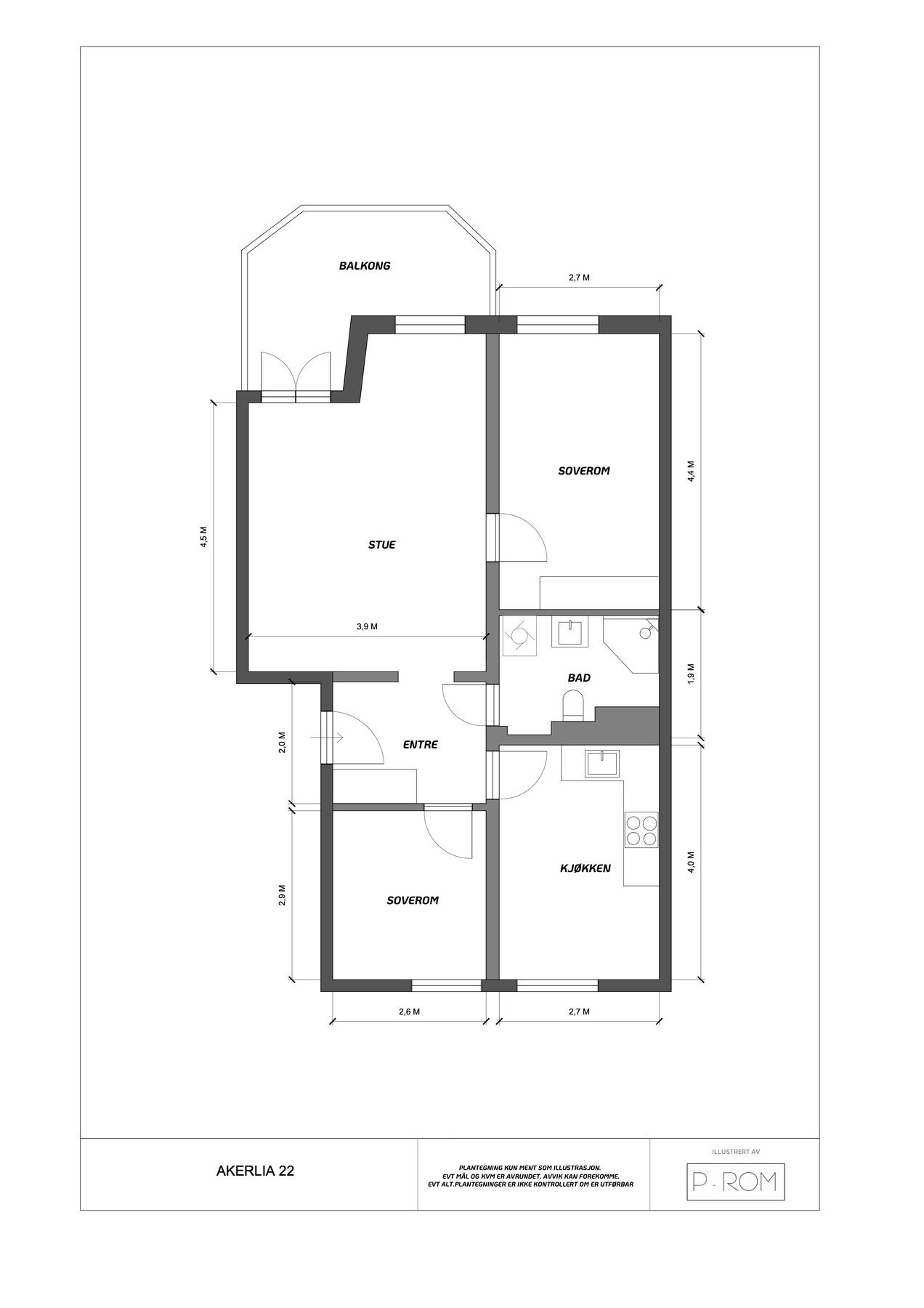
- Internt bruksareal
- 65 m² (BRA-i)
- Bruksareal
- 82 m²
- Eksternt bruksareal
- 8 m² (BRA-e)
- Innglasset balkong
- 9 m² (BRA-b)
- Etasje
- 1
- Byggeår
- 1957
- Energimerking
- F - Lysegrønn
- Rom
- 3
- Tomteareal
- 39 680 m² (eiet)
Fasiliteter
Barnevennlig
Balkong/Terrasse
Garasje/P-plass
Kabel-TV
Alarm
Offentlig vann/kloakk
Turterreng
Vaktmester-/vektertjeneste
Sentralt
Bredbåndstilknytning
Moderne
Rolig
Bademulighet
Lademulighet
Om boligen
Houssam Ben Zrelli ved EIE eiendomsmegling har gleden av å presentere denne innbydende og moderne 3-roms leiligheten!
Boligen ligger sentralt til på populære Kalbakken, med kort avstand til alt du trenger i hverdagen. I umiddelbar nærhet finnes fasiliteter som offentlig kommunikasjon, matbutikker, skoler m.m.
Kvaliteter:
- Gjennomgående planløsning
- Pusset opp i 2022
- Separat kjøkken
- Pent helflislagt bad fra 2007 med opplegg for vaskemaskin
- Innglasset balkong på 9 m²
- Vinduer og balkongdør fra 2016
- Loftsbod og kjellerbod
- Mulighet for leie av p-plass etter venteliste
- Fra boligen er det "tøffelavstand" til det meste
- Veldrevet borettslag med god vedlikeholdshistorikk
- Fellesvaskeri og sykkelbod
Velkommen til visning!
Boligen ligger sentralt til på populære Kalbakken, med kort avstand til alt du trenger i hverdagen. I umiddelbar nærhet finnes fasiliteter som offentlig kommunikasjon, matbutikker, skoler m.m.
Kvaliteter:
- Gjennomgående planløsning
- Pusset opp i 2022
- Separat kjøkken
- Pent helflislagt bad fra 2007 med opplegg for vaskemaskin
- Innglasset balkong på 9 m²
- Vinduer og balkongdør fra 2016
- Loftsbod og kjellerbod
- Mulighet for leie av p-plass etter venteliste
- Fra boligen er det "tøffelavstand" til det meste
- Veldrevet borettslag med god vedlikeholdshistorikk
- Fellesvaskeri og sykkelbod
Velkommen til visning!
NB: Knappen for å vise hele beskrivelsen har kun en visuell effekt.
NB: Knappen for å vise hele beskrivelsen har kun en visuell effekt.
Salgsoppgaven beskriver vesentlig og lovpålagt informasjon om eiendommen
Se komplett salgsoppgaveNyttige lenker
Nærområdet
EIE eiendomsmegling Stovner
Annonseinformasjon
| FINN-kode | 389335334 |
|---|---|
| Sist endret | 31. jan. 2025 11:34 |
| Referanse | 75240516 |
Annonsene kan være mangelfulle i forhold til lovpålagt opplysningsplikt. Før bindende avtale inngås oppfordres interessenter til å innhente komplett informasjon fra meglerforetaket, selger eller utleier.





































