Bildegalleri

Stor, moderne 4-romsleilighet med svært god beliggenhet på Nedre Elvehavn med herlig utsikt over kanalen.
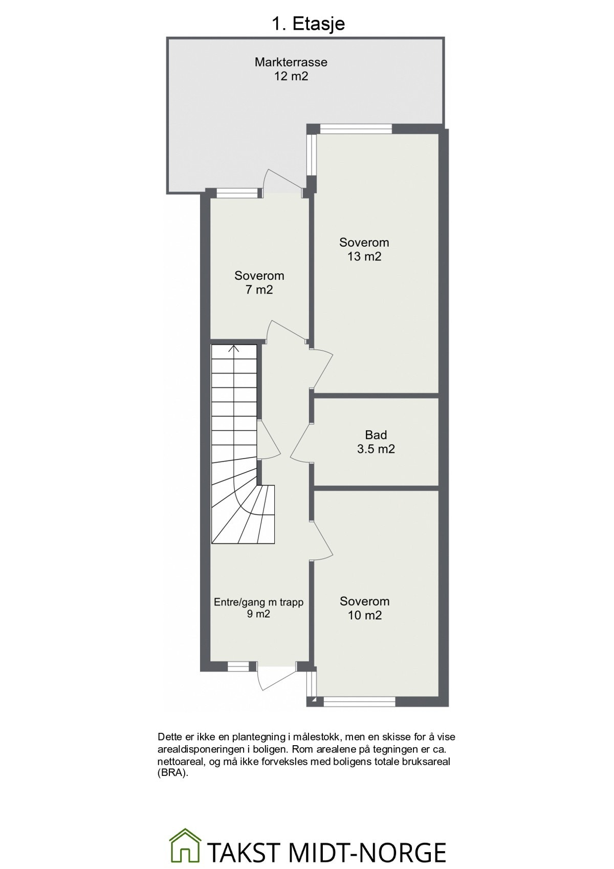
Stor, moderne hjørneleilighet med utsikt over kanalen. 3 soverom, 3 uteplasser og 2 bad. P-kjeller og felles takterrasse
Nøkkelinfo
- Boligtype
- Leilighet
- Eieform
- Andel
- Soverom
- 3
- Internt bruksareal
- 94 m² (BRA-i)
- Bruksareal
- 94 m²
- Eksternt bruksareal
- 5 m² (BRA-e)
- Balkong/Terrasse
- 24 m² (TBA)
- Etasje
- 1
- Byggeår
- 2005
- Energimerking
- C - Mørkegrønn
- Tomt
- Eiet
- Boligselgerforsikring
- Ja
Fasiliteter
Om boligen
Tiltalende 4-romsleilighet med svært god beliggenhet på Solsiden. Leilighetens hjørneplassering gir fantastisk utsikt over havnebassenget. Her bor du midt i smørøyet med nærhet til alt av servicetilbud, så vel som gode turmuligheter langs promenaden ved fjorden. Dyre Halses tilbyr fin balanse mellom byliv og rolig bomiljø.
- Tilnærmet alt ink. i felleskostnader
- Tre uteplasser i tillegg til terrasse ved eget inngangsparti
- Felles takterrasse
- Parkering i p-kjeller med lader
- Nytt kjøkken i 2020 med plass til stor spisestue
- To flislagte bad
- Tre gode soverom
- Balansert ventilasjon og vannbåren varme gir godt inneklima og behagelig oppvarming
- Solsiden med restauranter og butikker i umiddelbar nærhet
- Meget godt kollektivtilbud
- Gang- og sykkelavstand til sentrum, Bakklandet, Lade og flere av byens studiesteder
Salgsoppgaven beskriver vesentlig og lovpålagt informasjon om eiendommen
Se komplett salgsoppgaveNyttige lenker
Nærområdet

PrivatMegleren Trondheim
Prisstatistikk
Dyre Halses gate 8
på annonsen
prisantydning per kvadratmeter
Prisfordeling
Pris per m² ligger 808 kr over snittet for leiligheter i Trondheim Sentrum.
Grafen viser antall leiligheter solgt i Trondheim Sentrum siste året fordelt på pris per m² - totalt 853 leiligheter
Antall boliger
Kvadratmeterpris tilsvarer prisantydning pluss fellesgjeld per kvadratmeter (p-rom eller BRA-i). Prisene i grafen er avrundet til nærmeste 1000 kr.
Annonseinformasjon
| FINN-kode | 389159188 |
|---|---|
| Sist endret | 26. jan. 2025 11:04 |
| Referanse | 114240355 |
Annonsene kan være mangelfulle i forhold til lovpålagt opplysningsplikt. Før bindende avtale inngås oppfordres interessenter til å innhente komplett informasjon fra meglerforetaket, selger eller utleier.


































