Bildegalleri

Nyoppusset i 2023. Velkommen til flott utsiktsleilighet i 12. etasje i Enerhauggata 3!
Solgt
ENERHAUGEN
Rålekker 3-roms med flott utsikt. Stort bad. Fyring, varmtvann og høyhastighets internett inkl. Ingen dokumentavgift
Prisantydning7 400 000 kr
Nøkkelinfo
- Boligtype
- Leilighet
- Eieform
- Andel
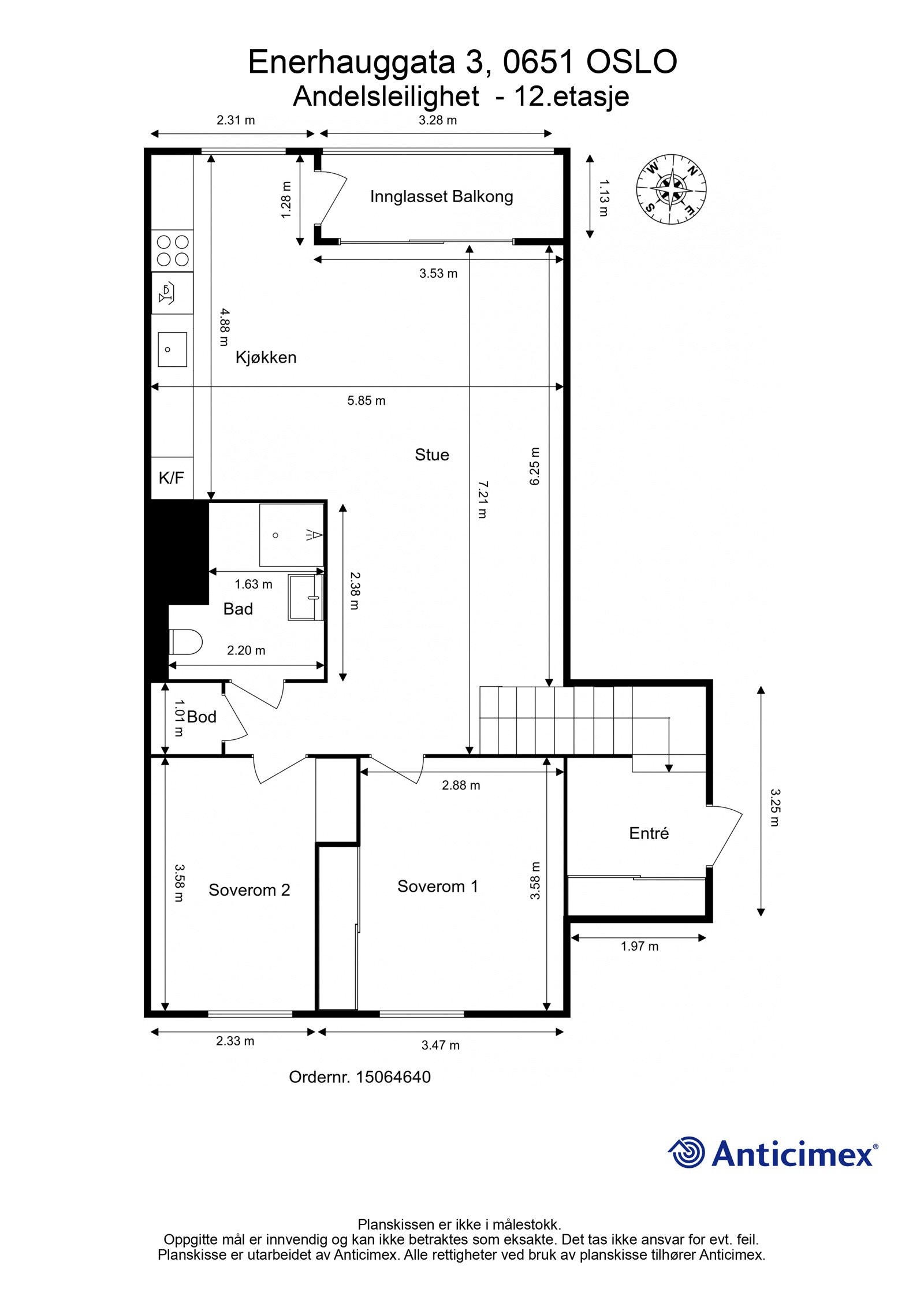
- Soverom
- 2
- Internt bruksareal
- 72 m² (BRA-i)
- Bruksareal
- 80 m²
- Eksternt bruksareal
- 4 m² (BRA-e)
- Innglasset balkong
- 4 m² (BRA-b)
- Etasje
- 12
- Byggeår
- 1964
- Energimerking
- E - Mørkegrønn
- Rom
- 3
- Tomteareal
- 13 059 m² (eiet)
Fasiliteter
Balkong/Terrasse
Heis
Kabel-TV
Moderne
Sentralt
Turterreng
Utsikt
Vaktmester-/vektertjeneste
Fellesvaskeri
Bredbåndstilknytning
Om boligen
LEILIGHETEN LIGGER HØYT OG FRITT UTEN INNSYN i 12. ETASJE MED FANTASTISK UTSIKT MOT FJORDEN I SØR, HOLMENKOLLEN OG NORDMARKA, BOTANISK HAGE OG GREFSENKOLLEN I NORD
Gangavstand til Oslo sentrum, Tøyen Torg, Botanisk Hage, Grünerløkka, Oslo S, Bjørvika og Sørenga. Her har du nærhet til alt byen har å by på!
- Nyoppusset i 2023
- HTH kjk m/integrerte hvitevarer
- Stort lekkert flislagt bad
- Enstavs parkett i alle rom, fliser på bad
- Stor skyvedør med adkomst til balkong
- Fyring, v.vann, kabel-tv og fiber inkl.
- Kott v/bad, kjellerbod skap i fellesrom
- Borettslaget har 180 garasjeplasser og gunstig avtale med leiebil/bildelingsfirma
- Felles vaskeri med industrimaskiner
- Felles sykkelrom
- Kort avstand til "alt"
- Få minutter til t-bane m/alle linjer
- Lave kjøpsomkostninger. Ingen dok.avgift
- Rask avklaring av forkjøpsretten
NB: Knappen for å vise hele beskrivelsen har kun en visuell effekt.
NB: Knappen for å vise hele beskrivelsen har kun en visuell effekt.
Salgsoppgaven beskriver vesentlig og lovpålagt informasjon om eiendommen
Se komplett salgsoppgaveNyttige lenker
Nærområdet
OBOS eiendomsmeglere - Oslo Sentrum
Annonseinformasjon
| FINN-kode | 389063376 |
|---|---|
| Sist endret | 25. jan. 2025 13:09 |
| Referanse | 701240107 |
Annonsene kan være mangelfulle i forhold til lovpålagt opplysningsplikt. Før bindende avtale inngås oppfordres interessenter til å innhente komplett informasjon fra meglerforetaket, selger eller utleier.





























