Bildegalleri

Velkommen til Trondheimsveien 58.
Herlig topp- /endeleilighet med stor terrasse på 24m2 med sol hele dagen og flott utsikt | Heis | Parkering* | Sentralt
Nøkkelinfo
- Boligtype
- Leilighet
- Eieform
- Selveier
- Soverom
- 1
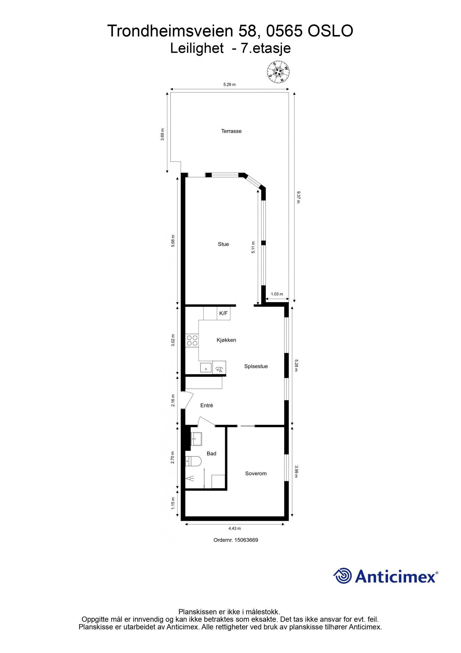
- Internt bruksareal
- 59 m² (BRA-i)
- Bruksareal
- 62 m²
- Eksternt bruksareal
- 3 m² (BRA-e)
- Balkong/Terrasse
- 25 m² (TBA)
- Etasje
- 7
- Byggeår
- 1993
- Rom
- 2
- Tomteareal
- 1 236 m² (eiet)
Fasiliteter
Visning
Om boligen
Velkommen til en fantastisk topp-/endeleilighet med stor, solrik terrasse på 24m2. Boligen har en flott planløsning med flere store vindusflater som gir rikelig med naturlig lys og flott utsikt. Det er heis i bygget.
Fra leiligheten og terrassen er det panoramautsikt og minimalt med innsyn.
Sentral beliggenhet med rolige boforhold. Fra leiligheten er det kort vei til "alt".
- Toppetasje/7. etg. med heis.
- Sydvestvendt takterrasse på hele 24m².
- Særdeles flotte solforhold og panoramautsikt.
- Privat og skjermet, helt uten gjenboere.
- Sentral beliggenhet med nærhet til "alt".
- Ingen felleslån/Ingen fellesgjeld og lave felleskostnader
- Garasje i underetasje (mulighet for kjøp/leie ved ledighet, ledig for leie pt.).
- Gode kollektivmuligheter i umiddelbar nærhet.
- Kjellerbod.
Salgsoppgaven beskriver vesentlig og lovpålagt informasjon om eiendommen
Se komplett salgsoppgaveNyttige lenker
Nærområdet
&Partners Carl Berner
Annonseinformasjon
| FINN-kode | 389033402 |
|---|---|
| Sist endret | 22. jan. 2025 13:05 |
| Referanse | 17240113 |
Annonsene kan være mangelfulle i forhold til lovpålagt opplysningsplikt. Før bindende avtale inngås oppfordres interessenter til å innhente komplett informasjon fra meglerforetaket, selger eller utleier.































