Bildegalleri

Illustrasjon | Avvik kan forekomme.
Røa
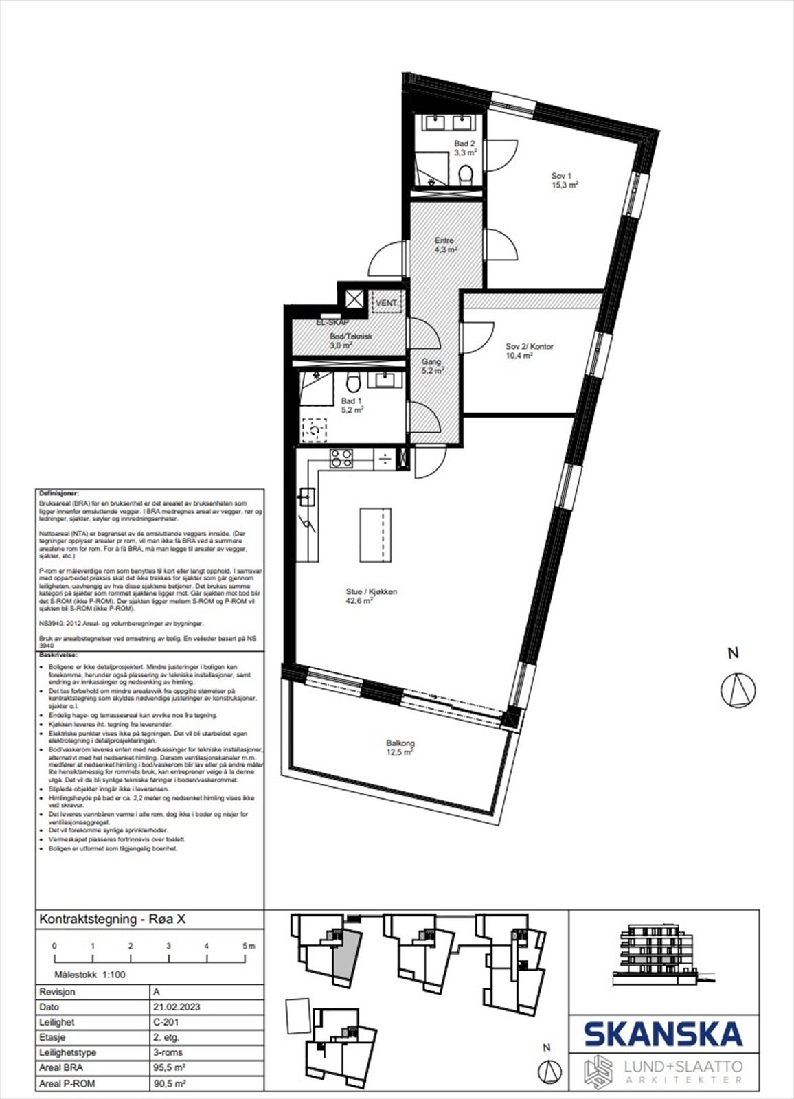
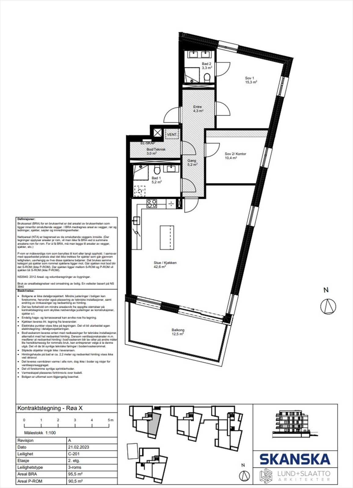
Ny, stor 3-roms hjørneleilighet m/sørvendt balkong på 12,5 m². 2 bad. Garasjeplass. Lav dok.avg. Overtakelse 8/4-26
Prisantydning13 750 000 kr
Nøkkelinfo
- Boligtype
- Leilighet
- Eieform
- Eier (Selveier)
- Soverom
- 2
- Internt bruksareal
- 96 m² (BRA-i)
- Bruksareal
- 101 m²
- Eksternt bruksareal
- 5 m² (BRA-e)
- Etasje
- 2
- Byggeår
- 2024
- Rom
- 3
- Tomteareal
- 1 700 m² (eiet)
Visning
Salg av kontraktsposisjon: Leiligheten er under oppføring og det er ikke tilgang på selve leiligheten/byggeplass. Det er mulig å gjennomføre en digital visning på Teams for en gjennomgang av spørsmål/fly i simulator (utsikt/solforhold). Konferer med megler Martin Killi Arnesen for ytterligere informasjon og en hyggelig prat.
VisningspåmeldingOm boligen
Dette er et salg av kontraktsposisjon vedrørende leilighet C-201 i prosjektet Røa-X. En lekker og stor 3-roms hjørneleilighet med sørvendt balkong på hele 12,5 m². Det medfølger garasjeplass. Røa-X skal inneholde 56 flotte og moderne leiligheter med høy standard. Prosjektet Røa X blir et kvalitetsprosjekt og består av totalt 4 punkthus hvor det er lagt vekt på gode planløsninger og store private balkonger. Anerkjente og prisvinnende Lund+Slaatto Arkitekter som har tegnet Røa X.
- 3-roms selveierleilighet på byggets hjørne med sørvendt balkong på 12,5 m²
- Garasjeplass medfølger
- Overtakelse 8. april 2026
- Lav dokumentavgift. Kun kr. 99 300.
- 5års reklamasjonsrett
- Gjennomgående planløsning
- Lekkert kjøkken fra HTH med integrerte hvitevarer
- 2 bad
- Heis
- Energivennlig (Godt isolert og balansert ventilasjon - BREEAM-sertifisert)
- God lagringsplass med innvendig bod på ca. 3 m² og kjellerbod på ca. 5 m²
- Nærhet til Røa Stasjon
- 3-roms selveierleilighet på byggets hjørne med sørvendt balkong på 12,5 m²
- Garasjeplass medfølger
- Overtakelse 8. april 2026
- Lav dokumentavgift. Kun kr. 99 300.
- 5års reklamasjonsrett
- Gjennomgående planløsning
- Lekkert kjøkken fra HTH med integrerte hvitevarer
- 2 bad
- Heis
- Energivennlig (Godt isolert og balansert ventilasjon - BREEAM-sertifisert)
- God lagringsplass med innvendig bod på ca. 3 m² og kjellerbod på ca. 5 m²
- Nærhet til Røa Stasjon
NB: Knappen for å vise hele beskrivelsen har kun en visuell effekt.
NB: Knappen for å vise hele beskrivelsen har kun en visuell effekt.
Salgsoppgaven beskriver vesentlig og lovpålagt informasjon om eiendommen
Se komplett salgsoppgaveNærområdet
Røisland & Co Eiendomsmegling AS
Tenk nytt - bo godt!
Annonseinformasjon
| FINN-kode | 388841193 |
|---|---|
| Sist endret | 18. des. 2025 13:00 |
| Referanse | RCOPS3.24195 |
Annonsene kan være mangelfulle i forhold til lovpålagt opplysningsplikt. Før bindende avtale inngås oppfordres interessenter til å innhente komplett informasjon fra meglerforetaket, selger eller utleier.






















