Bildegalleri

- Nordvik ved Henrik Carlyle(46856489) har gleden av å presentere Sandakerveien 22C -
Solgt
Torshov Torg
Delikat og påkostet townhouseleilighet - Hybeldel m/skattefrie inntekter - Kjøkken 2021 - VV/fyring ink - Takhøyde 5,28m
Prisantydning8 500 000 kr
Nøkkelinfo
- Boligtype
- Leilighet
- Eieform
- Eier (Selveier)
- Soverom
- 2
- Internt bruksareal
- 77 m² (BRA-i)
- Bruksareal
- 83 m²
- Eksternt bruksareal
- 6 m² (BRA-e)
- Balkong/Terrasse
- 20 m² (TBA)
- Etasje
- 1
- Byggeår
- 2012
- Energimerking
- C - Mørkegrønn
- Rom
- 4
- Tomteareal
- 39 m² (eiet)
Fasiliteter
Balkong/Terrasse
Barnevennlig
Bredbåndstilknytning
Garasje/P-plass
Heis
Kjæledyr tillatt
Kabel-TV
Offentlig vann/kloakk
Parkett
Rolig
Sentralt
Balansert ventilasjon
Om boligen
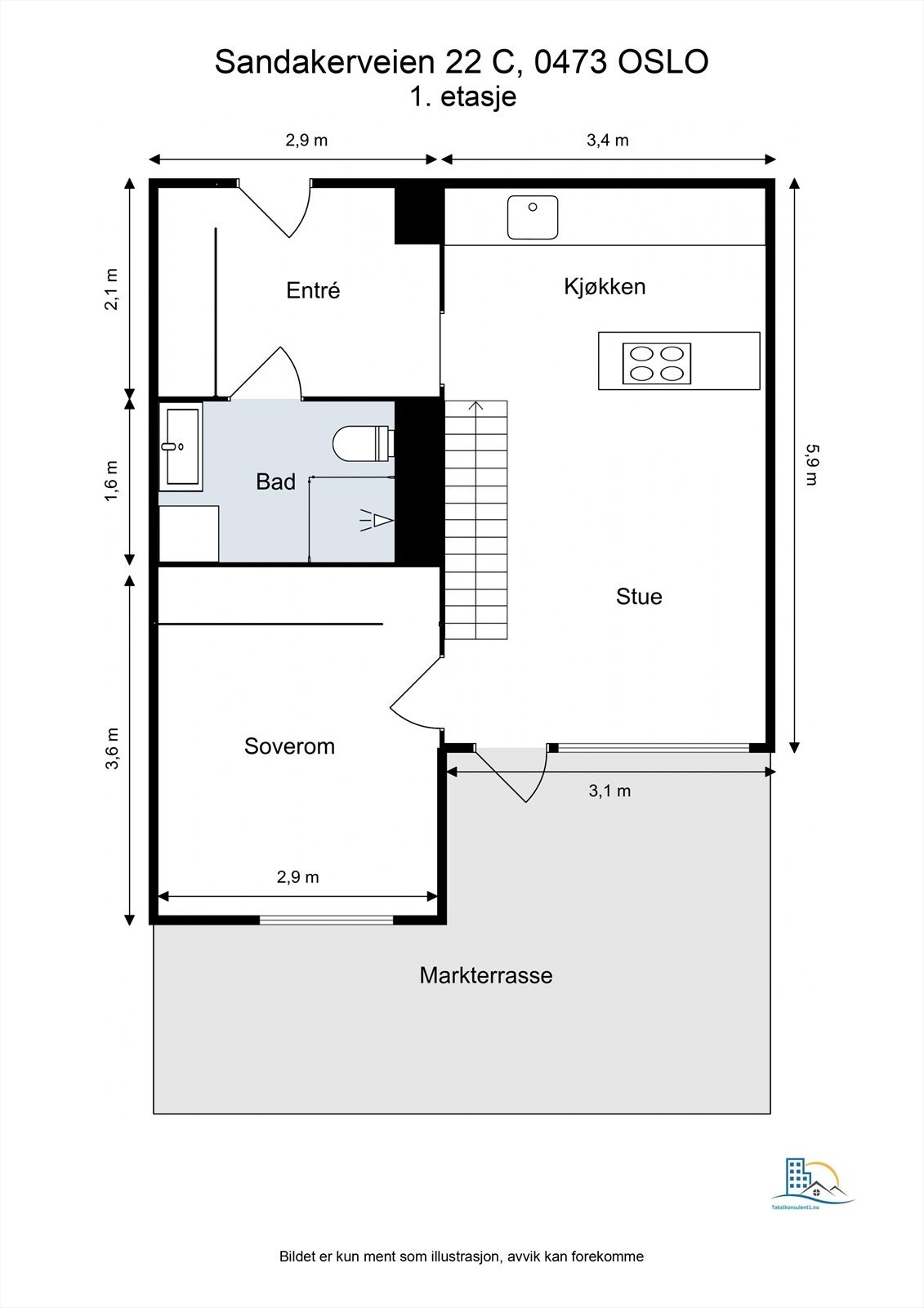
Nordvik har gleden av å presentere Sandakerveien 22C! En delikat og påkostet townhouseleilighet i nybygg fra 2012 med sentral og attraktiv beliggenhet på Torshov Torg. Leiligheten har en god planløsning over to plan og består av innbydende entré, trivelig stue med åpen kjøkkenløsning, flislagt baderom og romslig soverom. I tillegg er det en hybeldel med hyggelig entré/kjøkken, romslig stue/soverom og flislagt baderom.
- Hybeldel som gir skattefrie leieinntekter
- Varmtvann/fyring samt TV/internett er inkludert
- KVIK-kjøkken fra 2021 med høykvalitets hvitevarer og kompositt benkeplate
- Generøs takhøyde som er målt til 5,28 m på det høyeste
- En-stavs parkett på gulv
- Balansert ventilasjon
- Mulighet for kjøp eller leie av garasjeplass*
- Godt med lagringsplass i 2 boder
Velkommen!
- Hybeldel som gir skattefrie leieinntekter
- Varmtvann/fyring samt TV/internett er inkludert
- KVIK-kjøkken fra 2021 med høykvalitets hvitevarer og kompositt benkeplate
- Generøs takhøyde som er målt til 5,28 m på det høyeste
- En-stavs parkett på gulv
- Balansert ventilasjon
- Mulighet for kjøp eller leie av garasjeplass*
- Godt med lagringsplass i 2 boder
Velkommen!
NB: Knappen for å vise hele beskrivelsen har kun en visuell effekt.
NB: Knappen for å vise hele beskrivelsen har kun en visuell effekt.
Salgsoppgaven beskriver vesentlig og lovpålagt informasjon om eiendommen
Se komplett salgsoppgaveNyttige lenker
Nærområdet
Nordvik Bislett
Annonseinformasjon
| FINN-kode | 388603448 |
|---|---|
| Sist endret | 24. jan. 2025 15:39 |
| Referanse | 36-0138/24 |
Annonsene kan være mangelfulle i forhold til lovpålagt opplysningsplikt. Før bindende avtale inngås oppfordres interessenter til å innhente komplett informasjon fra meglerforetaket, selger eller utleier.


































































