Bildegalleri

Fredrik Hyldmo v/Nordvik Bolig har gleden av å presentere Tverrbakken 5!
Solgt
Torshov
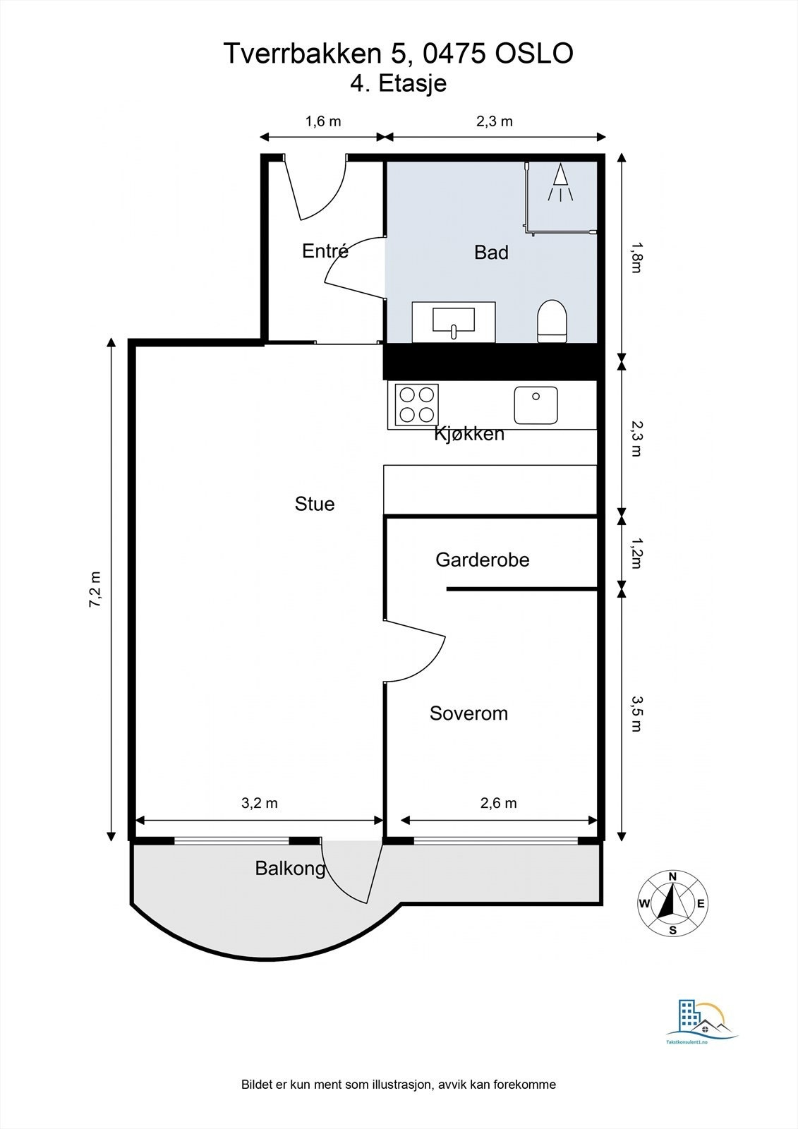
Lekker 2-roms leilighet med solrik balkong på 9 kvm | Totaloppusset 2015 | Heis | Garasjeleie*
Prisantydning4 940 000 kr
Nøkkelinfo
- Boligtype
- Leilighet
- Eieform
- Andel
- Soverom
- 1
- Internt bruksareal
- 51 m² (BRA-i)
- Bruksareal
- 54 m²
- Eksternt bruksareal
- 3 m² (BRA-e)
- Balkong/Terrasse
- 9 m² (TBA)
- Etasje
- 4
- Byggeår
- 1971
- Energimerking
- F - Rød
- Rom
- 2
- Tomteareal
- 3 960 m² (eiet)
Fasiliteter
Balkong/Terrasse
Bredbåndstilknytning
Garasje/P-plass
Heis
Kjæledyr tillatt
Sentralt
Utsikt
Lademulighet
Om boligen
Fredrik Hyldmo v/Nordvik Bolig har gleden av å presentere Tverrbakken 5! En lys og luftig 2-roms leilighet med stor og solrik balkong. Leiligheten ble totaloppusset i 2015 med nyere overflater på vegger og gulv, moderne kjøkken fra IKEA og totalrenovert bad. Borettslaget har flotte fasiliteter, som treningsrom, gjesteleilighet og garasje.
Kort fortalt:
Kort fortalt:
- Solrik og luftig balkong på ca. 9 kvm
- Totaloppusset 2015
- God planløsning med store vindusflater
- Romslig soverom med walk-in garderobe
- Heis
- Mulighet for garasjeleie*
- Treningsrom, gjesteparkering og gjesteleilighet i borettslaget
NB: Knappen for å vise hele beskrivelsen har kun en visuell effekt.
NB: Knappen for å vise hele beskrivelsen har kun en visuell effekt.
Salgsoppgaven beskriver vesentlig og lovpålagt informasjon om eiendommen
Se komplett salgsoppgaveNyttige lenker
Nærområdet
Nordvik Bislett
Annonseinformasjon
| FINN-kode | 388482793 |
|---|---|
| Sist endret | 24. jan. 2025 12:04 |
| Referanse | 36-0317/24 |
Annonsene kan være mangelfulle i forhold til lovpålagt opplysningsplikt. Før bindende avtale inngås oppfordres interessenter til å innhente komplett informasjon fra meglerforetaket, selger eller utleier.





























