Bildegalleri

HAMAR SENTRUM - Lekker og arealsmart 2-roms leilighet. Nytt bad i regi av borettslaget. Heis i bygget.
Nøkkelinfo
- Boligtype
- Leilighet
- Eieform
- Andel
- Soverom
- 1
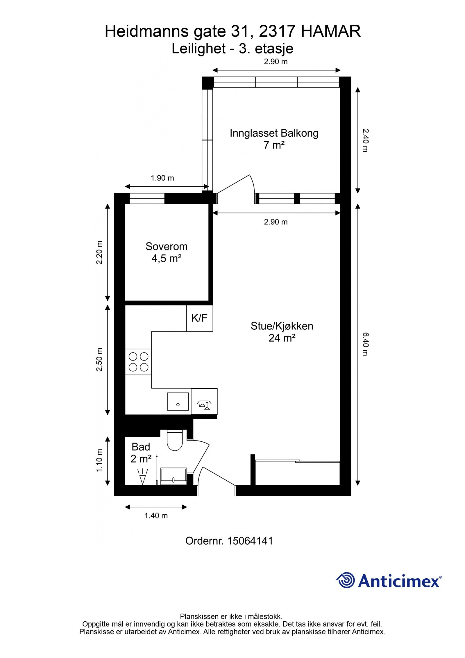
- Internt bruksareal
- 32 m² (BRA-i)
- Bruksareal
- 42 m²
- Eksternt bruksareal
- 2 m² (BRA-e)
- Innglasset balkong
- 8 m² (BRA-b)
- Byggeår
- 1960
- Energimerking
- D - Lysegrønn
- Tomteareal
- 2 966 m² (eiet)
Fasiliteter
Om boligen
EIE har gleden av å presentere denne lekre andelsleiligheten midt i Hamar sentrum.
Her bor du i gangavstand til byens fasiliteter med koselige kafeer, et godt utvalg av forretning og fine restauranter. Det er også kort veg til tur- og rekreasjonsmuligheter langs Mjøsa. Leiligheten ligger i byggets 3. etasje og er opprinnelig en 1-roms. Det er satt opp et lite soverom som gir en arealeffektiv og god planløsning. I tillegg til soverommet har leiligheten åpen kjøkkenløsning og stue med plass til sitte- og spisegruppe, bad og innglasset balkong. Leiligheten har en gjennomgående fin standard med lyse og tidsriktige overflater, kjøkken fra 2022 og nytt bad fra 2024 i regi av borettslaget. Denne leiligheten passer perfekt for deg som ønsker en sentrumsleilighet du kan flytte rett inn i.
Salgsoppgaven beskriver vesentlig og lovpålagt informasjon om eiendommen
Se komplett salgsoppgaveNærområdet
EIE eiendomsmegling Innlandet
Annonseinformasjon
| FINN-kode | 388229737 |
|---|---|
| Sist endret | 20. jan. 2025 10:59 |
| Referanse | 22240100 |
Annonsene kan være mangelfulle i forhold til lovpålagt opplysningsplikt. Før bindende avtale inngås oppfordres interessenter til å innhente komplett informasjon fra meglerforetaket, selger eller utleier.
































