Bildegalleri

Velkommen til denne flotte leiligheten med 4 soverom i Asbjørn Øverås veg 11F.
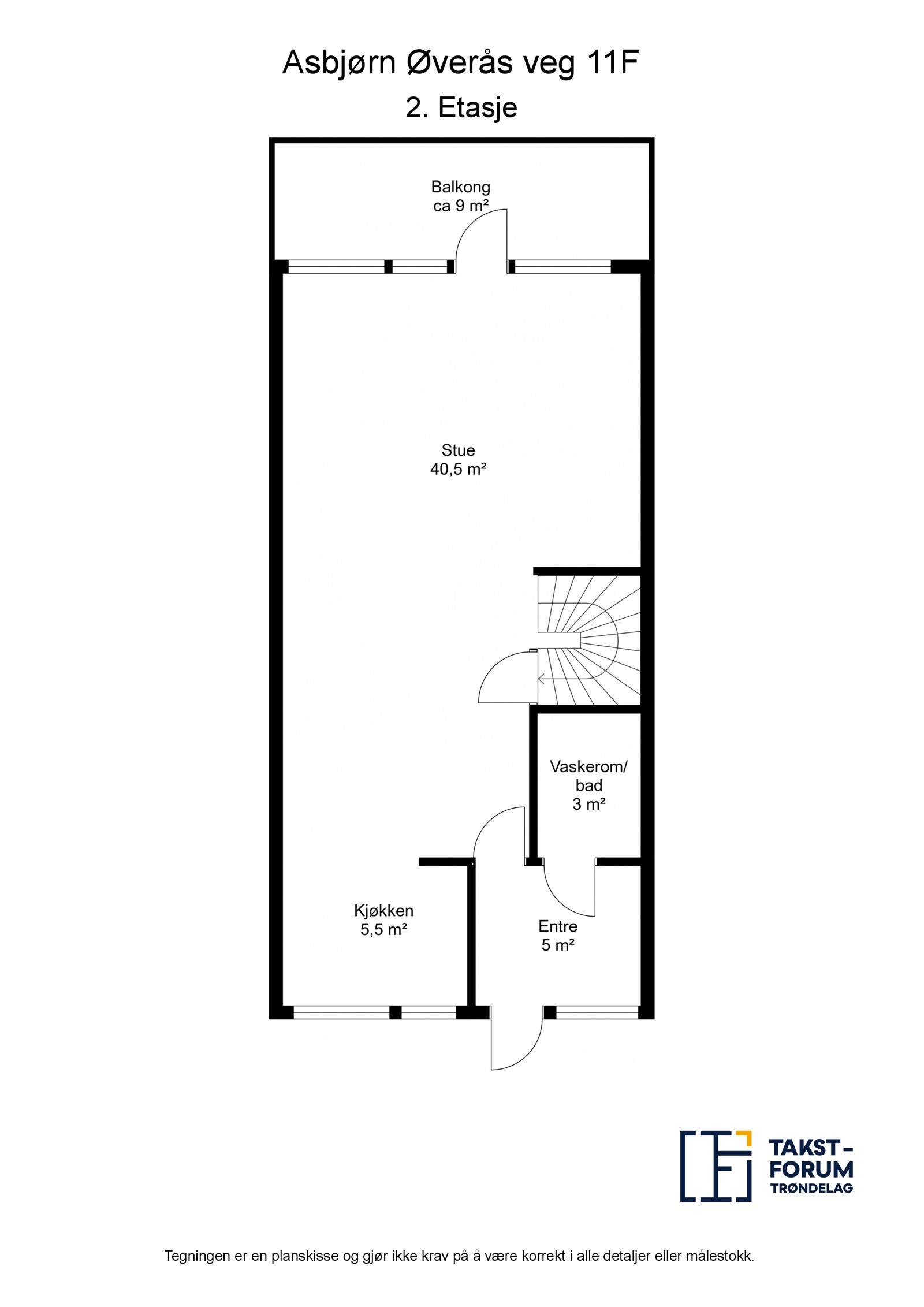
Familievennlig og svært delikat leilighet over 2 plan. 4 soverom & 2 bad. Nydelige utsiktsforhold. Lang solgang. Garasje
Nøkkelinfo
- Boligtype
- Leilighet
- Eieform
- Andel
- Soverom
- 4
- Internt bruksareal
- 110 m² (BRA-i)
- Bruksareal
- 123 m²
- Eksternt bruksareal
- 13 m² (BRA-e)
- Balkong/Terrasse
- 9 m² (TBA)
- Byggeår
- 1973
- Energimerking
- F - Mørkegrønn
- Rom
- 5
- Tomteareal
- 142 812 m² (eiet)
- Boligselgerforsikring
- Ja
Fasiliteter
Om boligen
Velkommen til en innholdsrik og svært delikat rekkehusleilighet med 4 soverom på Risvollan. Leiligheten strekker seg over 2 plan og har en meget god beliggenhet i feltet, grensende mot friareal. Svært familievennlig og tilbaketrukket beliggenhet med lekeplasser og ballbaner rett ved. Kort, bilfri og trygg gangvei til skoler, barnehager, idrettsanlegg, bussholdeplasser, butikk & Estenstadmarka.
Kvaliteter ved boligen:
- "Alt" inkludert i felleskostnadene
- Østvendt balkong med morgensol ved inngangspartiet
- Romslig vestvendt balkong med utgang fra stuen med ettermiddag/kveldssol og flott utsikt og utsyn mot grønne friarealer
- 4 soverom av god størrelse
- 2 flislagte bad med wc
- Egen p-plass i oppvarmet garasjeanlegg (mulighet for elbillader)
- Kjellerbod på 13 kvm
- Kort vei til det meste man trenger i hverdagen
Salgsoppgaven beskriver vesentlig og lovpålagt informasjon om eiendommen
Se komplett salgsoppgaveNyttige lenker
Nærområdet
Proaktiv Eiendomsmegling Trondheim Øst
Annonseinformasjon
| FINN-kode | 387917119 |
|---|---|
| Sist endret | 23. jan. 2025 11:39 |
| Referanse | 52240214 |
Annonsene kan være mangelfulle i forhold til lovpålagt opplysningsplikt. Før bindende avtale inngås oppfordres interessenter til å innhente komplett informasjon fra meglerforetaket, selger eller utleier.







































