Bildegalleri

Velkommen til Nedre Skøyen vei 6, presentert av Nicolay Ulvin ved EIE eiendomsmegling!
Lys og moderne med stor balkong | Sentralt og tilbaketrukket | Kort vei til alt | God standard | VV og fyring ink.
Nøkkelinfo
- Boligtype
- Leilighet
- Eieform
- Eier (Selveier)
- Internt bruksareal
- 34 m² (BRA-i)
- Bruksareal
- 39 m²
- Eksternt bruksareal
- 5 m² (BRA-e)
- Balkong/Terrasse
- 11 m² (TBA)
- Etasje
- 2
- Byggeår
- 2008
- Energimerking
- B - Rød
- Rom
- 1
- Tomteareal
- 13 949 m² (eiet)
Fasiliteter
Om boligen
Velkommen til Nedre Skøyen vei 6! Her får du en moderne leilighet beliggende i et sentralt, rolig & populært boligområde på Skøyen.
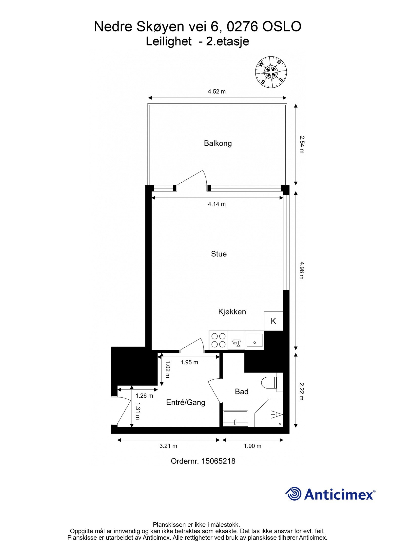
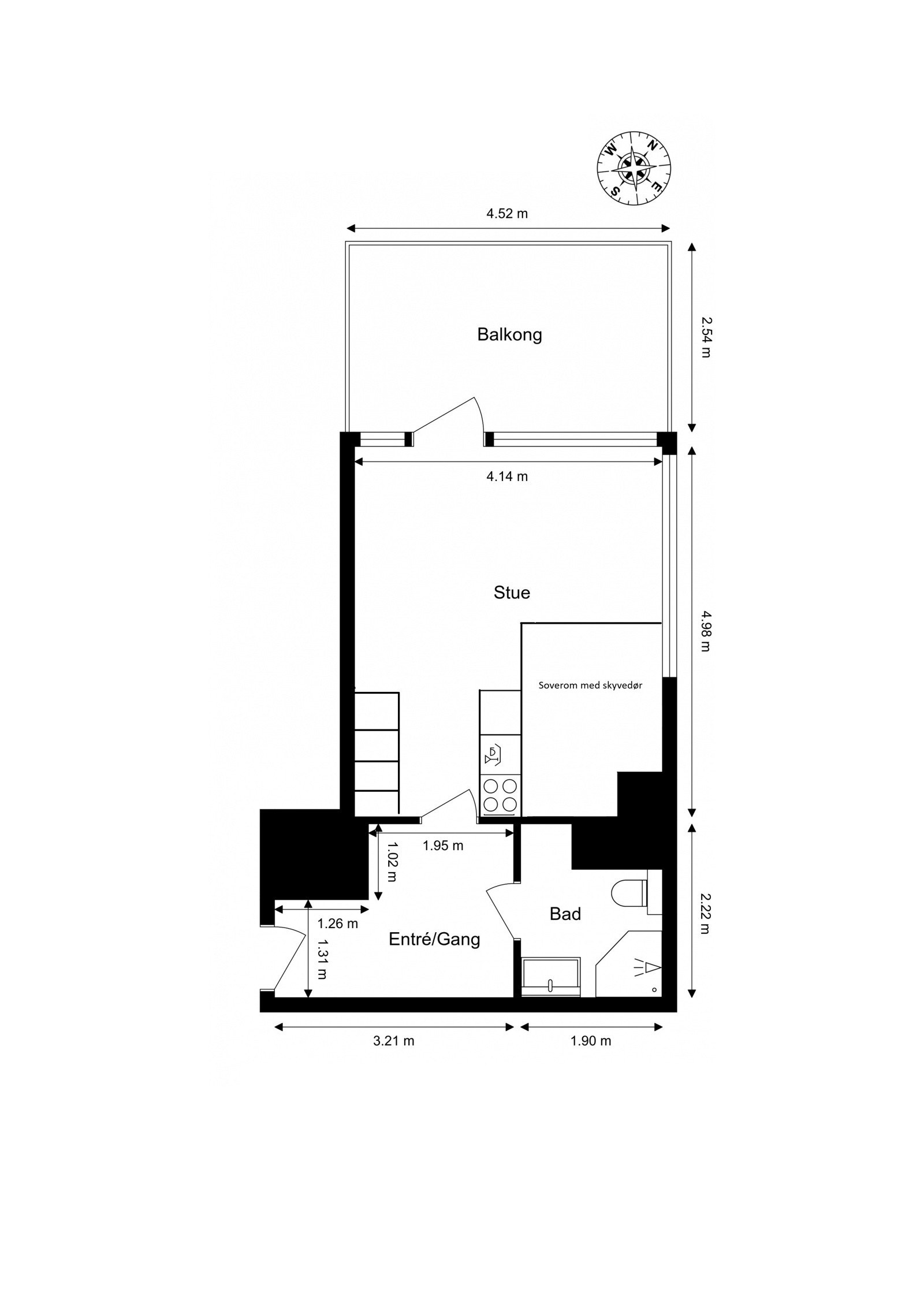
Leiligheten har en god planløsning bestående av entré, stue m/ åpen kjøkkenløsning og bad. Stuen fører ut til en stor, overbygget balkong på 11 kvm, og om sommeren får man et ekstra bruksareal i forlengelse av stue. Leiligheten er midt i blinken for deg som ønsker å bo sentralt, samt tilbaketrukket til m/ alle servicetilbud & kollektivtilbud i nærheten.
- Lys leilighet tilhørende et veldrevet sameie m parklignende fellesarealer
- Perfekt førstegangskjøp/student/pendlerleilighet
- Arealeffektiv planløsning m/ store vindusflater
- Stor balkong på 11 kvm
- God standard
- Bygg fra 2008
- Fyring & VV ink
- Balansert ventilasjon
- Kjellerbod
- Gangavstand til Skøyen Stasjon & alle servicetilbud
Salgsoppgaven beskriver vesentlig og lovpålagt informasjon om eiendommen
Se komplett salgsoppgaveNærområdet
EIE eiendomsmegling Røa, Skøyen og Ullern
Annonseinformasjon
| FINN-kode | 387795953 |
|---|---|
| Sist endret | 14. feb. 2025 17:19 |
| Referanse | 51240080 |
Annonsene kan være mangelfulle i forhold til lovpålagt opplysningsplikt. Før bindende avtale inngås oppfordres interessenter til å innhente komplett informasjon fra meglerforetaket, selger eller utleier.






















