Bildegalleri
Inngang
Solgt
Vannavalen
Ny prisantydning - Enebolig/Fritidsbolig med alt på ett plan
Prisantydning950 000 kr
Pris på lån: fra 4 159 kr/mnd
Eff.rente 5,84 %. 665 000 o/25 år. Kostnad: 582 700 kr. Totalt 1 247 700 kr.
LånekalkulatorNøkkelinfo
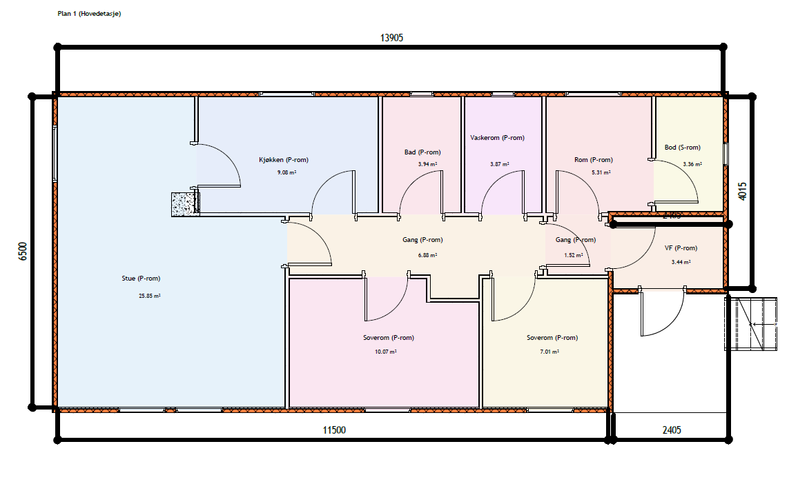
- Boligtype
- Enebolig
- Eieform
- Eier (Selveier)
- Soverom
- 2
- Primærrom
- 80 m²
- Bruksareal
- 86 m²
- Etasje
- 1
- Byggeår
- 1976
- Energimerking
- F
- Tomteareal
- 16 914 m² (eiet)
Fasiliteter
Barnevennlig
Offentlig vann/kloakk
Peis/Ildsted
Rolig
Utsikt
Fiskemulighet
Strandlinje
Turterreng
Beskrivelse
Eneboligen ligger fint til i Vannavalen, et steinkast fra havet og med nærhet til vill og spektakulær natur. Her er det utsikt mot Nord Fugløy, Arnøy, Lyngsalpene og deler av Lyngen. Boligen ligger sørvendt og det er derfor svært gode lys‑ og solforhold her. På den sør/ vest‑vendte platten kan solrike dager nytes. Det er enkel adkomst opp til turterreng med muligheter for rekreasjon og opplevelser, bærplukking, jakt og fiske. Det er ca. 14 km til Vannvåg med butikk, skole og barnehage, og ca. 20 km til Skåningsbukt fergeleie.
Adkomst
Enkel adkomst fra fylkesvei.
Beskaffenhet
Stor tomt, med strandlinje og plass for båtoppsett. (Naust tilhører ikke eiendommen).
Egnet for fradeling av nye tomter på eiendommen som består av i alt fem teiger, to av disse på oversiden av veien. Huset står på hoveddelen, den største delen, og strekker seg fra fylkesveien og ned til fjæra. Her er også kjørbar vei helt ned.
Egnet for fradeling av nye tomter på eiendommen som består av i alt fem teiger, to av disse på oversiden av veien. Huset står på hoveddelen, den største delen, og strekker seg fra fylkesveien og ned til fjæra. Her er også kjørbar vei helt ned.
NB: Knappen for å vise hele beskrivelsen har kun en visuell effekt.
NB: Knappen for å vise hele beskrivelsen har kun en visuell effekt.
Salgsoppgaven beskriver vesentlig og lovpålagt informasjon om eiendommen
Se komplett salgsoppgaveNyttige lenker
Nærområdet
Annonsene kan være mangelfulle i forhold til lovpålagt opplysningsplikt. Før bindende avtale inngås oppfordres interessenter til å innhente komplett informasjon fra meglerforetaket, selger eller utleier.




















