Bildegalleri

Attraktiv beliggenhet som hjørneleilighet i 3. etasje, med gode solforhold også i vinterhalvåret. Veranda mot vest.
Solgt
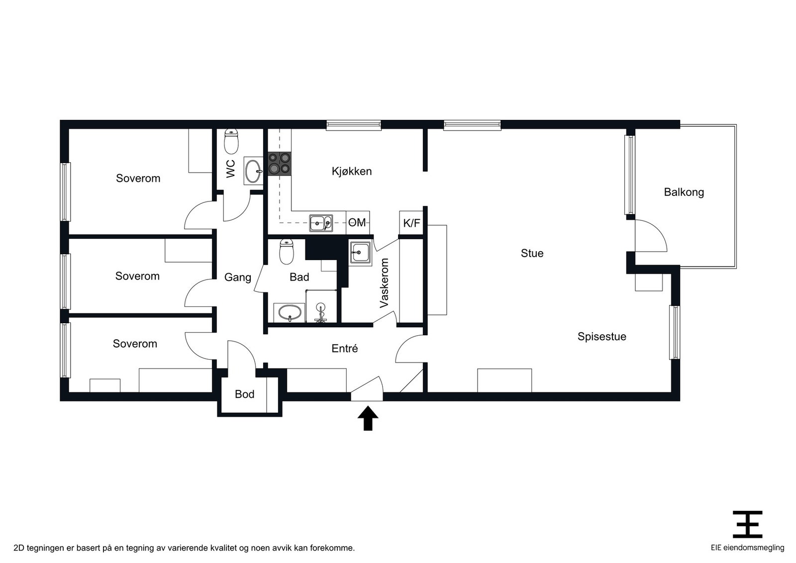
Hjørneleilighet med veranda, garasje, 3 soverom og ingen dok avgift
Prisantydning2 900 000 kr
Nøkkelinfo
- Boligtype
- Leilighet
- Eieform
- Andel
- Soverom
- 3
- Internt bruksareal
- 99 m² (BRA-i)
- Bruksareal
- 105 m²
- Eksternt bruksareal
- 6 m² (BRA-e)
- Balkong/Terrasse
- 8 m² (TBA)
- Etasje
- 3
- Byggeår
- 1981
- Energimerking
- F - Rød
- Rom
- 4
- Tomteareal
- 53 600 m² (eiet)
Fasiliteter
Barnevennlig
Balkong/Terrasse
Garasje/P-plass
Offentlig vann/kloakk
Parkett
Turterreng
Utsikt
Vaktmester-/vektertjeneste
Sentralt
Rolig
Om boligen
Leiligheten ligger i blokkens 3.dje etasje og har god utsikt og gode solforhold. Veranda mot vest, sør/vest.
Det medfølger hele 3 lagrings boder i underetasjen, og blokkens underetasje har oppvarming via varmepumper
Garasje medfølger også.
Borettslaget er veldrevet og her har man gåavstand til alle fasiliteter på Moa.
Om ønskelig kan leiligheten ha snarlig overtakelse.
Det medfølger hele 3 lagrings boder i underetasjen, og blokkens underetasje har oppvarming via varmepumper
Garasje medfølger også.
Borettslaget er veldrevet og her har man gåavstand til alle fasiliteter på Moa.
Om ønskelig kan leiligheten ha snarlig overtakelse.
NB: Knappen for å vise hele beskrivelsen har kun en visuell effekt.
NB: Knappen for å vise hele beskrivelsen har kun en visuell effekt.
Salgsoppgaven beskriver vesentlig og lovpålagt informasjon om eiendommen
Se komplett salgsoppgaveNyttige lenker
Nærområdet
EIE Eiendomsmegling Ålesund
Annonseinformasjon
| FINN-kode | 387116837 |
|---|---|
| Sist endret | 07. feb. 2025 10:27 |
| Referanse | 17240216 |
Annonsene kan være mangelfulle i forhold til lovpålagt opplysningsplikt. Før bindende avtale inngås oppfordres interessenter til å innhente komplett informasjon fra meglerforetaket, selger eller utleier.




























