Bildegalleri

EIE eiendomsmegling ved Daniel Lanto har gleden av å presentere Starrmyra 40!
Solgt
TILLER
Delikat og betydelig oppgradert 5-roms rekkehus. Parkering i garasje m/lader. Norema-kjøkken fra 2022. Vedfyring.
Prisantydning4 290 000 kr
Nøkkelinfo
- Boligtype
- Rekkehus
- Eieform
- Andel
- Soverom
- 4
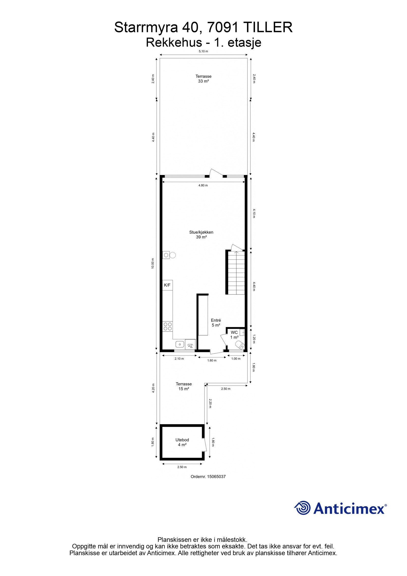
- Internt bruksareal
- 145 m² (BRA-i)
- Bruksareal
- 149 m²
- Eksternt bruksareal
- 4 m² (BRA-e)
- Balkong/Terrasse
- 48 m² (TBA)
- Etasje
- 1
- Byggeår
- 1983
- Energimerking
- E - Gul
- Tomt
- Eiet
Fasiliteter
Balkong/Terrasse
Peis/Ildsted
Barnevennlig
Rolig
Moderne
Sentralt
Garasje/P-plass
Offentlig vann/kloakk
Lademulighet
Om boligen
EIE eiendomsmegling ved Daniel Lanto har gleden av å presentere Starrmyra 40! Nå har du muligheten til å skaffe deg et moderne innredet rekkehus sentralt på Tiller. Boligen går over tre plan, og det medfølger garasje med elbillader og ekstern ytterbod.
Merk deg dette ved boligen:
- Moderne og tidsriktig innredet rekkehus i populært område.
- Kjøkkeninnredning fra Norema installert i 2022.
- Slette vegger i flotte farger, og spilevegg i stue.
- Fire romslige soverom, alle på et plan.
- Fult utstyrt bad og ekstra toalettrom.
- Vaskerom i kjeller.
- Herlig markterrasse med flotte utsiktsforhold.
- Nærhet til Tiller sentrum, skoler og marka.
Velkommen til visning!
NB: Knappen for å vise hele beskrivelsen har kun en visuell effekt.
NB: Knappen for å vise hele beskrivelsen har kun en visuell effekt.
Salgsoppgaven beskriver vesentlig og lovpålagt informasjon om eiendommen
Se komplett salgsoppgaveNærområdet
EIE eiendomsmegling Trondheim sentrum
Annonseinformasjon
| FINN-kode | 386432186 |
|---|---|
| Sist endret | 18. jan. 2025 11:24 |
| Referanse | 133240274 |
Annonsene kan være mangelfulle i forhold til lovpålagt opplysningsplikt. Før bindende avtale inngås oppfordres interessenter til å innhente komplett informasjon fra meglerforetaket, selger eller utleier.


































