Bildegalleri

- Har du noen spørsmål? Kontakt Christoffer Edstrøm Jacobsen - (t): 469 09 717 - Nordvik eiendomsmegling -
Solgt
Rodeløkka / Grünerløkka
Unik New York-style 3-roms - 4,12 m takhøyde - IN-ordning - VarmtV. / Fyring inkl. - Mulighet for parkering - Rolig
Prisantydning5 800 000 kr
Nøkkelinfo
- Boligtype
- Leilighet
- Eieform
- Andel
- Soverom
- 2
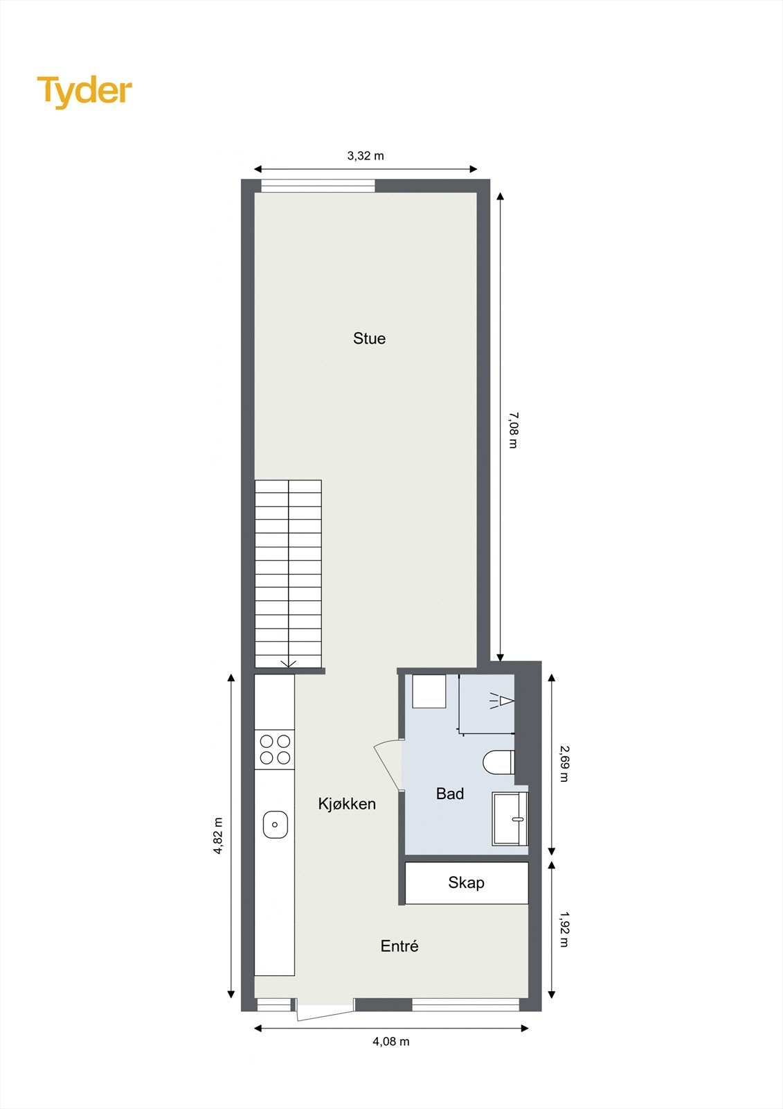
- Internt bruksareal
- 64 m² (BRA-i)
- Bruksareal
- 73 m²
- Eksternt bruksareal
- 9 m² (BRA-e)
- Etasje
- 4
- Byggeår
- 1891
- Energimerking
- D - Mørkegrønn
- Rom
- 3
- Tomteareal
- 549 m² (eiet)
Fasiliteter
Takterrasse
Barnevennlig
Bredbåndstilknytning
Garasje/P-plass
Heis
Kjæledyr tillatt
Kabel-TV
Offentlig vann/kloakk
Parkett
Rolig
Sentralt
Utsikt
Vaktmester-/vektertjeneste
Turterreng
Lademulighet
Om boligen
Christoffer Edstrøm Jacobsen fra Nordvik eiendomsmegling har gleden av å presentere denne unike New York-style leilighet beliggende sentralt og rolig til på Grünerløkka. Her flytter du til et veldrevet borettslag i en rehabilitert fabrikkbygning som sto ferdig i 2005. Innvendig oppleves boligen velholdt og innflytningsklar.
IN-ordning: om fellesgjelden innfris reduseres felleskostnadene til kr. 5.095,-
IN-ordning: om fellesgjelden innfris reduseres felleskostnadene til kr. 5.095,-
- Blant annet varmtvann, oppvarming, Internett og TV inkl.
- Mulighet for kjøp av stor garasjeplass med EL-bil lader
- Gjennomgående og godt utnyttet planløsning
- Solrik felles takterrasse med fantastisk utsikt
- Ingen dokumentavgift eller forkjøpsrett
- Takhøyde i stue på hele 4,12 meter
- Disponerer en kjellerbod på 9 m²
- Delvis egen uteplass
- Heis
NB: Knappen for å vise hele beskrivelsen har kun en visuell effekt.
NB: Knappen for å vise hele beskrivelsen har kun en visuell effekt.
Salgsoppgaven beskriver vesentlig og lovpålagt informasjon om eiendommen
Se komplett salgsoppgaveNyttige lenker
Nærområdet
Nordvik Bygdøy Allé
Annonseinformasjon
| FINN-kode | 385744137 |
|---|---|
| Sist endret | 25. mars 2025 10:20 |
| Referanse | 13-0505/24 |
Annonsene kan være mangelfulle i forhold til lovpålagt opplysningsplikt. Før bindende avtale inngås oppfordres interessenter til å innhente komplett informasjon fra meglerforetaket, selger eller utleier.


































