Bildegalleri

Flott, innholdsrik familiebolig over 4 plan. Attraktiv beliggenhet i svært barnevennlige omgivelser.
NYHET! FLOTT, INNHOLDSRIK FAMILIEBOLIG. 4 soverom. 2 bad. Loft- og kjellerstue. Takterrasse. Flere uteområder. P-plass.
Nøkkelinfo
- Boligtype
- Rekkehus
- Eieform
- Andel
- Soverom
- 4
- Internt bruksareal
- 143 m² (BRA-i)
- Bruksareal
- 145 m²
- Eksternt bruksareal
- 2 m² (BRA-e)
- Balkong/Terrasse
- 54 m² (TBA)
- Byggeår
- 2007
- Energimerking
- D - Mørkegrønn
- Tomteareal
- 4 214 m² (eiet)
Fasiliteter
Om boligen
- Boligen har en av de bedre beliggenhetene i området
- Ligger åpent og fint til, i trygge og barnevennlige omgivelser
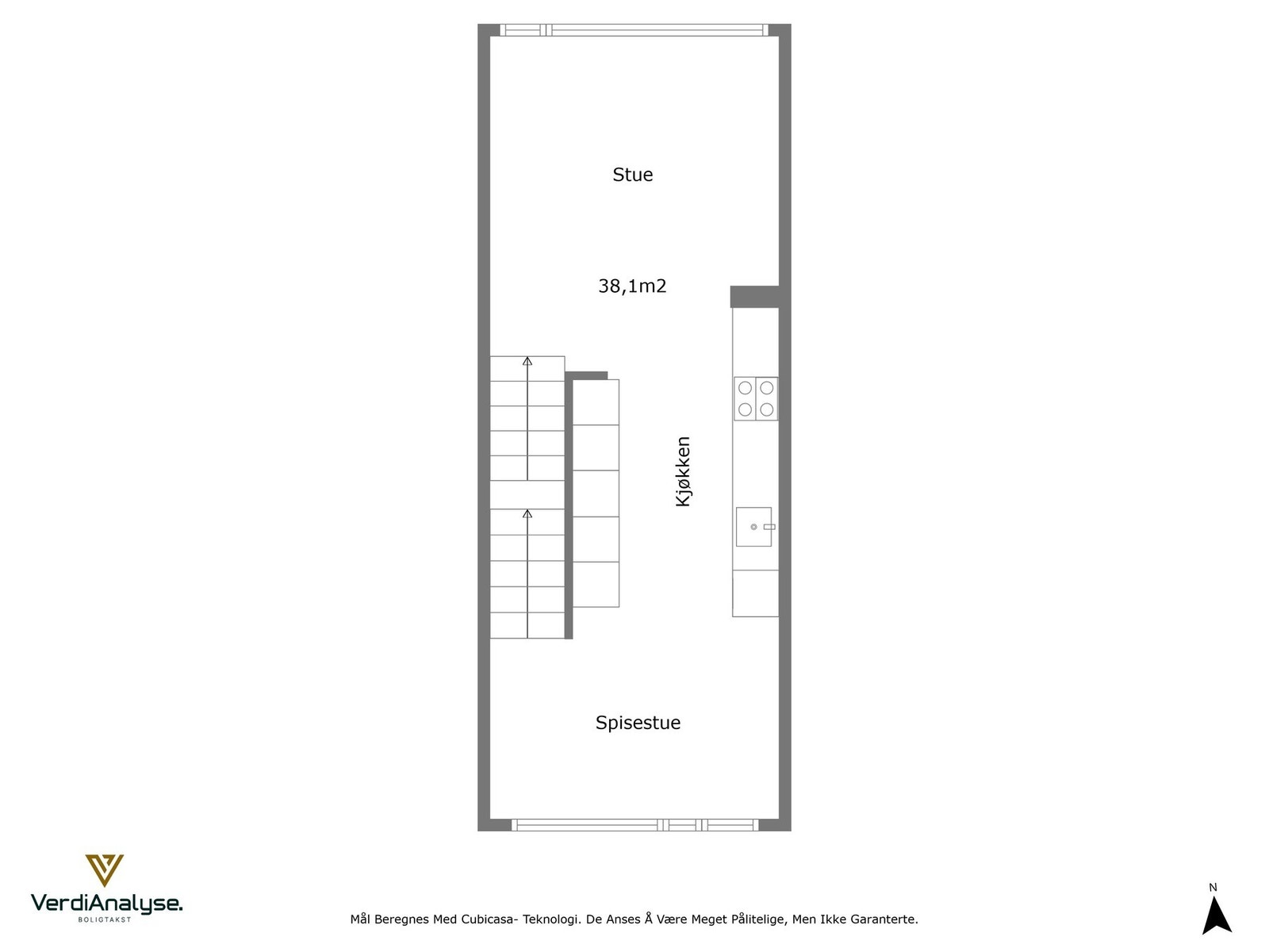
- Fantastisk stue- og kjøkkenløsning, med masse lys og luft
- Plass til stor spisestue. Naturlig samlingspunkt i boligen
- Hvitt, stilrent og moderne kjøkken. Integrerte hvitevarer (TG1)
- God komfort med fjernvarme
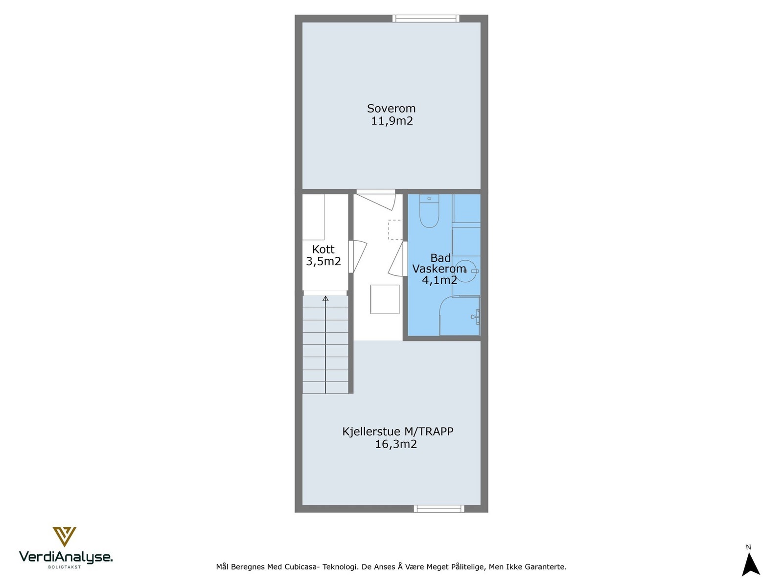
- Egen loftstue på 19,4 kvm. Egen kjellerstue på 16,3 kvm. Perfekt for en barnefamilie
- Boligen har 4 store soverom på 12,9 kvm, 11,9 kvm, 9,9 kvm og 6,3 kvm
- Delikat flislagt bad i 1.etasje. Pent bad- og vaskerom i kjeller. (TG1)
- Fantastisk takterrasse på 39,3 kvm. Solrikt, med fin utsikt
- Koselig terrasse ved inngangsparti. Utgang til hage på baksiden
- Medfølger fast parkeringsplass. Gjesteparkering i området
- Nærhet til barnehage, skole, Utleirahallen og helårs turløyper i Estenstadmarka
Salgsoppgaven beskriver vesentlig og lovpålagt informasjon om eiendommen
Se komplett salgsoppgaveNyttige lenker
Nærområdet
EiendomsMegler 1 Valentinlyst
Prisstatistikk
Lillian Byes veg 119
på annonsen
prisantydning per kvadratmeter
Prisfordeling
Pris per m² ligger 8 308 kr under snittet for rekkehus i Trondheim Øst.
Grafen viser antall rekkehus solgt i Trondheim Øst siste året fordelt på pris per m² - totalt 193 rekkehus
Antall boliger
Kvadratmeterpris tilsvarer prisantydning pluss fellesgjeld per kvadratmeter (p-rom eller BRA-i). Prisene i grafen er avrundet til nærmeste 1000 kr.
Annonseinformasjon
| FINN-kode | 385523267 |
|---|---|
| Sist endret | 14. nov. 2025 14:03 |
| Referanse | 34240330 |
Annonsene kan være mangelfulle i forhold til lovpålagt opplysningsplikt. Før bindende avtale inngås oppfordres interessenter til å innhente komplett informasjon fra meglerforetaket, selger eller utleier.












































