Bildegalleri

EIE eiendomsmegling v/Runar Bjørkelund presenterer Halvdans gate 7G
4-roms selveier i sentrum | Høy standard fra 2007 | Egen takterrasse med panoramautsikt | Ingen fellesgjeld | Carport
Prisantydning5 200 000 kr
Nøkkelinfo
- Boligtype
- Leilighet
- Eieform
- Eier (Selveier)
- Soverom
- 3
- Internt bruksareal
- 112 m² (BRA-i)
- Bruksareal
- 124 m²
- Eksternt bruksareal
- 12 m² (BRA-e)
- Balkong/Terrasse
- 35 m² (TBA)
- Byggeår
- 1957
- Energimerking
- D - Gul
- Rom
- 4
- Tomteareal
- 1 008 m² (eiet)
Fasiliteter
Barnevennlig
Balkong/Terrasse
Garasje/P-plass
Kabel-TV
Offentlig vann/kloakk
Parkett
Peis/Ildsted
Turterreng
Utsikt
Aircondition
Sentralt
Bredbåndstilknytning
Moderne
Om boligen
EIE eiendomsmegling v/Runar Bjørkelund har gleden av å presentere Halvdans gate 7G, en strøken selveierleilighet i sentrum av Harstad, med hele tre soverom og egen takterrasse med panoramautsikt. Her ligger alt til rette for en praktisk og enkel hverdag, med alt du trenger i umiddelbar nærhet!
- Strøken 4-roms selveierleilighet i Harstad sentrum
- Høy standard fra byggeår 2007 - flytt rett inn uten bekymringer!
- Din helt egen takterrasse med panoramautsikt
- Null fellesgjeld
- Carport og to fine boder
- Oppvarming med varmepumpe og peisovn
- Praktisk og enkel hverdag med nærhet til alt
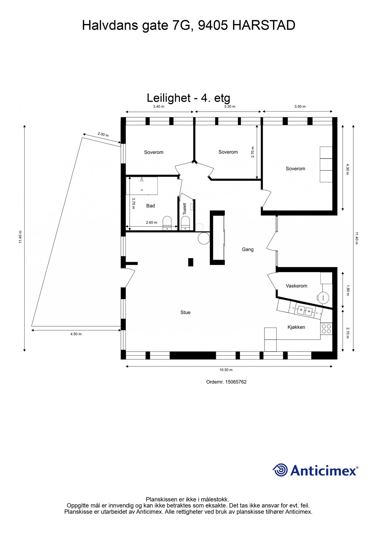
Leiligheten inneholder gang, stue, kjøkken, bad, vaskerom, toalettrom og tre soverom. I tillegg er det boder i etasjen under.
Velkommen til en hyggelig visning!
NB: Knappen for å vise hele beskrivelsen har kun en visuell effekt.
NB: Knappen for å vise hele beskrivelsen har kun en visuell effekt.
Salgsoppgaven beskriver vesentlig og lovpålagt informasjon om eiendommen
Se komplett salgsoppgaveNyttige lenker
Nærområdet
EIE eiendomsmegling Harstad
Annonsene kan være mangelfulle i forhold til lovpålagt opplysningsplikt. Før bindende avtale inngås oppfordres interessenter til å innhente komplett informasjon fra meglerforetaket, selger eller utleier.












































