Bildegalleri

Christian Halvorsen v/ EIE eiendomsmegling har gleden av å presentere Bjørndalsveien 63!
Solgt
Rasta
Moderne enebolig med høy standard fra 2017 | Utleiedel med solid leieinntekt | To garasjer | 119 m² takterrasse |
Prisantydning12 490 000 kr
Nøkkelinfo
- Boligtype
- Enebolig
- Eieform
- Eier (Selveier)
- Soverom
- 4
- Internt bruksareal
- 249 m² (BRA-i)
- Bruksareal
- 279 m²
- Eksternt bruksareal
- 16 m² (BRA-e)
- Innglasset balkong
- 14 m² (BRA-b)
- Balkong/Terrasse
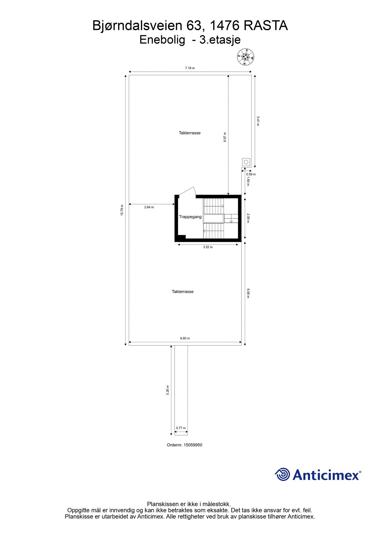
- 119 m² (TBA)
- Etasje
- 4
- Byggeår
- 2017
- Energimerking
- B - Oransje
- Rom
- 5
- Tomteareal
- 646 m² (eiet)
Fasiliteter
Barnevennlig
Balkong/Terrasse
Garasje/P-plass
Offentlig vann/kloakk
Ingen gjenboere
Turterreng
Sentralt
Moderne
Rolig
Lademulighet
Balansert ventilasjon
Om boligen
Christian Halvorsen v/ EIE eiendomsmegling har gleden av å presentere Bjørndalsveien 63! - En lekker, tiltalende enebolig med landlig og attraktiv beliggenhet. Fra boligen er det umiddelbar nærhet til buss og kort vei til sentrum av Lørenskog. Boligen er fra 2017 og holder høy standard med pene overflater og moderne inventar. Planløsningen går over tre plan i tillegg til en 119 kvm takterrasse! Det er parkering i to garasjer, hvor den ene har lader for el-bil. Videre er det en separat utleiedel over to plan med egen inngang. Her kan man flytte rett inn!
Høydepunkter:
- Det perfekte familiehjemmet
- Høy standard fra 2017
- Mulighet for et 5. soverom
- Separat utleiedel over to plan
- To garasjer
- To elbilladere
- Planløsning over 3 plan
- Fantastisk sydvendt takterrasse på hele 119 kvm
- Landlig og attraktiv beliggenhet!
Høydepunkter:
- Det perfekte familiehjemmet
- Høy standard fra 2017
- Mulighet for et 5. soverom
- Separat utleiedel over to plan
- To garasjer
- To elbilladere
- Planløsning over 3 plan
- Fantastisk sydvendt takterrasse på hele 119 kvm
- Landlig og attraktiv beliggenhet!
NB: Knappen for å vise hele beskrivelsen har kun en visuell effekt.
NB: Knappen for å vise hele beskrivelsen har kun en visuell effekt.
Salgsoppgaven beskriver vesentlig og lovpålagt informasjon om eiendommen
Se komplett salgsoppgaveNyttige lenker
Nærområdet
EIE eiendomsmegling Lørenskog
Annonseinformasjon
| FINN-kode | 385404046 |
|---|---|
| Sist endret | 06. feb. 2026 09:59 |
| Referanse | 32240352 |
Annonsene kan være mangelfulle i forhold til lovpålagt opplysningsplikt. Før bindende avtale inngås oppfordres interessenter til å innhente komplett informasjon fra meglerforetaket, selger eller utleier.






















































