Bildegalleri

Velkommen til Kristine Bonnevies vei 13, presentert av Thomas Ringsvold ved Nordvik Bygdøy Allè
Solgt
Markanært på Tonsenhagen
Lys og moderne leilighet med vestvendt balkong på 12 kvm - Umiddelbar nærhet til marka - Utsikt - Oppusset i 2016/2017
Prisantydning4 500 000 kr
Nøkkelinfo
- Boligtype
- Leilighet
- Eieform
- Eier (Selveier)
- Soverom
- 1
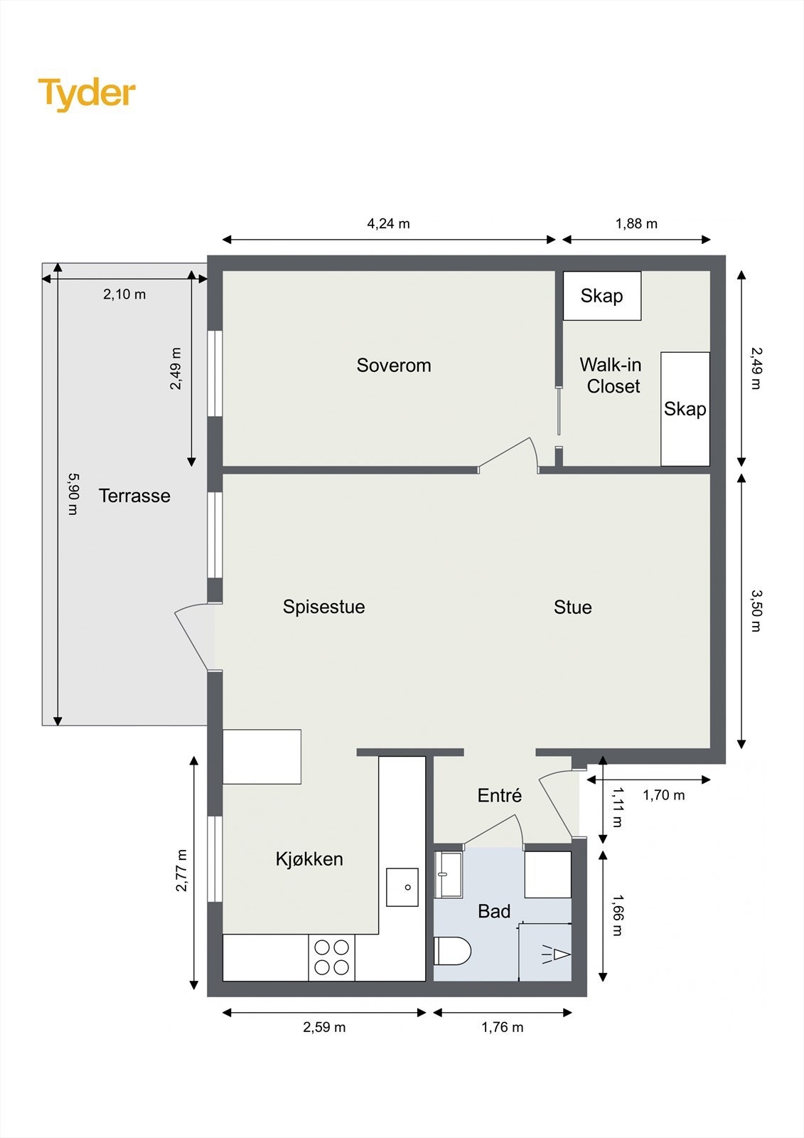
- Internt bruksareal
- 52 m² (BRA-i)
- Bruksareal
- 56 m²
- Eksternt bruksareal
- 4 m² (BRA-e)
- Balkong/Terrasse
- 12 m² (TBA)
- Etasje
- 2
- Byggeår
- 1964
- Energimerking
- E - Rød
- Rom
- 2
- Tomteareal
- 22 498 m² (eiet)
Fasiliteter
Alpinanlegg
Balkong/Terrasse
Bredbåndstilknytning
Kjæledyr tillatt
Ingen gjenboere
Rolig
Utsikt
Vaktmester-/vektertjeneste
Turterreng
Lademulighet
Om boligen
Velkommen til Kristine Bonnevies vei 13 - En pen, romslige og moderne leilighet i 2. etasje. Fra leiligheten er det umiddelbar nærhet til marka med både turstier, sykkelstier og skiløyper. Leilighetene ligger høyt i terrenget og har god utsikt over Oslo. Boligen ble pusset opp i 2016/2017 med blant annet nytt bad, kjøkken og nye overflater.
- Lagringsmuligheter i medfølgende kjellerbod på 4,3 kvm
- Kjøkken fra 2016 med integrerte hvitevarer og kjøkkenøy
- Baderom fra 2017 med opplegg for vaskemaskin
- Boligen ligger innenfor bilfritt området i sameiet
- Trafikkstille og rolig nabolag med lite støy
- Vestvendt balkong med gode solforhold
- Gode p-muligheter, også lademulighet
- Romslig soverom med walk in closet
- Plassbygd sittebenk ved spisebordet
- Felles bod for sykler/vogner
- Lagringsmuligheter i medfølgende kjellerbod på 4,3 kvm
- Kjøkken fra 2016 med integrerte hvitevarer og kjøkkenøy
- Baderom fra 2017 med opplegg for vaskemaskin
- Boligen ligger innenfor bilfritt området i sameiet
- Trafikkstille og rolig nabolag med lite støy
- Vestvendt balkong med gode solforhold
- Gode p-muligheter, også lademulighet
- Romslig soverom med walk in closet
- Plassbygd sittebenk ved spisebordet
- Felles bod for sykler/vogner
NB: Knappen for å vise hele beskrivelsen har kun en visuell effekt.
NB: Knappen for å vise hele beskrivelsen har kun en visuell effekt.
Salgsoppgaven beskriver vesentlig og lovpålagt informasjon om eiendommen
Se komplett salgsoppgaveNyttige lenker
Nærområdet
Nordvik Bygdøy Allé
Annonseinformasjon
| FINN-kode | 385022948 |
|---|---|
| Sist endret | 28. mars 2025 14:39 |
| Referanse | 13-0542/24 |
Annonsene kan være mangelfulle i forhold til lovpålagt opplysningsplikt. Før bindende avtale inngås oppfordres interessenter til å innhente komplett informasjon fra meglerforetaket, selger eller utleier.









































