Bildegalleri

Stua får mye naturlig lys fra store vindusflater
Stor 3-roms leilighet rett ved bryggekanten i Stavern sentrum - 2 garasjeplasser i garasjeanlegg under bygget
Nøkkelinfo
- Boligtype
- Tomannsbolig
- Eieform
- Andel
- Soverom
- 2
- Internt bruksareal
- 125 m² (BRA-i)
- Bruksareal
- 134 m²
- Eksternt bruksareal
- 9 m² (BRA-e)
- Balkong/Terrasse
- 26 m² (TBA)
- Etasje
- 2
- Byggeår
- 2022
- Energimerking
- B - Rød
- Tomteareal
- 1 377 m² (eiet)
Fasiliteter
Visning
Om boligen
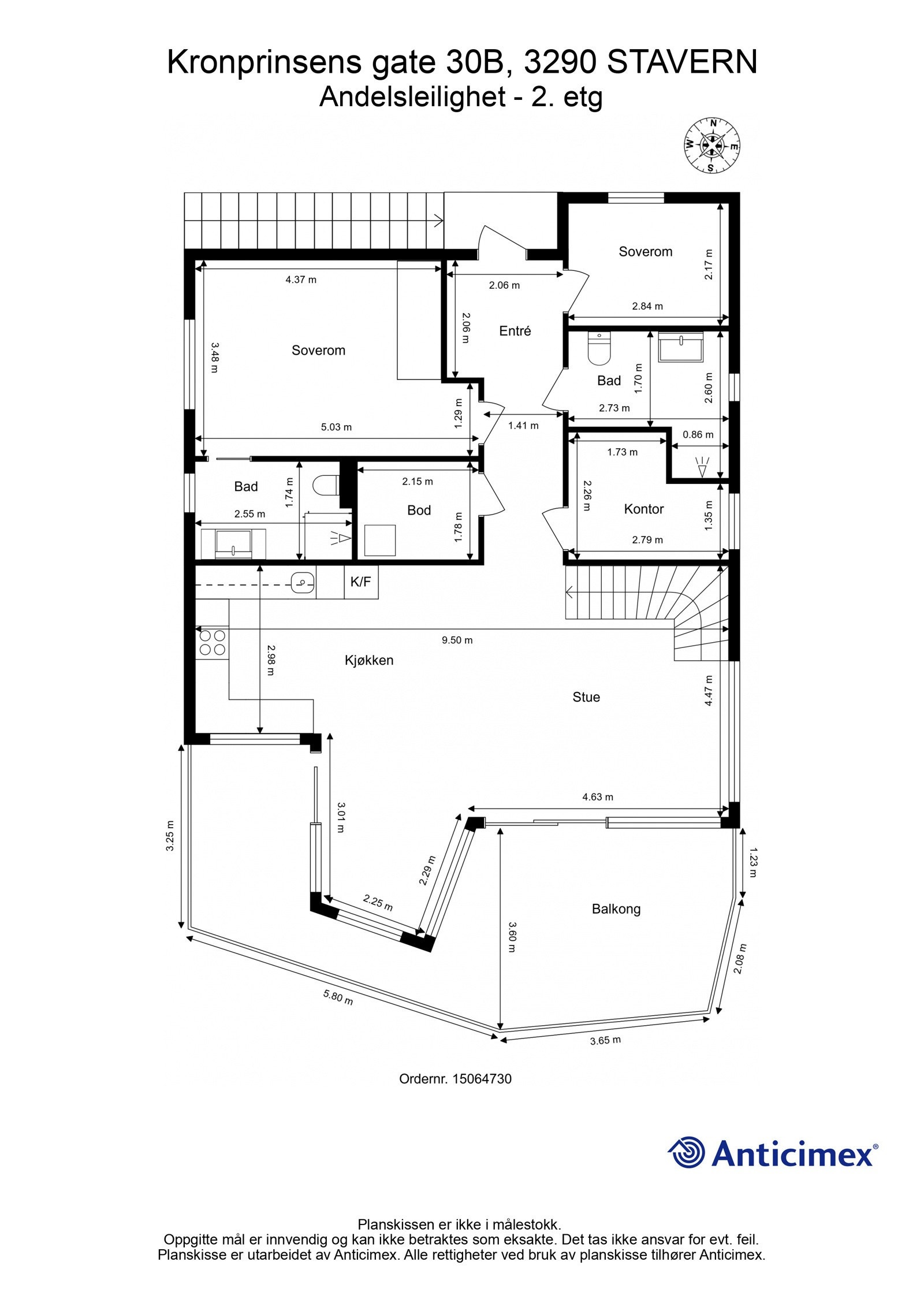
Nyere leilighet (2022) med sentral beliggenhet ved sjektekanalen i Staven sentrum. Leiligheten ligger i 2. etg i en frittliggende tomannsbolig med nydelig sjøutsikt og gode solforhold på terrassen mot syd-vest.
Leiligheten inneholder gang, 2 soverom, 2 bad, bod/teknisk rom, kontor, samt kjøkken og stue i åpen løsning med utgang til terrasse. Fra stua er det trapp opp til en loftstue. Leiligheten har i tillegg 2 tilhørende garasjeplasser og 1 bod i parkeringskjelleren under bygget.
Leiligheten har vannbåren gulvvarme, balansert ventilasjonsanlegg med varmegjenvinning, samt god planløsning og ekstra god takhøyde i stue/kjøkken.
Her bor du med umiddelbar nærhet til dagligvarebutikk og Stavern sentrum med restauranter, kafeer og butikker. Nærområdet byr også på sjø, strender og flotte turområder.
Salgsoppgaven beskriver vesentlig og lovpålagt informasjon om eiendommen
Se komplett salgsoppgaveNyttige lenker
Nærområdet
Leinæs & Partners
Annonseinformasjon
| FINN-kode | 384876684 |
|---|---|
| Sist endret | 13. nov. 2025 03:20 |
| Referanse | 22240172 |
Annonsene kan være mangelfulle i forhold til lovpålagt opplysningsplikt. Før bindende avtale inngås oppfordres interessenter til å innhente komplett informasjon fra meglerforetaket, selger eller utleier.



















































