Bildegalleri

EIE eiendomsmegling ved Yasin Unal har gleden av å presentere Casper Lundes veg 6A.
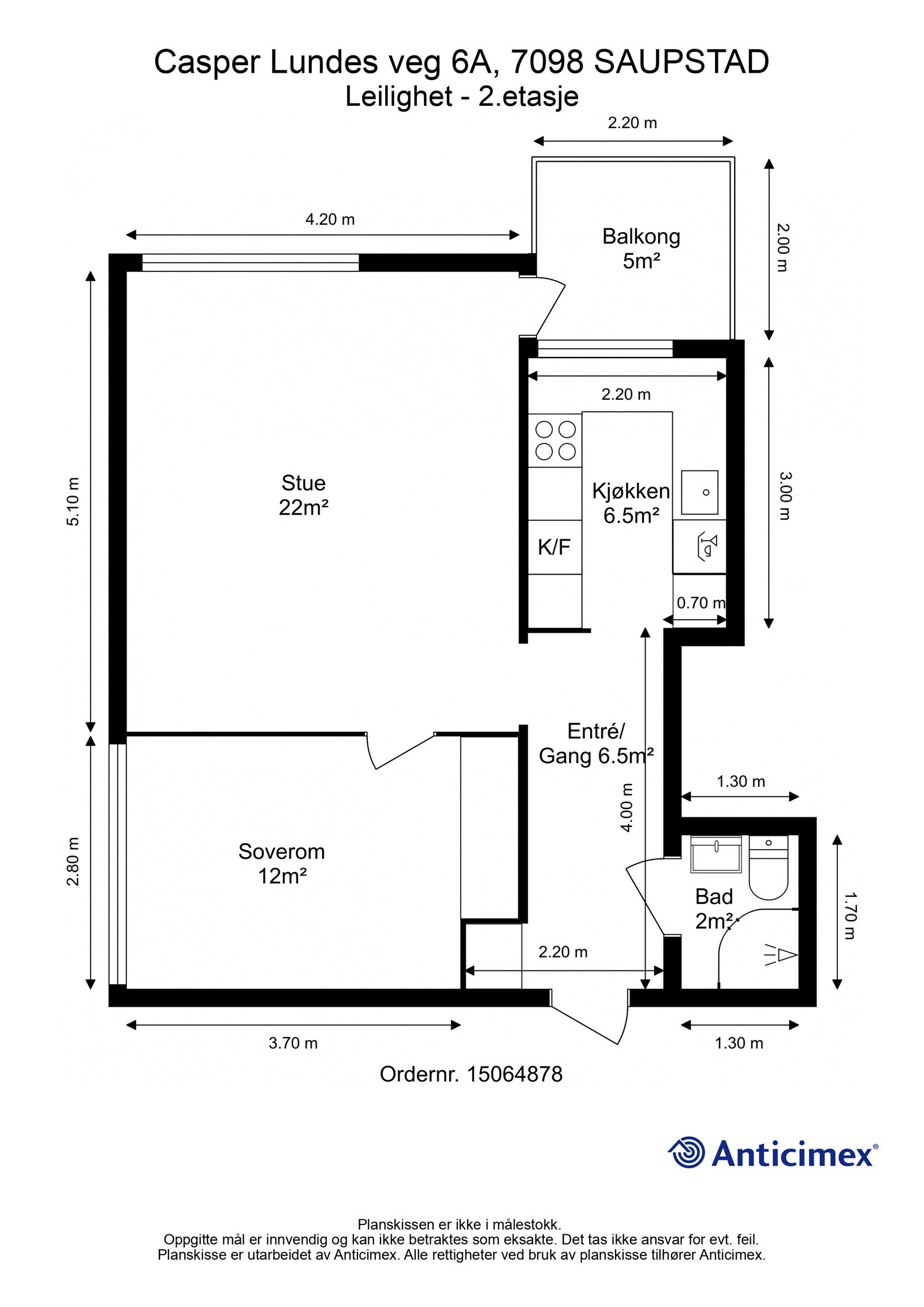
Attraktiv 2-roms leilighet beliggende i 2. etasje i lavblokk. Sørvendt balkong med minimal innsyn og gode solforhold.
Nøkkelinfo
- Boligtype
- Leilighet
- Eieform
- Andel
- Soverom
- 1
- Internt bruksareal
- 51 m² (BRA-i)
- Bruksareal
- 62 m²
- Eksternt bruksareal
- 11 m² (BRA-e)
- Balkong/Terrasse
- 5 m² (TBA)
- Etasje
- 2
- Byggeår
- 1972
- Energimerking
- G - Rød
- Rom
- 2
- Tomt
- Eiet
Fasiliteter
Om boligen
EIE Eiendomsmegling, ved Yasin Unal, har gleden av å presentere Casper Lundes veg 6A ? En attraktiv 2-roms andelsleilighet beliggende i byggets 2. etasje, i et populært og rolig område på Saupstad. Boligen har en sentral beliggenhet med nærhet til alt du trenger i hverdagen, inkludert kollektivtilbud som buss og tog. Nærmeste bussholdeplass, Casper Lundes veg, ligger kun 300 meter unna.
Høydepunkter:
- Nytt varmtvannsbereder 2024
- Det er gjennomført en vannsjekk i regi borettslaget
- Stort soverom på 12 kvm med integrert garderobeskap
- Trivelig balkong med utgang fra stuen
- Lav fellesgjeld og ingen dokumentavgift
- Kabel-TV og internett inkludert i felleskostnadene
- Gode parkeringsmuligheter i nærområdet
- Kort avstand til dagligvarebutikk og kollektivtransport
- Det medfølger bod i kjeller
Salgsoppgaven beskriver vesentlig og lovpålagt informasjon om eiendommen
Se komplett salgsoppgaveNærområdet
EIE eiendomsmegling Heimdal
Annonseinformasjon
| FINN-kode | 383511531 |
|---|---|
| Sist endret | 15. des. 2024 12:29 |
| Referanse | 97240201 |
Annonsene kan være mangelfulle i forhold til lovpålagt opplysningsplikt. Før bindende avtale inngås oppfordres interessenter til å innhente komplett informasjon fra meglerforetaket, selger eller utleier.



















