Bildegalleri

EiendomsMegler 1 v/ Bente Norhild Larsen har gleden av å ønske velkommen til til Sundveien 44!
Liland
Innholdsrik enebolig med strålende utsikt - 4 sov - 2 stuer - Nærhet til barnehage, skole og butikk - Solrikt
Prisantydning1 900 000 kr
Nøkkelinfo
- Boligtype
- Enebolig
- Eieform
- Selveier
- Soverom
- 4
- Internt bruksareal
- 177 m² (BRA-i)
- Bruksareal
- 215 m²
- Eksternt bruksareal
- 38 m² (BRA-e)
- Balkong/Terrasse
- 59 m² (TBA)
- Byggeår
- 1973
- Energimerking
- G - Rød
- Rom
- 6
- Tomteareal
- 885 m² (eiet)
Fasiliteter
Barnevennlig
Balkong/Terrasse
Garasje/P-plass
Peis/Ildsted
Turterreng
Utsikt
Aircondition
Sentralt
Bredbåndstilknytning
Rolig
Om boligen
EiendomsMegler 1 v/ Bente Norhild Larsen har gleden av å ønske velkommen til Sundveien 44 - En innholdsrik enebolig i et rolig og barnevennlig boligområde på Liland.
Beliggenheten byr på strålende utsikt og gode solforhold. Fra boligen er det kort vei til skole, barnehage, butikk og flotte turområder.
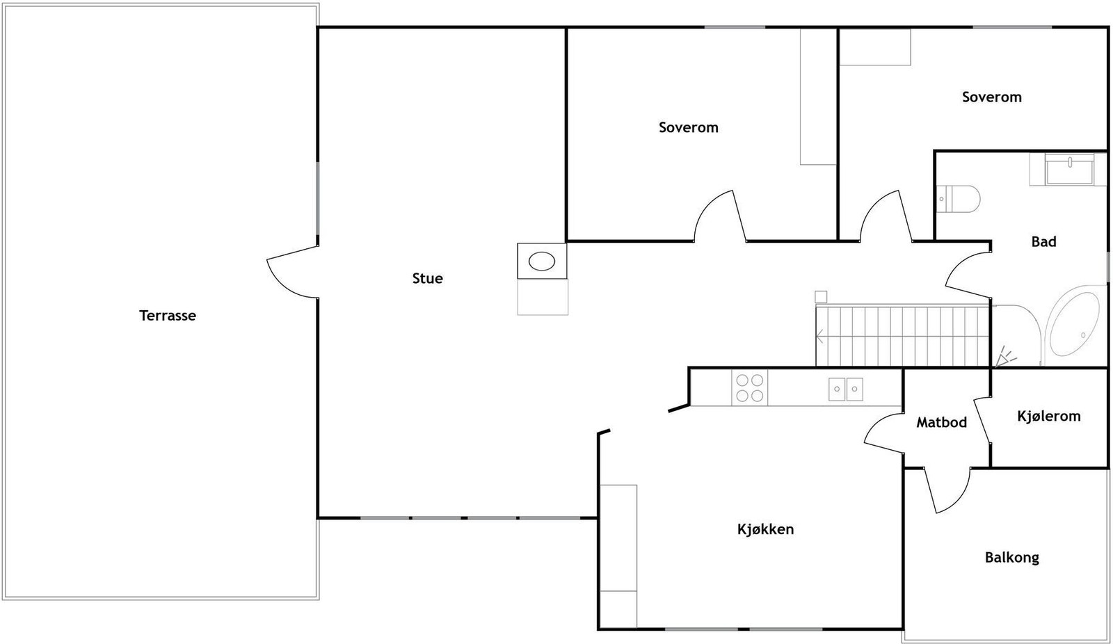
Boligen er romslig med praktisk og god planløsning for hele familien. I 1.etasje får du romslig stue og kjøkken, 2 soverom, bad og boder. Fra stuen er det utgang til stor veranda. Underetasjen består av kjellerstue, 2 soverom, bad/vaskerom og gang/hall. I tillegg er det integrert bod/garasje.
Det er også kort vei til Bogen og Evenes flyplass. Fra boligen er det ca. 55 km til Harstad og ca. 52 km til Narvik.
Husk påmeldingsvisning!
Beliggenheten byr på strålende utsikt og gode solforhold. Fra boligen er det kort vei til skole, barnehage, butikk og flotte turområder.
Boligen er romslig med praktisk og god planløsning for hele familien. I 1.etasje får du romslig stue og kjøkken, 2 soverom, bad og boder. Fra stuen er det utgang til stor veranda. Underetasjen består av kjellerstue, 2 soverom, bad/vaskerom og gang/hall. I tillegg er det integrert bod/garasje.
Det er også kort vei til Bogen og Evenes flyplass. Fra boligen er det ca. 55 km til Harstad og ca. 52 km til Narvik.
Husk påmeldingsvisning!
NB: Knappen for å vise hele beskrivelsen har kun en visuell effekt.
NB: Knappen for å vise hele beskrivelsen har kun en visuell effekt.
Salgsoppgaven beskriver vesentlig og lovpålagt informasjon om eiendommen
Se komplett salgsoppgaveNyttige lenker
Nærområdet
EiendomsMegler 1 Harstad
Vi loser deg trygt gjennom hele boligsalget
Annonsene kan være mangelfulle i forhold til lovpålagt opplysningsplikt. Før bindende avtale inngås oppfordres interessenter til å innhente komplett informasjon fra meglerforetaket, selger eller utleier.































