Bildegalleri

Nyere, moderne 3-roms leilighet | Sydvestvendt terrasse | Enkel adkomst | Garasje | Heis | IN-ordning
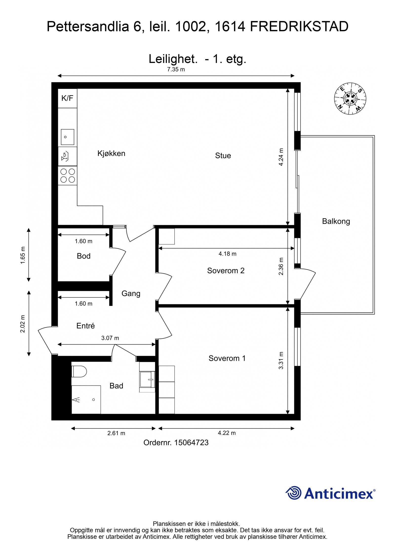
Nøkkelinfo
- Boligtype
- Leilighet
- Eieform
- Andel
- Soverom
- 2
- Internt bruksareal
- 75 m² (BRA-i)
- Bruksareal
- 80 m²
- Eksternt bruksareal
- 5 m² (BRA-e)
- Balkong/Terrasse
- 13 m² (TBA)
- Etasje
- 1
- Byggeår
- 2023
- Energimerking
- B - Gul
- Rom
- 3
- Tomteareal
- 8 545 m² (eiet)
Om boligen
Nyere 3-roms leilighet på Haraldåsen - Pettersand i Fredrikstad. Leiligheten ligger i 1. etg. med enkel adkomst og fremstår med en god standard og tidsriktige og moderne løsninger. Inneholder entré, bod/teknisk rom, bad, to soverom og kjøkken og stue i åpen løsning. Utgang til romslig balkong fra både stuen og det ene soverommet.
Det medfølger garasjeplass samt romslig lagringbod i p-kjeller.
Det er mulighet for å nedbetale hele eller deler av fellesgjelden, gjennom borettslagets individuelle nedbetalingsordning (IN-avtale). Nedbetaling av fellesgjeld vil evt. gi lavere felleskostnader pr mnd.
Salgsoppgaven beskriver vesentlig og lovpålagt informasjon om eiendommen
Se komplett salgsoppgaveNyttige lenker
Nærområdet
OBOS eiendomsmeglere - Fredrikstad
Annonseinformasjon
| FINN-kode | 382695177 |
|---|---|
| Sist endret | 13. okt. 2025 12:54 |
| Referanse | 710240156 |
Annonsene kan være mangelfulle i forhold til lovpålagt opplysningsplikt. Før bindende avtale inngås oppfordres interessenter til å innhente komplett informasjon fra meglerforetaket, selger eller utleier.


























