Bildegalleri

Velkommen til Alexander Kiellands gate 12A, presentert av Kenneth Andreassen i Nordvik Lillestrøm!
Solgt
LILLESTRØM:
Svært attraktiv og romslig 2-roms med balkong! Fjernvarme inkl. - Parkeringsplass - Gangavstand til Lillestrøm sentrum!
Prisantydning3 390 000 kr
Nøkkelinfo
- Boligtype
- Leilighet
- Eieform
- Andel
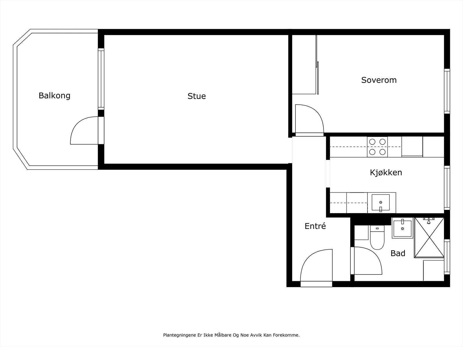
- Soverom
- 1
- Internt bruksareal
- 51 m² (BRA-i)
- Bruksareal
- 56 m²
- Eksternt bruksareal
- 5 m² (BRA-e)
- Balkong/Terrasse
- 9 m² (TBA)
- Etasje
- 1
- Byggeår
- 1957
- Rom
- 2
- Tomteareal
- 6 029 m² (eiet)
Fasiliteter
Balkong/Terrasse
Barnevennlig
Bredbåndstilknytning
Garasje/P-plass
Kjæledyr tillatt
Kabel-TV
Offentlig vann/kloakk
Parkett
Rolig
Sentralt
Vaktmester-/vektertjeneste
Bademulighet
Turterreng
Lademulighet
Om boligen
Velkommen til Alexander Kiellands gate 12A!
En lys og pen 2-roms med god planløsning flott balkong og attraktiv beliggenhet! Leiligheten ligger i et urbant og moderne boligområde, rett ved Lillestrøm sentrum, med umiddelbar nærhet til offentlig kommunikasjon og byens fasiliteter.
Verdt å merke seg:
- 2-roms leilighet rett ved Lillestrøm sentrum.
- Ingen dokumentavgift.
- Fjernvarme er inkludert i felleskost.
- Separat og romslig kjøkken
- Stort soverom.
- P-plass medfølger.
- Balkong på 9 kvm.
- Kjeller- og loftsbod.
- Kort vei til barnehage/barneskole og ungdomsskole
- Umiddelbar nærhet til skog og mark med fine turområder
- Kort vei til offentlig kommunikasjon med hyppige avganger
En lys og pen 2-roms med god planløsning flott balkong og attraktiv beliggenhet! Leiligheten ligger i et urbant og moderne boligområde, rett ved Lillestrøm sentrum, med umiddelbar nærhet til offentlig kommunikasjon og byens fasiliteter.
Verdt å merke seg:
- 2-roms leilighet rett ved Lillestrøm sentrum.
- Ingen dokumentavgift.
- Fjernvarme er inkludert i felleskost.
- Separat og romslig kjøkken
- Stort soverom.
- P-plass medfølger.
- Balkong på 9 kvm.
- Kjeller- og loftsbod.
- Kort vei til barnehage/barneskole og ungdomsskole
- Umiddelbar nærhet til skog og mark med fine turområder
- Kort vei til offentlig kommunikasjon med hyppige avganger
NB: Knappen for å vise hele beskrivelsen har kun en visuell effekt.
NB: Knappen for å vise hele beskrivelsen har kun en visuell effekt.
Salgsoppgaven beskriver vesentlig og lovpålagt informasjon om eiendommen
Se komplett salgsoppgaveNyttige lenker
Nærområdet
Nordvik Lillestrøm
Annonseinformasjon
| FINN-kode | 382629096 |
|---|---|
| Sist endret | 09. des. 2024 12:14 |
| Referanse | 60-0379/24 |
Annonsene kan være mangelfulle i forhold til lovpålagt opplysningsplikt. Før bindende avtale inngås oppfordres interessenter til å innhente komplett informasjon fra meglerforetaket, selger eller utleier.
























