Bildegalleri

Velkommen til Sommarfjøsvegen 73 presentert av Hjem Eiendomsmegling!

Solgt

Pen 3-roms med fantastisk utsikt! | Garasje | Heis | Nyere kjøkken og bad

Prisantydning3 900 000 kr
Totalpris
3 953 921 kr
Omkostninger
11 190 kr
Fellesgjeld
42 731 kr
Felleskost/mnd.
5 922 kr
Formuesverdi
850 741 kr

Nøkkelinfo

Boligtype
Leilighet
Eieform
Andel
Soverom
2
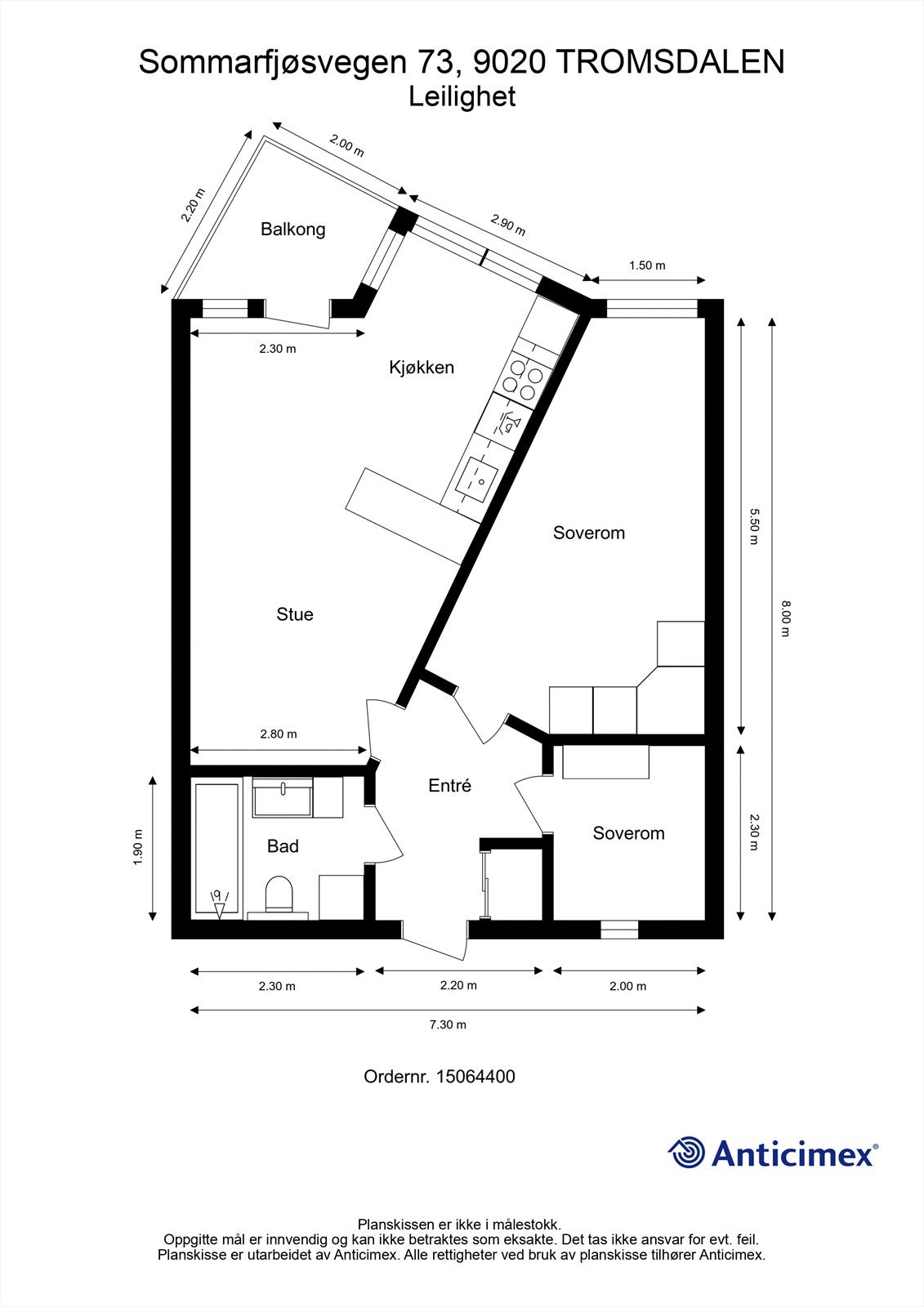
Internt bruksareal
60 m² (BRA-i)
Bruksareal
64 m²
Eksternt bruksareal
4 m² (BRA-e)
Balkong/Terrasse
3 m² (TBA)
Etasje
3
Byggeår
2000
Energimerking
D - Rød
Rom
3
Tomteareal
3 799 m² (eiet)

Les mer om bruksareal her

Fasiliteter

Balkong/Terrasse
Garasje/P-plass
Heis
Kjæledyr tillatt
Offentlig vann/kloakk
Rolig
Utsikt
Turterreng

Om boligen

Velkommen til Sommarfjøsvegen 73!
En lekker leilighet i tredje etasje med fantastisk vestvendt utsikt, med gode solforhold og en veranda der man kan nyte lange sommerkvelder.
Populær beliggenhet på fastlandet med turmuligheter like i nærheten, og sentrum er kun 8 minutter unna i bil.

Leiligheten har gjennomgått større modernisering de siste år med kjøkken fra 2022 og bad fra 2023.
Kjøkkenet har godt med benke- og skapplass, med plass til spisegruppe, og naturlig plass til stuedel.
Badet er helfliset med varme i gulv og smart innredning.
To soverom i boligen, og en praktisk entré med oppbevaring.
Parkering og sportsbod i garasjeanlegg.

For mer informasjon, kontakt eiendomsmegler Levi Gout på 902 65 250!

Salgsoppgaven beskriver vesentlig og lovpålagt informasjon om eiendommen

Se komplett salgsoppgave

Nærområdet

Prisstatistikk

Sommarfjøsvegen 73

2 595 klikk

på annonsen

65 712 kr

prisantydning per kvadratmeter

Prisfordeling

Pris per m² ligger 4 712 kr over snittet for leiligheter i Tromsdalen/Tomasjord/Kroken/Ramfjord.

Grafen viser antall leiligheter solgt i Tromsdalen/Tomasjord/Kroken/Ramfjord siste året fordelt på pris per m² - totalt 339 leiligheter

Antall boliger

05101520
Histogram som viser prisfordeling for boliger i Tromsdalen/Tomasjord/Kroken/RamfjordDenne boligen koster 66000 kr per kvadratmeter, mens gjennomsnittet er 61000 kr per kvadratmeter26 00045 00064 00083 000Pris per m² i krDenne boligen66 000 krGjennomsnitt61 000 kr

Kvadratmeterpris tilsvarer prisantydning pluss fellesgjeld per kvadratmeter (p-rom eller BRA-i). Prisene i grafen er avrundet til nærmeste 1000 kr.

Eiendommer solgt i samme område

I løpet av de siste 12 månedene

Bilde av kartet på finn.no

Annonseinformasjon

FINN-kode382499636
Sist endret09. des. 2024 15:09
Referanse1-0278/24

Rapporter annonse

Annonsene kan være mangelfulle i forhold til lovpålagt opplysningsplikt. Før bindende avtale inngås oppfordres interessenter til å innhente komplett informasjon fra meglerforetaket, selger eller utleier.