Bildegalleri

Velkommen til Midtløkken II - en fin leilihget i underetasje med utsikt til sprutparken!
Hyggelig og velholdt 2 roms leilighet med uteplass på Midtløkken. Pent bad. Søknadsfrist: 05.12.2024
Nøkkelinfo
- Boligtype
- Leilighet
- Eieform
- Andel
- Soverom
- 1
- Internt bruksareal
- 55 m² (BRA-i)
- Bruksareal
- 58 m²
- Eksternt bruksareal
- 3 m² (BRA-e)
- Balkong/Terrasse
- 15 m² (TBA)
- Byggeår
- 2005
- Energimerking
- D - Rød
- Rom
- 2
- Tomteareal
- 2 340 m² (eiet)
Om boligen
Velkommen til Skiringsalgaten 1 C, leilighet 532 i Midtløkken II borettslag. Et fint sted å bo!
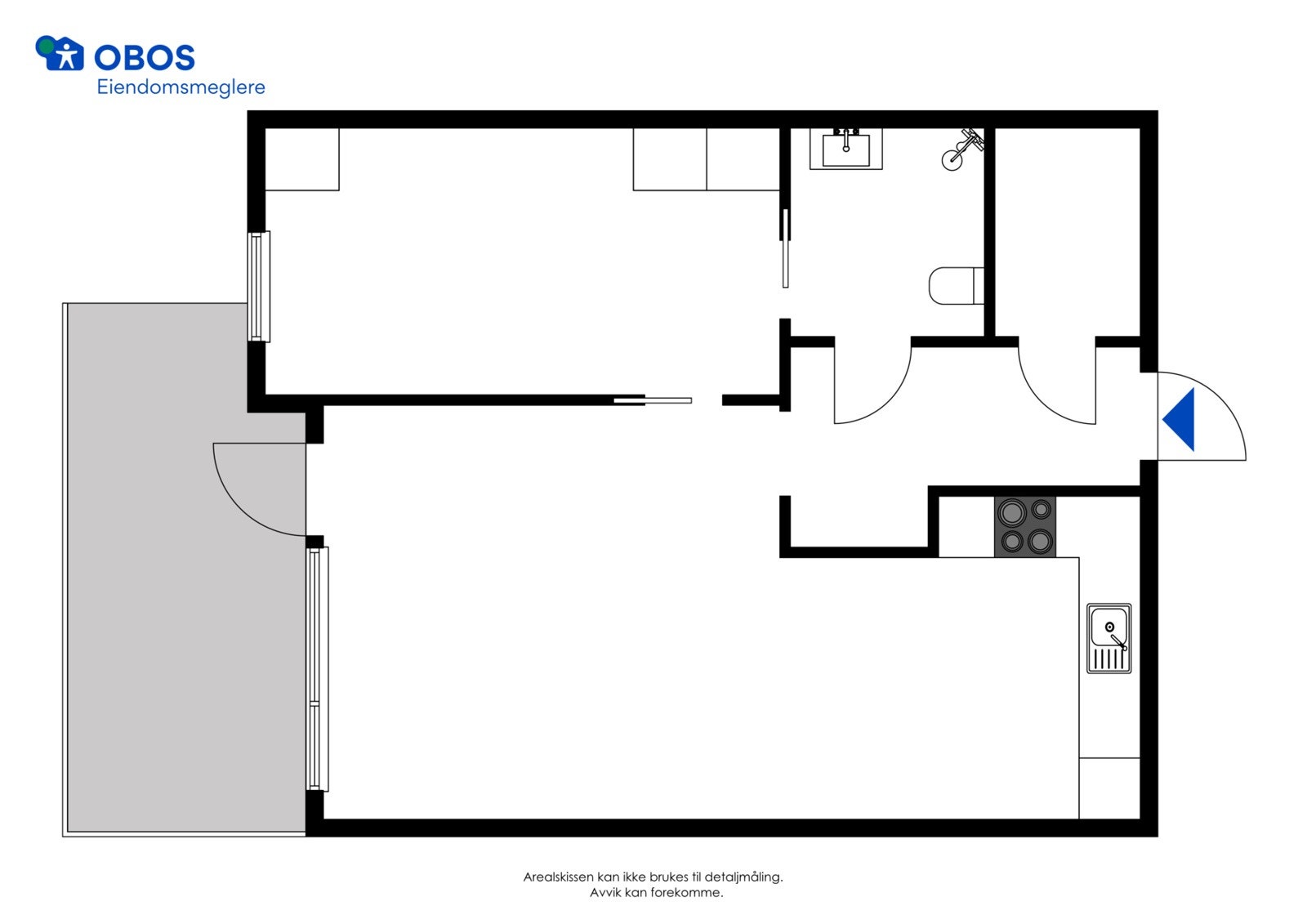
Leilighet 532 er en hyggelig og velholdt 2 roms. Det er heis i bygget og denne tas ned i underetasjen hvor leiligheten ligger. Inneholder gang, bad lys stue med åpen kjøkkenløsning og soverom. Innvendiog bod og bod på gang. Utgang fra stuen til egen uteplass vendt mot sprutparken. .
Sentral beliggenhet i kort gangavstand til Tønsberg sentrum, sentrumsfunksjoner, buss- og jernbanestasjon. Busstopp like utenfor i Stenmalveien.
Bare personer som oppebærer alderspensjon (fra 67 år) og som har bodd 2 år i Tønsberg i løpet av de siste 10 år kan være andelseiere.
Søknadsfrist: 05.12.2024.
Salgsoppgaven beskriver vesentlig og lovpålagt informasjon om eiendommen
Se komplett salgsoppgaveNyttige lenker
Nærområdet
OBOS eiendomsmeglere - Tønsberg
Annonseinformasjon
| FINN-kode | 382338446 |
|---|---|
| Sist endret | 14. des. 2024 09:29 |
| Referanse | 712240085 |
Annonsene kan være mangelfulle i forhold til lovpålagt opplysningsplikt. Før bindende avtale inngås oppfordres interessenter til å innhente komplett informasjon fra meglerforetaket, selger eller utleier.

























