Bildegalleri

Velkommen til Tors vei 43, presentert av Kenneth Andreassen v/ Nordvik Lillestrøm!
Inaktiv
FJELLHAMAR:
Svært innholdsrik enebolig med gode leieinntekter og flott utsikt! Oppgradert - Solrik terrasse på 98 m2 - Dbl.garasje
Prisantydning14 990 000 kr
Pris på lån: fra 60 670 kr/mnd
Eff.rente 5,00 %. 10 493 000 o/25 år. Kostnad: 7 708 000 kr. Totalt 18 201 000 kr.
LånekalkulatorNøkkelinfo
- Boligtype
- Enebolig
- Eieform
- Eier (Selveier)
- Soverom
- 9
- Internt bruksareal
- 306 m² (BRA-i)
- Bruksareal
- 306 m²
- Balkong/Terrasse
- 137 m² (TBA)
- Etasje
- 3
- Byggeår
- 1967
- Energimerking
- F - Oransje
- Rom
- 11
- Tomteareal
- 679 m² (eiet)
Fasiliteter
Balkong/Terrasse
Barnevennlig
Bredbåndstilknytning
Garasje/P-plass
Hage
Kjæledyr tillatt
Kabel-TV
Offentlig vann/kloakk
Rolig
Sentralt
Utsikt
Bademulighet
Turterreng
Lademulighet
Om boligen
Velkommen til Tors vei 43, presentert av Kenneth Andreassen i Nordvik!
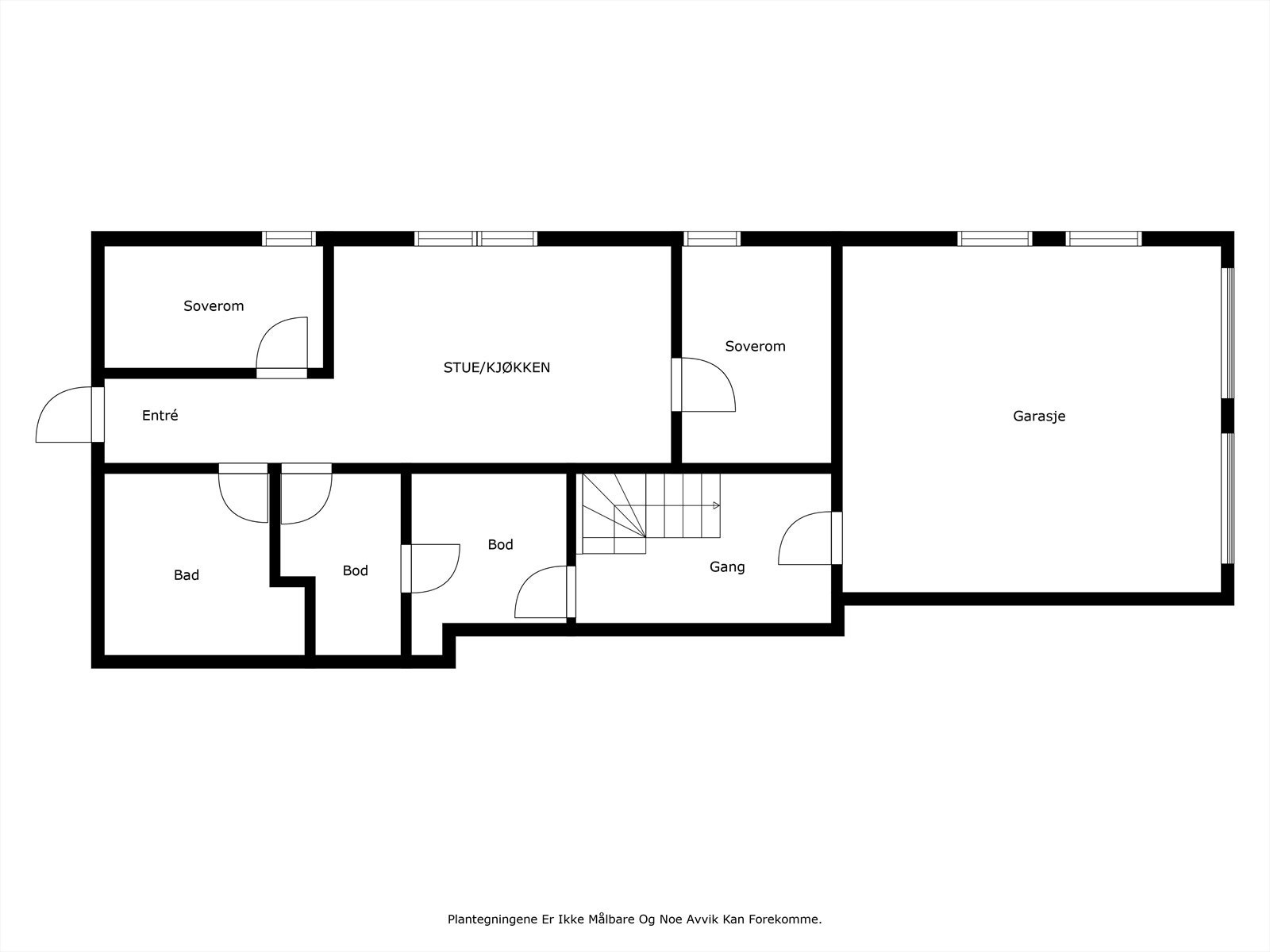
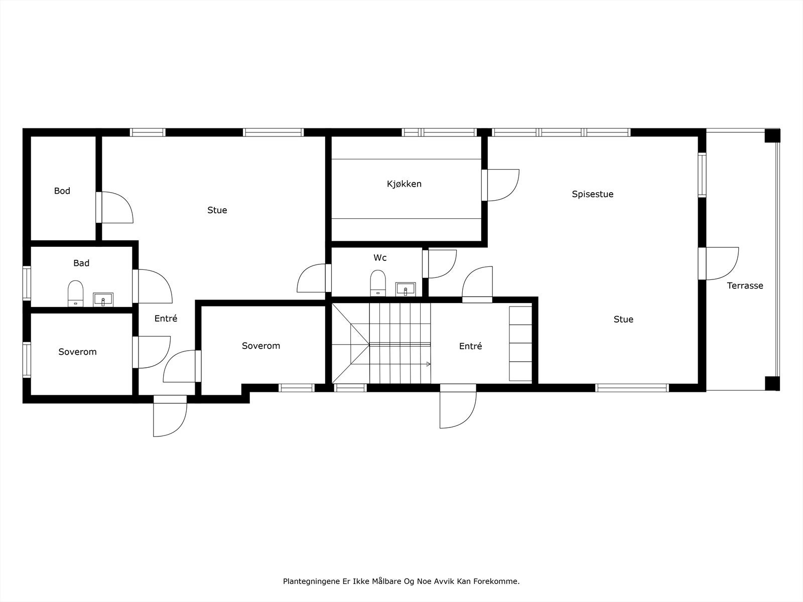
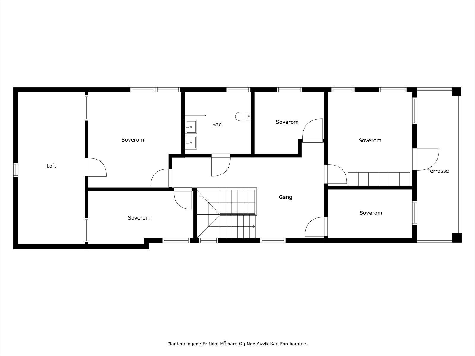
Tors vei 43 er en stor og innholdsrik enebolig med solrik beliggenhet på Fjellhamar i Lørenskog kommune. Boligen ligger høyt og fritt til øverst på Fjellhamar. Boligen går over tre plan inkl. kjeller og har en god planløsning med store rom, og et svært eksklusivt uttrykk. Kort vei også til helårs turterreng, badevann, skiløyper og sykkelstier. Det er gangavstand til både bussholdeplass og Fjellhamar togstasjon.
Kort om eiendommen:
- Oppusset og utvidet enebolig med utleiedel på hele 306 kvm BRA-i
- Varmefolie i alle rom utenom gang i hoveddel
- Lagt varmekabler i innkjørsel
- God lagringsplass i loftsbod
- Smartløsninger
- Godt med biloppstillingsplasser på gårdsplass og i dobbelgarasje
Tors vei 43 er en stor og innholdsrik enebolig med solrik beliggenhet på Fjellhamar i Lørenskog kommune. Boligen ligger høyt og fritt til øverst på Fjellhamar. Boligen går over tre plan inkl. kjeller og har en god planløsning med store rom, og et svært eksklusivt uttrykk. Kort vei også til helårs turterreng, badevann, skiløyper og sykkelstier. Det er gangavstand til både bussholdeplass og Fjellhamar togstasjon.
Kort om eiendommen:
- Oppusset og utvidet enebolig med utleiedel på hele 306 kvm BRA-i
- Varmefolie i alle rom utenom gang i hoveddel
- Lagt varmekabler i innkjørsel
- God lagringsplass i loftsbod
- Smartløsninger
- Godt med biloppstillingsplasser på gårdsplass og i dobbelgarasje
NB: Knappen for å vise hele beskrivelsen har kun en visuell effekt.
NB: Knappen for å vise hele beskrivelsen har kun en visuell effekt.
Salgsoppgaven beskriver vesentlig og lovpålagt informasjon om eiendommen
Se komplett salgsoppgaveNyttige lenker
Nærområdet
Nordvik Lillestrøm
Annonseinformasjon
| FINN-kode | 382183133 |
|---|---|
| Sist endret | 23. okt. 2025 09:55 |
| Referanse | 60-0175/24 |
Annonsene kan være mangelfulle i forhold til lovpålagt opplysningsplikt. Før bindende avtale inngås oppfordres interessenter til å innhente komplett informasjon fra meglerforetaket, selger eller utleier.



















































