Bildegalleri

EiendomsMegler 1 presenterer Horvnesveien 105 - Vertikaldelt tomannsbolig med oppussingsbehov
Halvpart av vertikaldelt tomannsbolig m/oppussingsbehov // Integrert garasje -Sentrumsnær - Gåavstand til Helgelandsbase
Nøkkelinfo
- Boligtype
- Tomannsbolig
- Eieform
- Eier (Selveier)
- Soverom
- 2
- Internt bruksareal
- 140 m² (BRA-i)
- Bruksareal
- 159 m²
- Eksternt bruksareal
- 19 m² (BRA-e)
- Balkong/Terrasse
- 30 m² (TBA)
- Etasje
- 1
- Byggeår
- 1961
- Energimerking
- G - Rød
- Rom
- 3
- Tomteareal
- 390 m² (eiet)
Fasiliteter
Om boligen
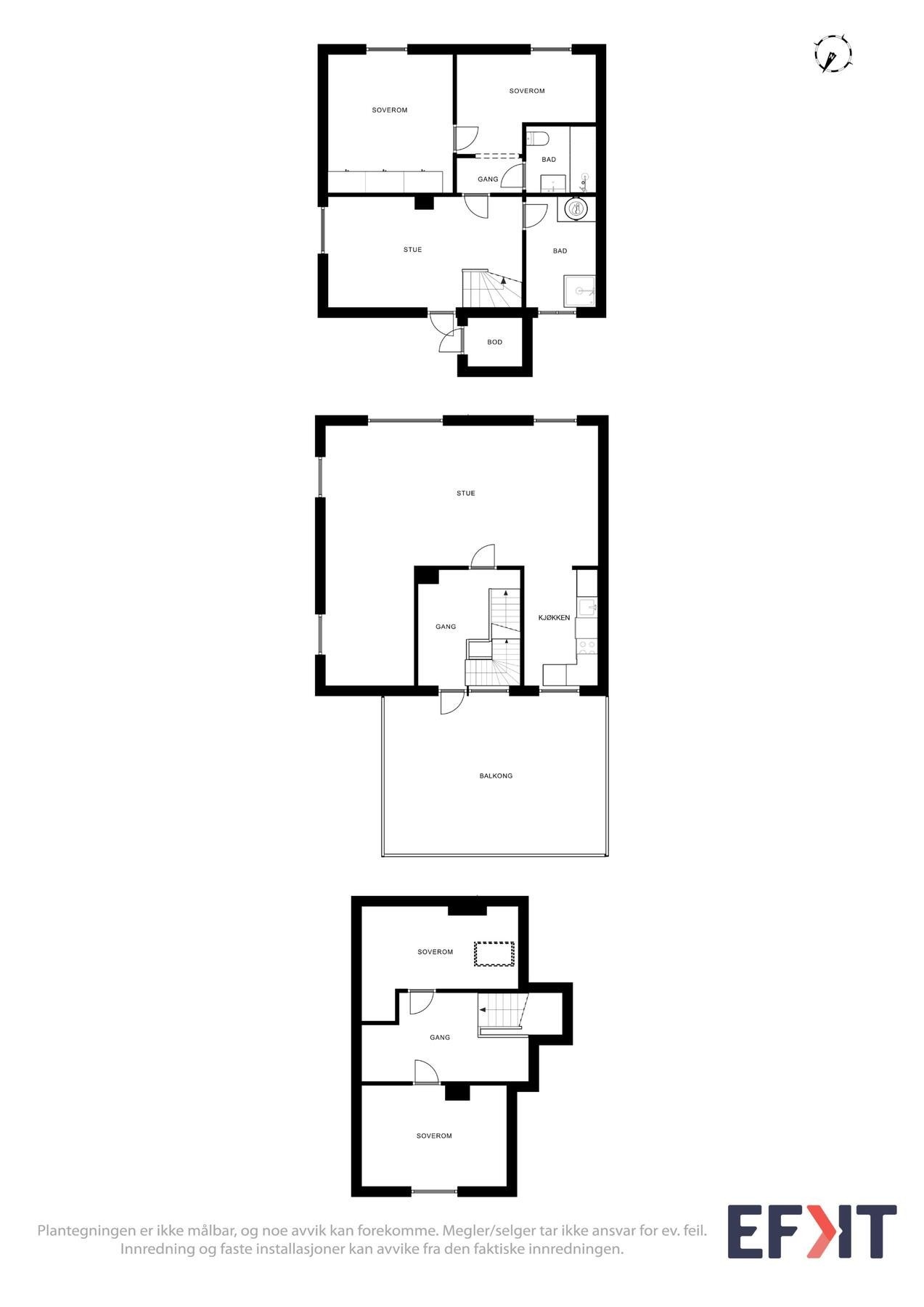
Denne boligen er sentralt plassert, med kort avstand til de fleste hverdagsfasiliteter. Selv om boligen anses som et oppussingsobjekt, har taket nylig blitt skiftet og deler av overetasjen er renovert. Boligen inneholder blant annet en entré, stue, kjøkken, bad, vaskerom og to soverom. I tillegg er det etablert en stue/allrom i 1. etasje og to soverom på loftet, men disse er ikke omsøkt. Boligen har også en integrert garasje med tilknyttet takterrasse.
Dette er en flott mulighet for deg som ønsker å sette ditt eget preg på en bolig med stort potensial. Boligen ligger i tillegg i gang- eller sykkelavstand til Helgelandsbasen. Dette gjør boligen godt egnet for deg som enten jobber der selv, eller som ønsker å huse eller leie ut til arbeidere.
Er dette noe for deg? Last ned salgsoppgaven og kom godt forberedt.
Vi ser frem til å ønske deg velkommen på visning!
Salgsoppgaven beskriver vesentlig og lovpålagt informasjon om eiendommen
Se komplett salgsoppgaveNyttige lenker
Nærområdet
EiendomsMegler 1 Sandnessjøen
Prisstatistikk
Horvnesveien 105
på annonsen
prisantydning per kvadratmeter
Prisfordeling
Pris per m² ligger 9 715 kr under snittet for tomannsboliger i Alstahaug.
Grafen viser antall tomannsboliger solgt i Alstahaug siste året fordelt på pris per m² - totalt 7 tomannsboliger
Antall boliger
Kvadratmeterpris tilsvarer prisantydning pluss fellesgjeld per kvadratmeter (p-rom eller BRA-i). Prisene i grafen er avrundet til nærmeste 1000 kr.
Annonseinformasjon
| FINN-kode | 381563749 |
|---|---|
| Sist endret | 13. okt. 2025 04:11 |
| Referanse | 13240067 |
Annonsene kan være mangelfulle i forhold til lovpålagt opplysningsplikt. Før bindende avtale inngås oppfordres interessenter til å innhente komplett informasjon fra meglerforetaket, selger eller utleier.




























