Bildegalleri
Skolegata
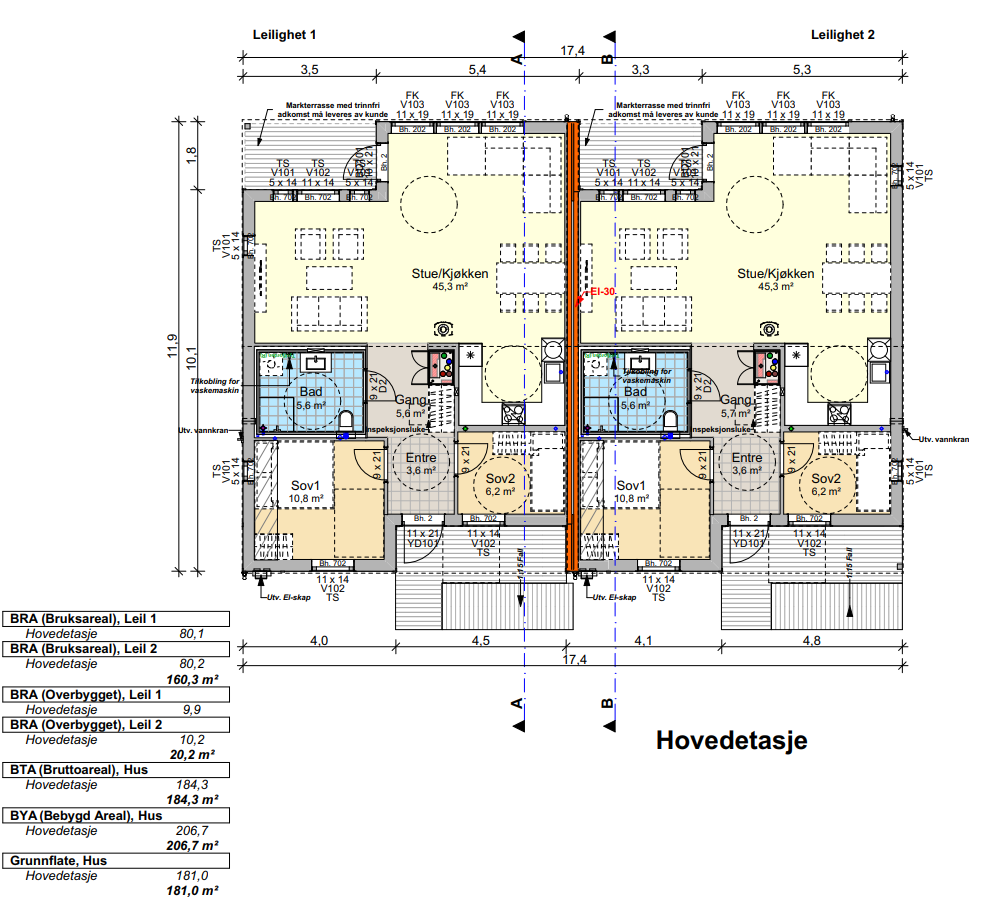
Tomannsbolig / leiligheter
Prisantydning3 595 000 kr
Nøkkelinfo
- Boligtype
- Tomannsbolig
- Eieform
- Eier (Selveier)
- Soverom
- 2
- Bruksareal
- 82 m²
- Byggeår
- 2025
- Energimerking
- A
- Tomt
- Eiet
Visning
Ta kontakt for å avtale visning.Beliggenhet
Nye boliger skal oppføres i sentrum av Meråker 100meter til skole, 200meter til butkk.
Tillegg:
3 soverom kommer et tillegg på 26.000kr.
Carport fra 90.000kr, komplett med støpt betongplate 115.000kr
Tillegg:
3 soverom kommer et tillegg på 26.000kr.
Carport fra 90.000kr, komplett med støpt betongplate 115.000kr
NB: Knappen for å vise hele beskrivelsen har kun en visuell effekt.
NB: Knappen for å vise hele beskrivelsen har kun en visuell effekt.
Ta kontakt med selger for komplett informasjon
Nyttige lenker
Nærområdet
Annonsene kan være mangelfulle i forhold til lovpålagt opplysningsplikt. Før bindende avtale inngås oppfordres interessenter til å innhente komplett informasjon fra meglerforetaket, selger eller utleier.












