


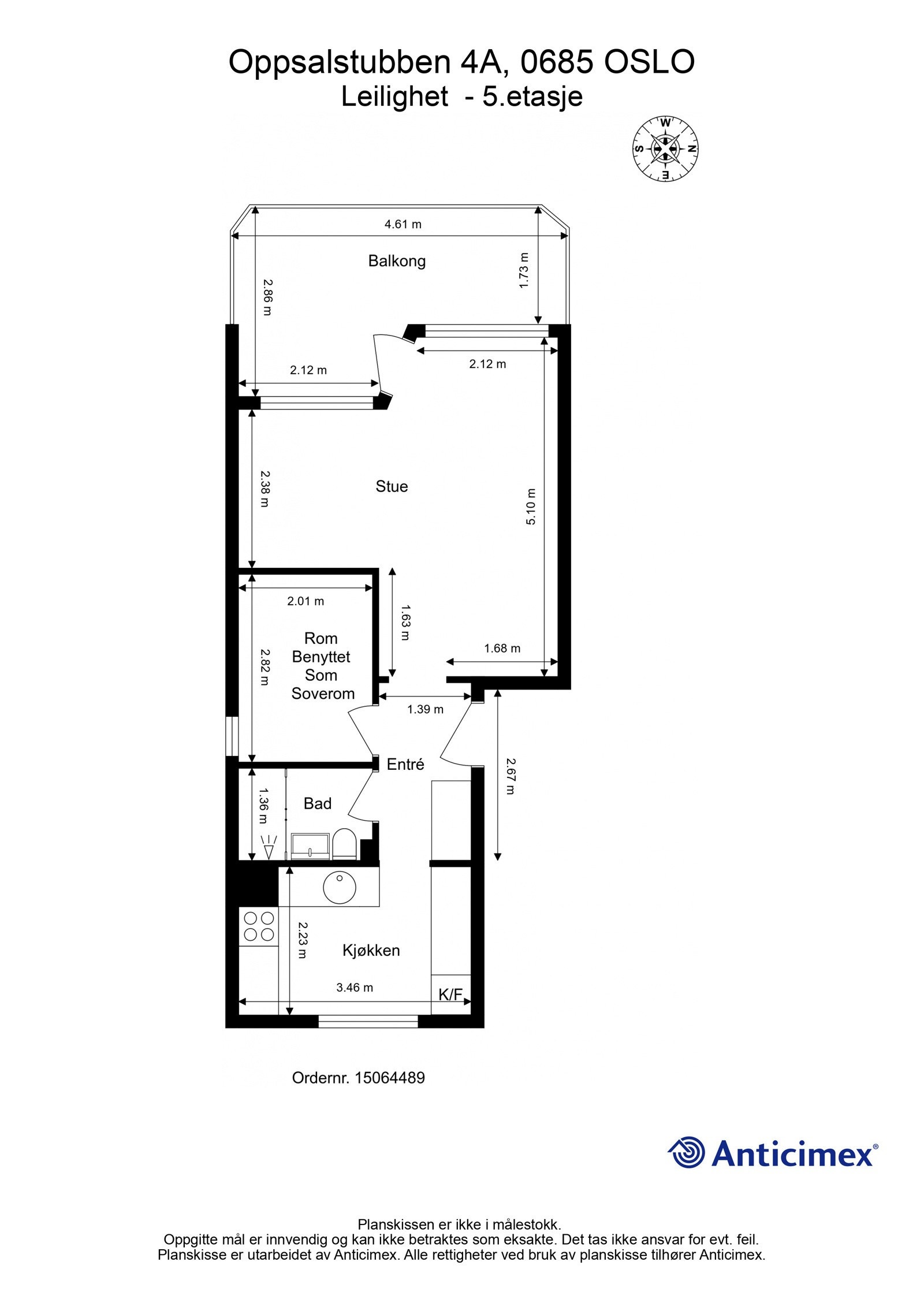
Velkommen til flott loftsleilighet med god takhøyde og stor vestvendt balkong med supre solforhold!
Salgsoppgaven beskriver vesentlig og lovpålagt informasjon om eiendommen
Se komplett salgsoppgaveOppsalstubben 4A
på annonsen
prisantydning per kvadratmeter
Pris per m² ligger 19 400 kr over snittet for leiligheter i Østensjø.
Grafen viser antall leiligheter solgt i Østensjø siste året fordelt på pris per m² - totalt 469 leiligheter
Antall boliger
Kvadratmeterpris tilsvarer prisantydning pluss fellesgjeld per kvadratmeter (p-rom eller BRA-i). Prisene i grafen er avrundet til nærmeste 1000 kr.












| FINN-kode | 381274944 |
|---|---|
| Sist endret | 30. nov. 2024 11:09 |
| Referanse | 702240089 |
Annonsene kan være mangelfulle i forhold til lovpålagt opplysningsplikt. Før bindende avtale inngås oppfordres interessenter til å innhente komplett informasjon fra meglerforetaket, selger eller utleier.