Bildegalleri

Eirik Aas har gleden av å presentere Svelvikveien 934. Enebolig med praktfull beliggenhet.
Inaktiv
Stor enebolig med uteleiedel. Utsikt til fjorden og idyllisk beliggenhet.
Prisantydning6 700 000 kr
Nøkkelinfo
- Boligtype
- Enebolig
- Eieform
- Selveier
- Soverom
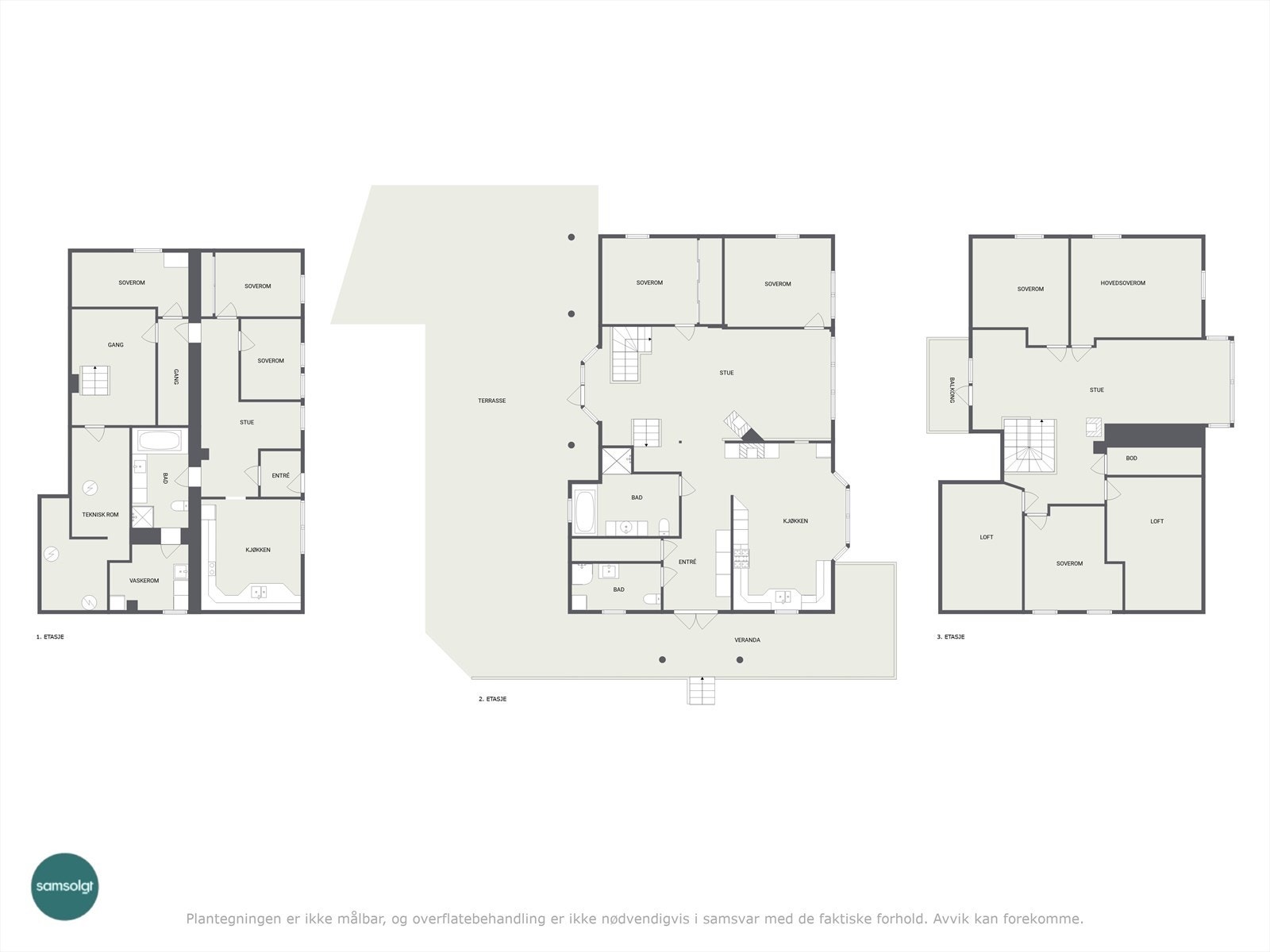
- 8
- Internt bruksareal
- 366 m² (BRA-i)
- Bruksareal
- 380 m²
- Eksternt bruksareal
- 14 m² (BRA-e)
- Etasje
- 3
- Energimerking
- G - Oransje
- Tomteareal
- 2 874 m² (eiet)
Fasiliteter
Balkong/Terrasse
Barnevennlig
Garasje/P-plass
Hage
Kjæledyr tillatt
Ingen gjenboere
Peis/Ildsted
Rolig
Utsikt
Bademulighet
Fiskemulighet
Turterreng
Om boligen
Velkommen til Svelvikveien 934, en stor og innholdsrik enebolig over 3 plan med grønn og frodig hage, utsikt til fjorden og idyllisk beliggenhet. Boligen ligger i et barnevennlig boområde, med kort vei til skole, barnehage, flotte friluftsområder ved sjøen og nærhet til marka.
Boligen har en god planløsning over tre plan, terrasse på 147 kvm med flott utsikt til fjorden. God plass til parkering av biler på gårdsplassen. Boligen er innredet med mulighet for utleie av del av egen bolig i kjelleretasjen (egen strømmåler og varmtvannsbreder).
Høydepunkter:
- 8 soverom
- Flere store terrasser og boltreplasser
- 3 flislagte bad og vaskerom
- Stor og frodig hage
- Gode solforhold
- Nydelig fjordutsikt
- Stor gårdsplass
Velkommen til visning!
Boligen har en god planløsning over tre plan, terrasse på 147 kvm med flott utsikt til fjorden. God plass til parkering av biler på gårdsplassen. Boligen er innredet med mulighet for utleie av del av egen bolig i kjelleretasjen (egen strømmåler og varmtvannsbreder).
Høydepunkter:
- 8 soverom
- Flere store terrasser og boltreplasser
- 3 flislagte bad og vaskerom
- Stor og frodig hage
- Gode solforhold
- Nydelig fjordutsikt
- Stor gårdsplass
Velkommen til visning!
NB: Knappen for å vise hele beskrivelsen har kun en visuell effekt.
NB: Knappen for å vise hele beskrivelsen har kun en visuell effekt.
Salgsoppgaven beskriver vesentlig og lovpålagt informasjon om eiendommen
Se komplett salgsoppgaveNyttige lenker
Nærområdet
DNB Eiendom AS
Verdifulle salg
Annonseinformasjon
| FINN-kode | 381274371 |
|---|---|
| Sist endret | 23. jan. 2026 12:27 |
| Referanse | 329240234 |
Annonsene kan være mangelfulle i forhold til lovpålagt opplysningsplikt. Før bindende avtale inngås oppfordres interessenter til å innhente komplett informasjon fra meglerforetaket, selger eller utleier.






























































