Bildegalleri

Boligen ligger høyt å fritt med god utsikt. Flere p.plasser på egen tomt. Velkommen på visning.
Trosvik
Innholdsrik og oppgradert enebolig m/flott utsikt | 4 sov , 2 bad | Garasje, romslig gårdsplass. Gangavst. til sentrum
Prisantydning5 990 000 kr
Nøkkelinfo
- Boligtype
- Enebolig
- Eieform
- Eier (Selveier)
- Soverom
- 4
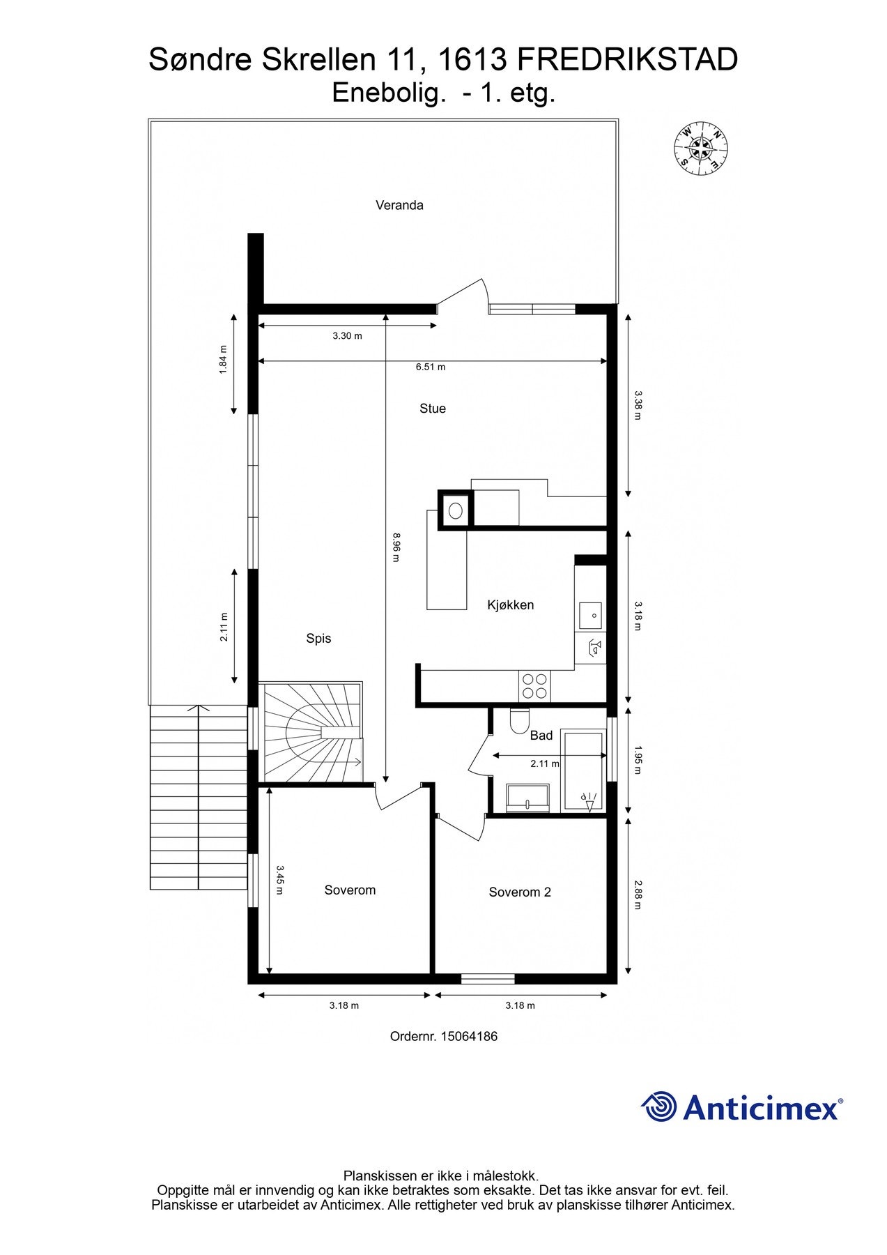
- Internt bruksareal
- 155 m² (BRA-i)
- Bruksareal
- 177 m²
- Eksternt bruksareal
- 22 m² (BRA-e)
- Balkong/Terrasse
- 43 m² (TBA)
- Etasje
- 2
- Byggeår
- 1981
- Energimerking
- G - Oransje
- Rom
- 6
- Tomteareal
- 520 m² (festet)
- Festeavgift
- 1 635 kr
Fasiliteter
Barnevennlig
Balkong/Terrasse
Garasje/P-plass
Kabel-TV
Parkett
Peis/Ildsted
Turterreng
Utsikt
Sentralt
Bredbåndstilknytning
Rolig
Visning
torsdag, 19. februar
18:00 – 19:00
Meld deg på visning eller kontakt eiendomsmegler for privatvisning.
Visning blir ikke gjennomført uten påmeldte.
Om boligen
Dette er en innholdsrik enebolig over 2 plan med 4 soverom, 2 flotte bad, stort romslig kjøkken og garasje. Stor gårdsplass med plass til flere biler. Eiendommen er solrikt beliggende mot vest i et etablert og barnevennlig boligområde på Trosvik. Herfra er det kun en kort spasertur til barnehage, barneskole og fine turområder i Fredrikstadmarka. Kort avstand til Christianslund med flere butikker. Fra eiendommen er det ca 1,5 km fra Fredrikstad sentrum. Her har du alt du og familien din trenger i det daglige.
NB: Knappen for å vise hele beskrivelsen har kun en visuell effekt.
NB: Knappen for å vise hele beskrivelsen har kun en visuell effekt.
Salgsoppgaven beskriver vesentlig og lovpålagt informasjon om eiendommen
Se komplett salgsoppgaveNærområdet
STAVLUND AS
Vi kan også selge din bolig
Annonseinformasjon
| FINN-kode | 381251353 |
|---|---|
| Sist endret | 13. feb. 2026 11:01 |
| Referanse | 192240232 |
Annonsene kan være mangelfulle i forhold til lovpålagt opplysningsplikt. Før bindende avtale inngås oppfordres interessenter til å innhente komplett informasjon fra meglerforetaket, selger eller utleier.




















































