Bildegalleri

Velkommen til Colletts gate 60A - presentert av Nicolay Ulvin ved EIE eiendomsmegling!
Lys & hyggelig 2- roms | Store vindusflater & god takhøyde | Prisbelønnet bakgård | Svært sentral beliggenhet
Nøkkelinfo
- Boligtype
- Leilighet
- Eieform
- Andel
- Soverom
- 1
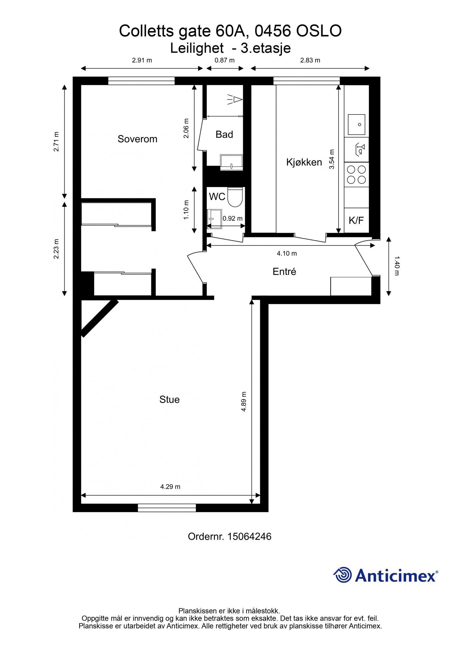
- Internt bruksareal
- 58 m² (BRA-i)
- Bruksareal
- 68 m²
- Eksternt bruksareal
- 10 m² (BRA-e)
- Etasje
- 3
- Byggeår
- 1929
- Energimerking
- E - Rød
- Rom
- 2
- Tomteareal
- 2 257 m²
Fasiliteter
Om boligen
Velkommen til Colletts gate 60A - en attraktiv 2-roms toppleilighet med sentral beliggenhet v/St Hanshaugen park og Alexander Kiellands Plass.
Leiligheten ligger i 3. etg og har en gjennomgående, arealeffektiv planløsning med god takhøyde.
Innbydende og romslig stue med peis og god plass til ulike møbleringsalternativer. Separat og sjarmerende kjøkken med god plass til spisebord. Stort soverom med walk-in-closet. Gjennomtenkte detaljer og god standard skaper en moderne og hyggelig atmosfære.
Utenfor kan du nyte en fredelig og prisbelønnet bakhage tegnet av Snøhetta, med grillplass og svært gode solforhold. Det er også mulighet for grønnsakskasse ved ledighet m.m. Kort vei til alle servicetilbud, samt gode kollektivtilbud i nærheten.
Salgsoppgaven beskriver vesentlig og lovpålagt informasjon om eiendommen
Se komplett salgsoppgaveNærområdet
EIE eiendomsmegling Røa, Skøyen og Ullern
Annonseinformasjon
| FINN-kode | 380718442 |
|---|---|
| Sist endret | 30. nov. 2024 15:24 |
| Referanse | 51240070 |
Annonsene kan være mangelfulle i forhold til lovpålagt opplysningsplikt. Før bindende avtale inngås oppfordres interessenter til å innhente komplett informasjon fra meglerforetaket, selger eller utleier.
































