Bildegalleri

Velkommen til Drammensveien 116B - En moderne og gjennomført endeleilighet i et ettertraktet nabolag mellom Skøyen og Frogner.
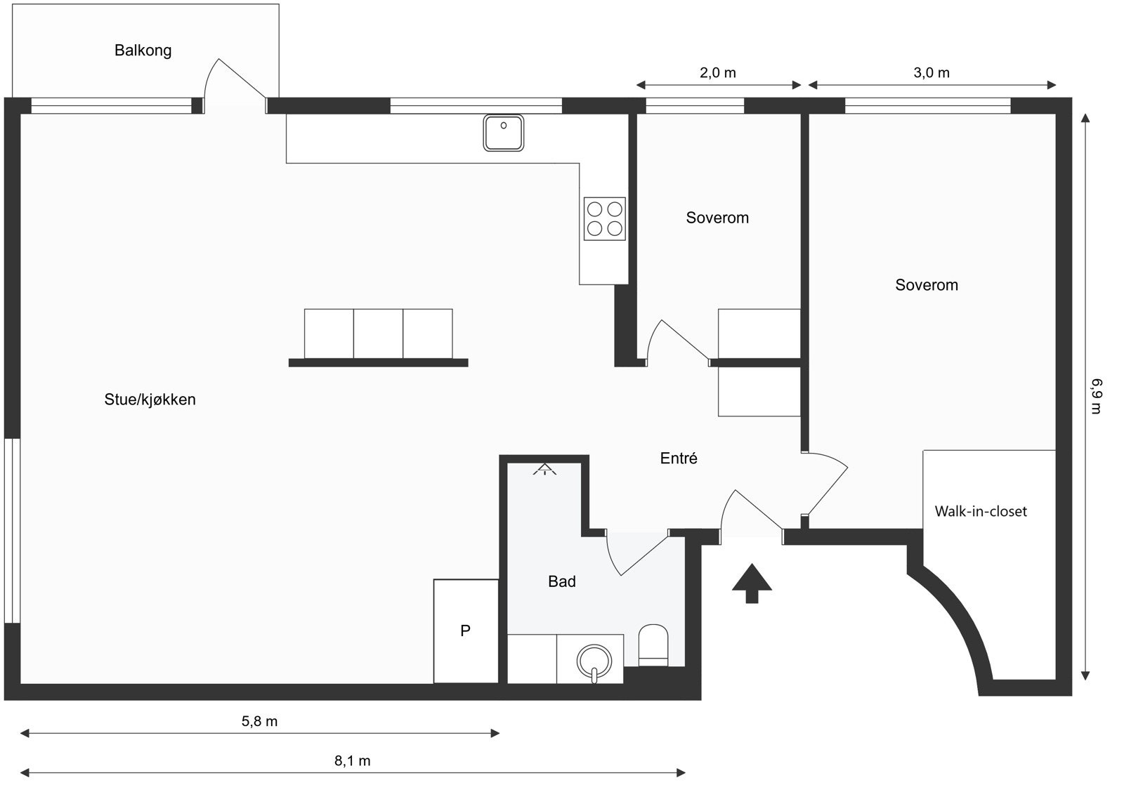
Moderne 3-roms hjørneleilighet totaloppusset i 2021 | Balkong | Parkeringsplass | Fyring og v.vann inkludert | Peis
Nøkkelinfo
- Boligtype
- Leilighet
- Eieform
- Selveier
- Soverom
- 2
- Internt bruksareal
- 80 m² (BRA-i)
- Bruksareal
- 89 m²
- Eksternt bruksareal
- 9 m² (BRA-e)
- Balkong/Terrasse
- 4 m² (TBA)
- Etasje
- 2
- Byggeår
- 1938
- Energimerking
- G - Mørkegrønn
- Rom
- 3
- Tomteareal
- 826 m² (eiet)
- Boligselgerforsikring
- Ja
Fasiliteter
Om boligen
Velkommen til Drammensveien 116B - En moderne og gjennomført endeleilighet i et ettertraktet nabolag mellom Skøyen og Frogner. Leiligheten har god standard, med en ideell planløsning, tidsriktige farger og et lyst og luftig preg i samtlige rom. Leiligheten ble pusset opp i 2021, med nytt bad, kjøkken, parkett, samt oppussing av overflater og elektrisk anlegg. Leiligheten har videre en lekker stue, vestvendt balkong, og to soverom. Beliggenheten gir deg nærhet til alle nødvendige fasiliteter i hverdagen, samt flotte turområder.
Kvaliteter
- Lekker hjørneleilighet som ble betydelig pusset opp i 2021
- Vestvendt balkong med høy og fri beliggenhet som gir svært gode solforhold
- To soverom
- Fyring & varmtvann ink
- Peis
- Medfølger biloppstillingsplass
- Romslig bod på 9 kvm
Velkommen til visning!
Salgsoppgaven beskriver vesentlig og lovpålagt informasjon om eiendommen
Se komplett salgsoppgaveNyttige lenker
Nærområdet

PrivatMegleren Dyve & Partnere
Annonseinformasjon
| FINN-kode | 380669644 |
|---|---|
| Sist endret | 16. jan. 2025 13:24 |
| Referanse | 159240879 |
Annonsene kan være mangelfulle i forhold til lovpålagt opplysningsplikt. Før bindende avtale inngås oppfordres interessenter til å innhente komplett informasjon fra meglerforetaket, selger eller utleier.
































