Bildegalleri

EIE eiendomsmegling ved Thomas Myhre har gleden av å presentere Rønningslia 9!
Solgt
Børsa
Innholdsrik enebolig med dobbelgarasje | Stor tomt på 1,15 mål | Flott utsikt | Fire soverom | Familievennlig område
Prisantydning5 850 000 kr
Nøkkelinfo
- Boligtype
- Enebolig
- Eieform
- Eier (Selveier)
- Soverom
- 4
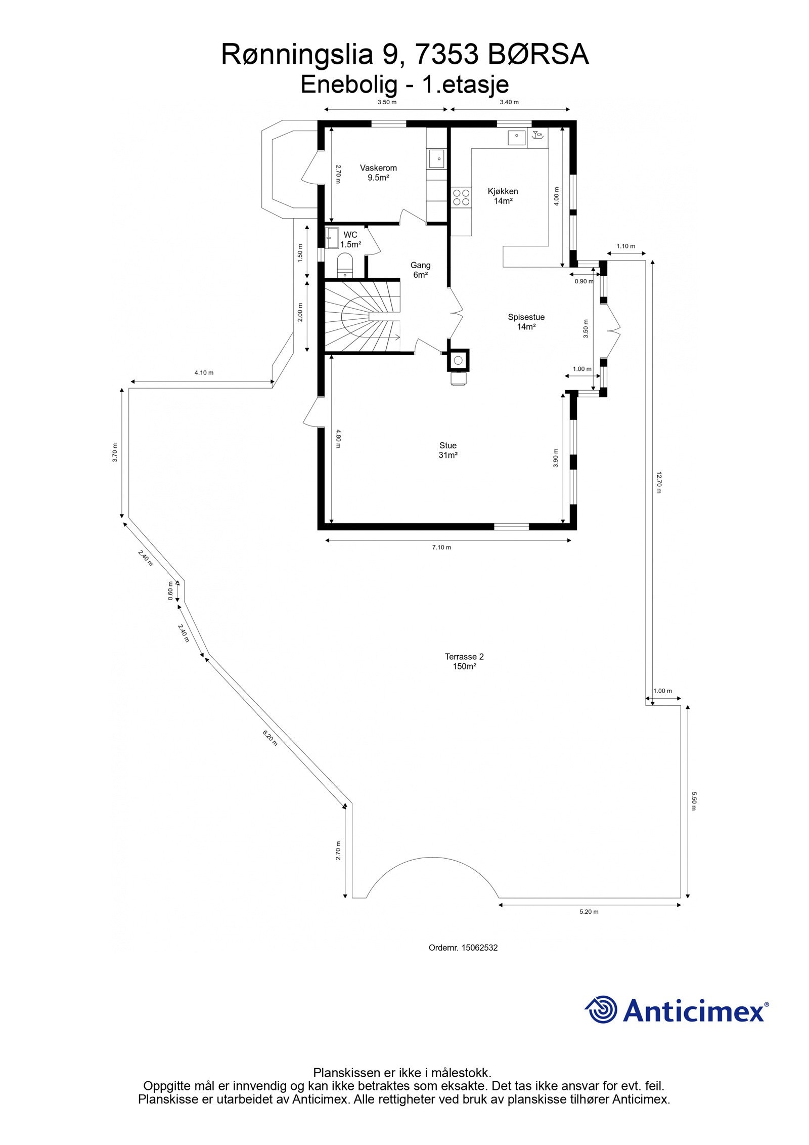
- Internt bruksareal
- 237 m² (BRA-i)
- Bruksareal
- 325 m²
- Eksternt bruksareal
- 88 m² (BRA-e)
- Balkong/Terrasse
- 175 m² (TBA)
- Byggeår
- 2005
- Energimerking
- D - Mørkegrønn
- Tomteareal
- 1 155 m² (eiet)
Fasiliteter
Balkong/Terrasse
Peis/Ildsted
Barnevennlig
Rolig
Moderne
Garasje/P-plass
Aircondition
Turterreng
Offentlig vann/kloakk
Utsikt
Bredbåndstilknytning
Lademulighet
Om boligen
EIE eiendomsmegling ved Thomas har gleden av å presentere Rønningslia 9!
En innholdsrik og velholdt enebolig over tre plan, beliggende i et rolig og familievennlig område i Børsa. Denne eiendommen kombinerer moderne komfort med en flott utsikt og nærhet til viktige fasiliteter som skoler, barnehager og dagligvarebutikker.
Merk deg følgende:
- Fire gode soverom, ideelt for en større familie.
- Ekstra bod/disp. rom som benyttes som soverom.
- Stor terrasse med vakker utsikt.
- Eget vaskerom med separat utgang.
- Loftstue med egen balkong.
- Stor dobbelgarasje med innredet loft og rikelig med lagringsplass.
- Vannbåren varme for jevn og behagelig oppvarming.
- Solrik tomt på 1,15 mål med stor gressplen.
- Kort vei til skole, barnehage og dagligvare, samt flotte tur- og rekreasjonsmuligheter.
Velkommen til visning!
NB: Knappen for å vise hele beskrivelsen har kun en visuell effekt.
NB: Knappen for å vise hele beskrivelsen har kun en visuell effekt.
Salgsoppgaven beskriver vesentlig og lovpålagt informasjon om eiendommen
Se komplett salgsoppgaveNærområdet
EIE eiendomsmegling Heimdal
Annonsene kan være mangelfulle i forhold til lovpålagt opplysningsplikt. Før bindende avtale inngås oppfordres interessenter til å innhente komplett informasjon fra meglerforetaket, selger eller utleier.













































