Bildegalleri

Kjøkkeninnredningen er fra byggeåret og velholdt. Åpent mot stue
Nygaard Brygge
Attraktiv 3-roms hjørneleilighet med vannbåren gulvvarme, garasjeplass med lader. 10 min gange til tog og by!
Prisantydning3 890 000 kr
Nøkkelinfo
- Boligtype
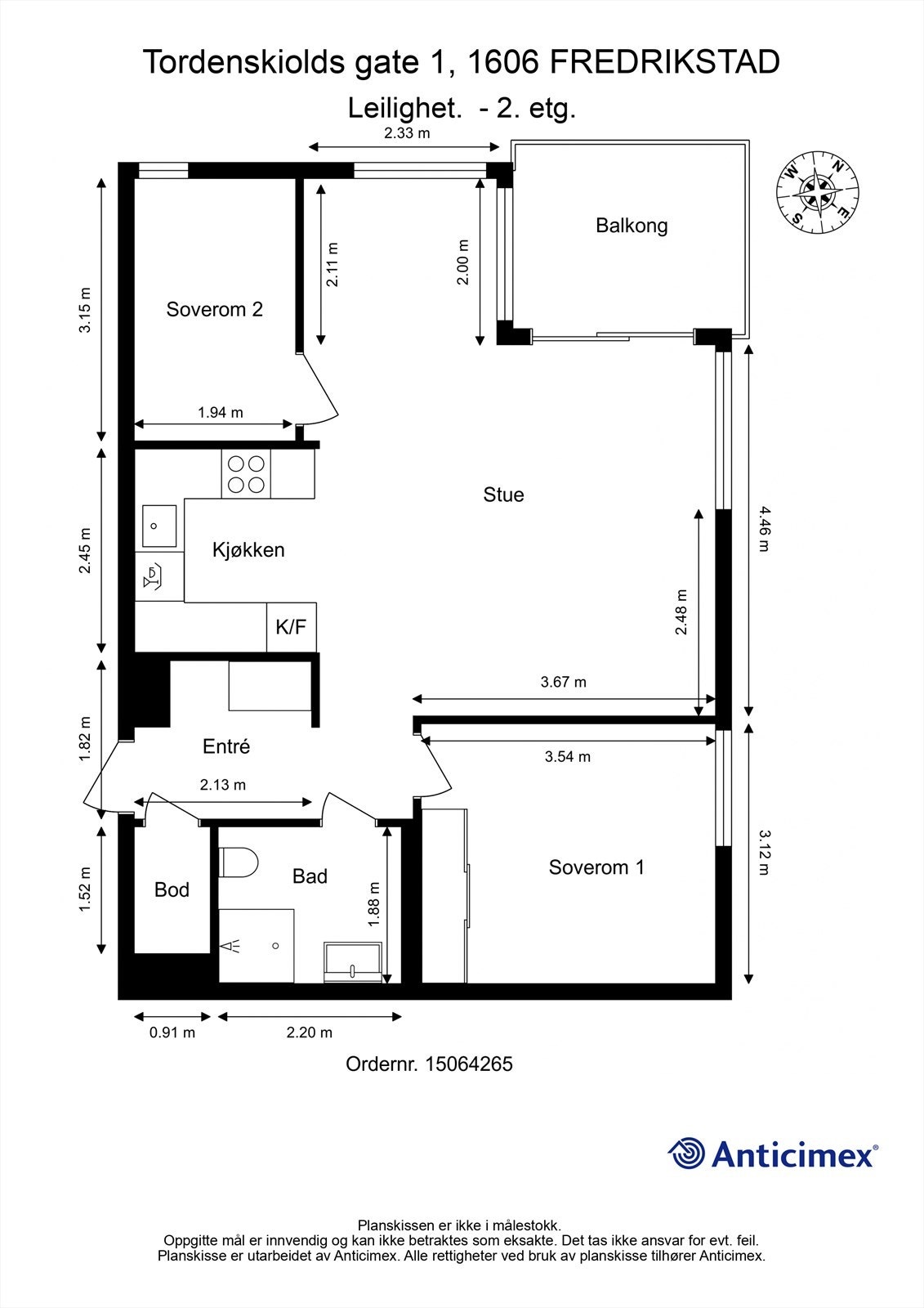
- Leilighet
- Eieform
- Eier (Selveier)
- Soverom
- 2
- Internt bruksareal
- 63 m² (BRA-i)
- Bruksareal
- 68 m²
- Eksternt bruksareal
- 5 m² (BRA-e)
- Balkong/Terrasse
- 6 m² (TBA)
- Etasje
- 2
- Byggeår
- 2005
- Energimerking
- E - Mørkegrønn
- Rom
- 3
- Tomteareal
- 3 624 m² (eiet)
Fasiliteter
Balkong/Terrasse
Bredbåndstilknytning
Garasje/P-plass
Heis
Kabel-TV
Rolig
Sentralt
Vaktmester-/vektertjeneste
Turterreng
Lademulighet
Balansert ventilasjon
Visning
Kontakt megler for å avtale privatvisning av boligen. Tlf 994 66 012. Leiligheten kan både vises frem og overtas på kort varsel dersom ønskelig.
VisningspåmeldingOm boligen
Velholdt 3-roms hjørneleilighet i Nygaard Brygge
- Effektiv romløsning med stue og kjøkken åpent forbundet
- Vannbåren gulvvarme i alle rom, med soneinndeling
- Malerarbeid utført i leiligheten i 2019 og 2022. Mikrosement på badegulv 2024.
- Selveier - attraktivt objekt for utleie
- Overbygget og skjermet flislagt terrasse på 6 kvm.
- Biloppstillingsplass i garasjeanlegget, med lader til EL-bil og tilknyttet bod
- Enkel adkomst - heis i bygget
- Veldrevet sameie med flott parkmessig gårdsrom mot Vesterelven
- Bryggepromenade og vakre parkområder i nabolaget
- Alle byens tilbud innenfor få minutters gange
- Knappe 10 minutter å gå til togstasjon
NB: Knappen for å vise hele beskrivelsen har kun en visuell effekt.
NB: Knappen for å vise hele beskrivelsen har kun en visuell effekt.
Salgsoppgaven beskriver vesentlig og lovpålagt informasjon om eiendommen
Se komplett salgsoppgaveNyttige lenker
Nærområdet
Krogsveen Fredrikstad og Sarpsborg
Velkommen til en enklere boligreise.
Annonseinformasjon
| FINN-kode | 380487240 |
|---|---|
| Sist endret | 09. des. 2025 17:00 |
| Referanse | KR67.24355 |
Annonsene kan være mangelfulle i forhold til lovpålagt opplysningsplikt. Før bindende avtale inngås oppfordres interessenter til å innhente komplett informasjon fra meglerforetaket, selger eller utleier.





















