Bildegalleri

EIE Lillestrøm v/ Torje Olsen Slettli har gleden av å presentere Blomstervegen 35A!
Velkommen til Blomstervegen 35A! | Romslig og gjennomgående andelsleilighet med god standard | Attraktivt område
Nøkkelinfo
- Boligtype
- Leilighet
- Eieform
- Andel
- Soverom
- 2
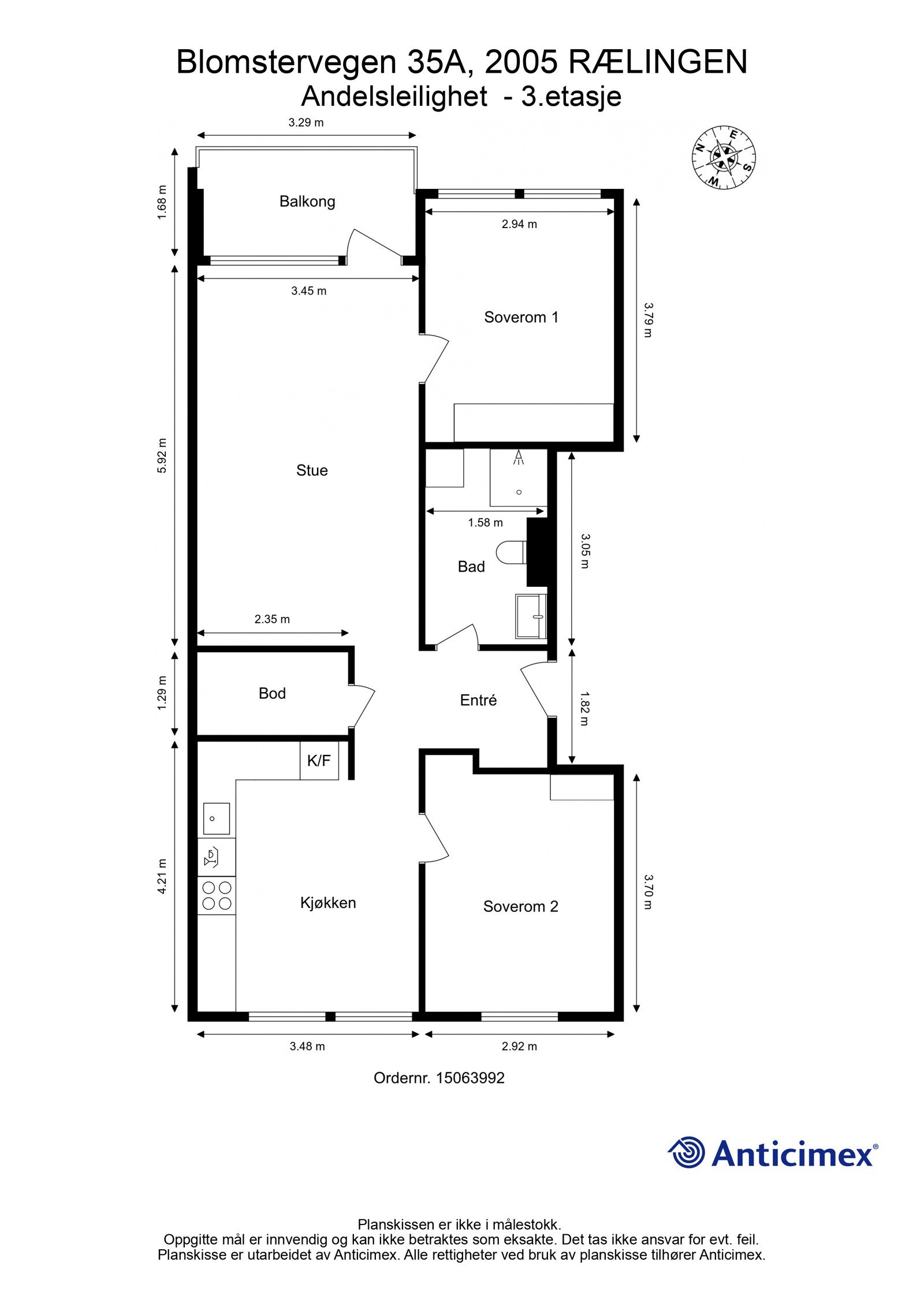
- Internt bruksareal
- 71 m² (BRA-i)
- Bruksareal
- 73 m²
- Eksternt bruksareal
- 2 m² (BRA-e)
- Balkong/Terrasse
- 6 m² (TBA)
- Etasje
- 3
- Byggeår
- 1971
- Tomteareal
- 49 622 m² (eiet)
Om boligen
EIE Lillestrøm har gleden av å presentere denne flotte andelsleiligheten i Blomstervegen 35A!
Leiligheten ligger idyllisk til i Rælingen kommune, et område kjent for sin familievennlige atmosfære og praktiske beliggenhet. Rolig og tilbaketrukket beliggenhet, allikevel sentralt med kort vei til alt. Boligen ligger fint til i 3. etasje, og byr på en trivelig og langstrakt utsikt fra balkongen, og mot fine fellesområder.
Kvaliteter verdt å merke seg:
- God planløsning
- Overbygd balkong
- Sentralt og barnevennlig
- Pen og oppgradert - god standard
- Baderom fra 2022
- Nærhet til buss, butikker, barnehager/skoler, flotte turområder
Velkommen til hyggelig visning!
Salgsoppgaven beskriver vesentlig og lovpålagt informasjon om eiendommen
Se komplett salgsoppgaveNærområdet
ROMERIKSMEGLEREN AS
Annonseinformasjon
| FINN-kode | 380108272 |
|---|---|
| Sist endret | 21. nov. 2024 11:39 |
| Referanse | 77240174 |
Annonsene kan være mangelfulle i forhold til lovpålagt opplysningsplikt. Før bindende avtale inngås oppfordres interessenter til å innhente komplett informasjon fra meglerforetaket, selger eller utleier.






























