Bildegalleri

Maximillian Waldø-Jensen og Mathias Solheim Ørnes har gleden av å presentere Bidenkaps gate 3! (Digital styling).
Solgt
Sentralt på St.Hanshaugen
Lys & innbydende 3R|Heis |Balkong|IN ordning |V.V & fyring inkl|Ingen dok. avgift|Urban & meget populær beliggenhet
Prisantydning4 200 000 kr
Nøkkelinfo
- Boligtype
- Leilighet
- Eieform
- Andel
- Soverom
- 2
- Internt bruksareal
- 52 m² (BRA-i)
- Bruksareal
- 57 m²
- Eksternt bruksareal
- 5 m² (BRA-e)
- Balkong/Terrasse
- 5 m² (TBA)
- Etasje
- 4
- Byggeår
- 1940
- Energimerking
- G - Mørkegrønn
- Rom
- 3
- Tomteareal
- 819 m² (eiet)
Fasiliteter
Balkong/Terrasse
Heis
Rolig
Sentralt
Vaktmester-/vektertjeneste
Om boligen
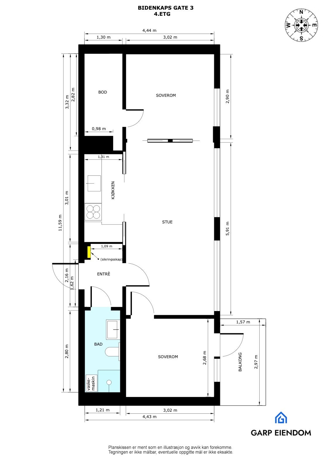
Nordvik v/Maximillian Waldø-Jensen og Mathias Solheim Ørnes har gleden av å presentere en lys og pen 3 roms med en meget sentral og etterspurt beliggenhet. Leiligheten ligger i byggets 4. etasje med heis og balkong. Leiligheten fremstår som lys og luftig med gode lysforhold og som skaper en god atmosfære. Leiligheten har en god og effektiv planløsning med 2 soverom, bad med opplegg for vaskemaskin/tørketrommel samt åpen stue-/kjøkkenløsning.
Høydepunkter:
- 3-roms / 52 kvm BRA-I
- God planløsning / 2 soverom
- Solrik balkong ut mot rolig bakgård
- IN ordning / Mulighet for å redusere fk ned til kr 3 127 ,-
- V.vann og fyring inkl - Lave strømutgifter
- Pent og grønt gårdsrom
- Super beliggenhet
Velkommen til visning!
Høydepunkter:
- 3-roms / 52 kvm BRA-I
- God planløsning / 2 soverom
- Solrik balkong ut mot rolig bakgård
- IN ordning / Mulighet for å redusere fk ned til kr 3 127 ,-
- V.vann og fyring inkl - Lave strømutgifter
- Pent og grønt gårdsrom
- Super beliggenhet
Velkommen til visning!
NB: Knappen for å vise hele beskrivelsen har kun en visuell effekt.
NB: Knappen for å vise hele beskrivelsen har kun en visuell effekt.
Salgsoppgaven beskriver vesentlig og lovpålagt informasjon om eiendommen
Se komplett salgsoppgaveNyttige lenker
Nærområdet
Nordvik Majorstuen
Annonseinformasjon
| FINN-kode | 379984196 |
|---|---|
| Sist endret | 10. mars 2025 12:10 |
| Referanse | 8-0529/24 |
Annonsene kan være mangelfulle i forhold til lovpålagt opplysningsplikt. Før bindende avtale inngås oppfordres interessenter til å innhente komplett informasjon fra meglerforetaket, selger eller utleier.


























