Bildegalleri

Søndre Disen Gård - Presentert av Tegneby & Grønnerød Landbruksmegling
Søndre Disen | 1.917 daa | 1129 daa produktiv skog | 671 daa fulldyrka | Omfattende bygningsmasse | Nyere hytte |
Nøkkelinfo
- Boligtype
- Gårdsbruk/Småbruk
- Eieform
- Eier (Selveier)
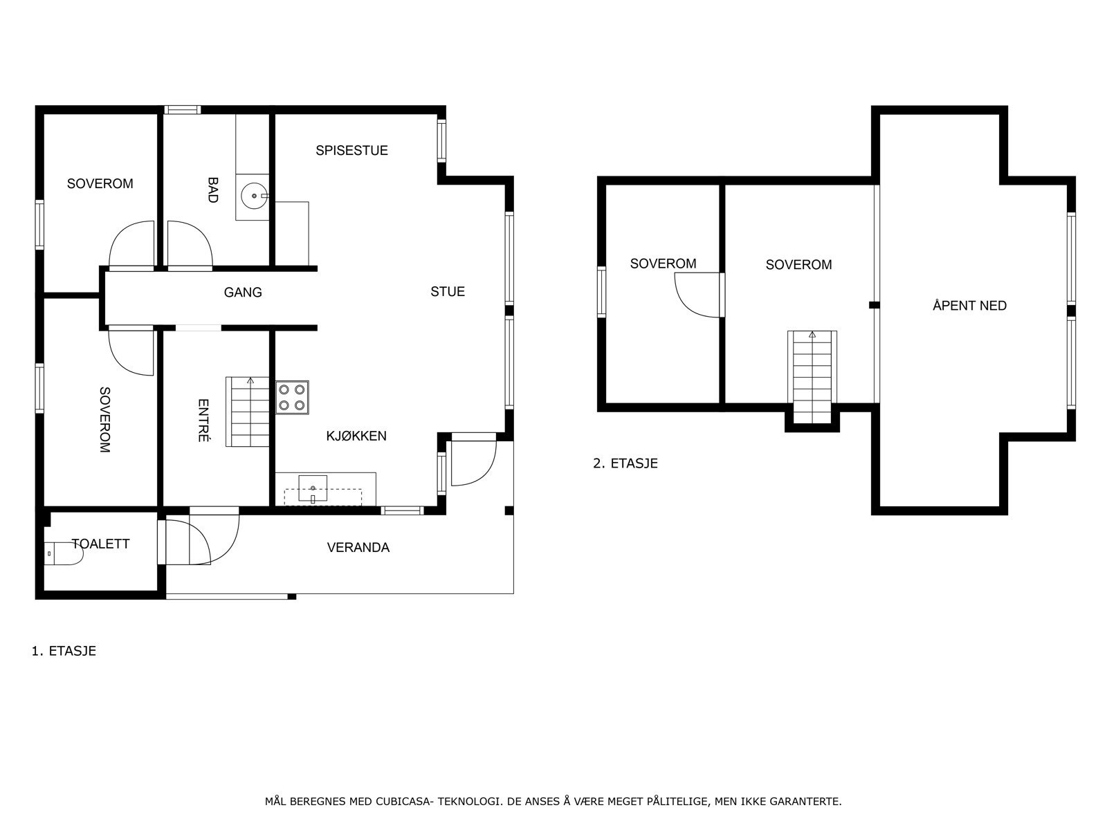
- Soverom
- 4
- Internt bruksareal
- 297 m² (BRA-i)
- Byggeår
- 1820
- Energimerking
- F - Lysegrønn
- Tomteareal
- 1 917 000 m² (eiet)
Om boligen
Stor landbrukseiendom på 1.917 daa. Gården Søndre Disen har 671 daa. fulldyrka og 1.129 daa. produktiv skog. Et flott bosted med utsikt til omkringliggende landbruksarealer. Eiendommen innehar en betydelig bygningsmasse med bl.a. våningshus, låve, redskapshus med verksted, kontor, 2 stabbur mm. Nyere hytte ved Meldisitjernet med fiskevann. Eiendommen ligger i et godt jord- og skogbruksområde i Sør-Odal kommune, ca. en time nord-/øst for Oslo. Eiendommen og eierne er godkjent Inn på tunet tilbyder.
Salgsoppgaven beskriver vesentlig og lovpålagt informasjon om eiendommen
Se komplett salgsoppgaveNyttige lenker
Nærområdet

TEGNEBY & GRØNNERØD LANDBRUKSMEGLING AS
Thor Asbjørn Lunde
Annonseinformasjon
| FINN-kode | 379477601 |
|---|---|
| Sist endret | 17. aug. 2025 02:38 |
| Referanse | 14240077 |
Annonsene kan være mangelfulle i forhold til lovpålagt opplysningsplikt. Før bindende avtale inngås oppfordres interessenter til å innhente komplett informasjon fra meglerforetaket, selger eller utleier.





















































