Bildegalleri

EiendomsMegler 1 ved Peder Bjørnstad har gleden av å presentere en meget flott og moderne bolig i Utleirtunet 4 B.
TOTALRENOVERT OG MODERNE BOLIG I ATTRAKTIVT OMRÅDE. Romslig stue/kjøkken-løsning. Gode uteplasser. Parkering.
Nøkkelinfo
- Boligtype
- Leilighet
- Eieform
- Andel
- Soverom
- 2
- Internt bruksareal
- 101 m² (BRA-i)
- Bruksareal
- 101 m²
- Etasje
- 1
- Byggeår
- 1971
- Energimerking
- F - Mørkegrønn
- Rom
- 3
- Tomteareal
- 675 m² (eiet)
Fasiliteter
Om boligen
Av kvaliteter ønsker vi å trekke frem følgende:
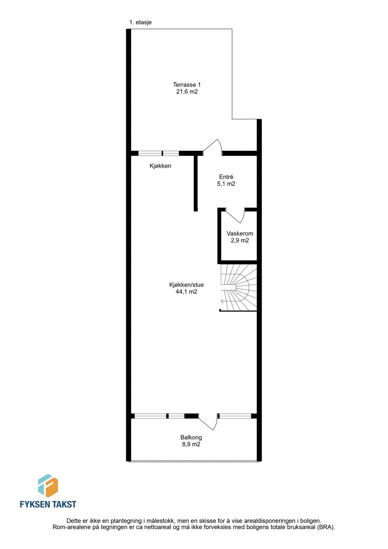
- Svært romslig og åpen stue/kjøkken-løsning på over 44 kvm.
- Kjøkken oppusset i 2020, med integrerte hvitevarer.
- Pent og moderne flislagt baderom, samt eget vaskerom fra 2020.
- Boligen flere gode uteområder.
- Parkering i parkeringskjeller. Montert EL-billading.
- Praktisk sportsbod ved inngang.
- Kort veg til dagligvarebutikker og det meste man trenger i hverdagen, og turstier for den turglade.
Velkommen til hyggelig visning!
Salgsoppgaven beskriver vesentlig og lovpålagt informasjon om eiendommen
Se komplett salgsoppgaveNærområdet
EiendomsMegler 1 Trondheim sentrum, Kongens gate
Prisstatistikk
Utleirtunet 4 B
på annonsen
prisantydning per kvadratmeter
Prisfordeling
Pris per m² ligger 25 058 kr under snittet for leiligheter i Trondheim Øst.
Grafen viser antall leiligheter solgt i Trondheim Øst siste året fordelt på pris per m² - totalt 2 549 leiligheter
Antall boliger
Kvadratmeterpris tilsvarer prisantydning pluss fellesgjeld per kvadratmeter (p-rom eller BRA-i). Prisene i grafen er avrundet til nærmeste 1000 kr.
Annonsene kan være mangelfulle i forhold til lovpålagt opplysningsplikt. Før bindende avtale inngås oppfordres interessenter til å innhente komplett informasjon fra meglerforetaket, selger eller utleier.

































