Bildegalleri

Velkommen til Bergelehaugen 60! Funkis enebolig fra 2020 med dobbelgarasje
Bakneset
Lekker funkis enebolig med fantastisk utsikt og solforhold - 6 sov og 2 stuer - Dobbelgarasje
Prisantydning7 990 000 kr
Nøkkelinfo
- Boligtype
- Enebolig
- Eieform
- Eier (Selveier)
- Soverom
- 6
- Internt bruksareal
- 193 m² (BRA-i)
- Bruksareal
- 257 m²
- Eksternt bruksareal
- 64 m² (BRA-e)
- Balkong/Terrasse
- 227 m² (TBA)
- Byggeår
- 2020
- Energimerking
- A - Oransje
- Rom
- 8
- Tomteareal
- 1 316 m² (eiet)
Fasiliteter
Barnevennlig
Balkong/Terrasse
Garasje/P-plass
Parkett
Peis/Ildsted
Turterreng
Utsikt
Moderne
Rolig
Balansert ventilasjon
Om boligen
Velkommen til Bergelehaugen 60!
Enebolig fra 2020 på populære Bakneset. Boligen ligger i øverste del av feltet og har en fantastisk 180-graders utsikt over fjord og fjell. Tomten er på 1315 m2 og er pent opparbeidet med stor plen og 131 m2 markterrasse. I terrassen har man nedfelt basseng. I tillegg har man i 2.etasje av boligen en takterrasse på 96 m2 med kanskje enda flottere utsikt. Bakneset er en av de mest solrike stedene i Vestnes kommune. Fra eiendommen er det gangavstand både til skole og barnehage.
Boligen er innholdsrik, moderne og har eksklusive materialvalg. I tilknytning til boligen har man en dobbelgarasje og sportsbod på 17 m2. Overbygd mellom garasje og bolig, med direkte inngang til vaskerom.
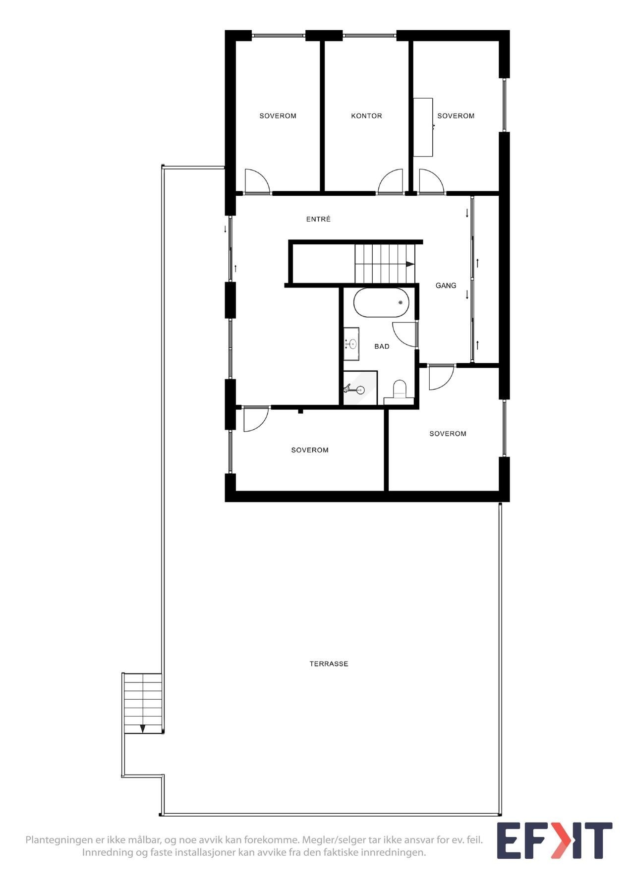
2. etasje: Bad, gang, 5 soverom, stue.
1. etasje: Stue/kjøkken, entré, vaskerom, toalettrom, soverom, bad, garasje, garasjebod, redskapsbod under trapp mot garasje.
Enebolig fra 2020 på populære Bakneset. Boligen ligger i øverste del av feltet og har en fantastisk 180-graders utsikt over fjord og fjell. Tomten er på 1315 m2 og er pent opparbeidet med stor plen og 131 m2 markterrasse. I terrassen har man nedfelt basseng. I tillegg har man i 2.etasje av boligen en takterrasse på 96 m2 med kanskje enda flottere utsikt. Bakneset er en av de mest solrike stedene i Vestnes kommune. Fra eiendommen er det gangavstand både til skole og barnehage.
Boligen er innholdsrik, moderne og har eksklusive materialvalg. I tilknytning til boligen har man en dobbelgarasje og sportsbod på 17 m2. Overbygd mellom garasje og bolig, med direkte inngang til vaskerom.
2. etasje: Bad, gang, 5 soverom, stue.
1. etasje: Stue/kjøkken, entré, vaskerom, toalettrom, soverom, bad, garasje, garasjebod, redskapsbod under trapp mot garasje.
NB: Knappen for å vise hele beskrivelsen har kun en visuell effekt.
NB: Knappen for å vise hele beskrivelsen har kun en visuell effekt.
Salgsoppgaven beskriver vesentlig og lovpålagt informasjon om eiendommen
Se komplett salgsoppgaveNyttige lenker
Nærområdet
EiendomsMegler 1 Molde
Vi loser deg trygt gjennom hele boligsalget
Annonseinformasjon
| FINN-kode | 379198926 |
|---|---|
| Sist endret | 21. jan. 2026 05:02 |
| Referanse | 13240371 |
Annonsene kan være mangelfulle i forhold til lovpålagt opplysningsplikt. Før bindende avtale inngås oppfordres interessenter til å innhente komplett informasjon fra meglerforetaket, selger eller utleier.








































